New Homes » Chugoku » Hiroshima » Nishi-ku
 
| | Hiroshima, Hiroshima Prefecture, Nishi-ku, 広島県広島市西区 |
| Bus "Oshiba town" walk 2 minutes バス「大芝町」歩2分 |
| Living is the stairs of the house where nature and family gather. A calm town Oshiba. 自然と家族が集まるリビング階段の家です。落着きのある街大芝。 |
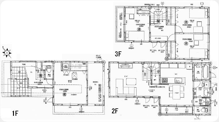
Features pickup 特徴ピックアップ | | LDK18 tatami mats or more / System kitchen / Bathroom Dryer / All room storage / Washbasin with shower / Face-to-face kitchen / Toilet 2 places / Bathroom 1 tsubo or more / 2 or more sides balcony / South balcony / Otobasu / Warm water washing toilet seat / The window in the bathroom / Three-story or more / City gas / Storeroom LDK18畳以上 /システムキッチン /浴室乾燥機 /全居室収納 /シャワー付洗面台 /対面式キッチン /トイレ2ヶ所 /浴室1坪以上 /2面以上バルコニー /南面バルコニー /オートバス /温水洗浄便座 /浴室に窓 /3階建以上 /都市ガス /納戸 | Price 価格 | | 38,200,000 yen 3820万円 | Floor plan 間取り | | 3LDK + S (storeroom) 3LDK+S(納戸) | Units sold 販売戸数 | | 1 units 1戸 | Land area 土地面積 | | 92.57 sq m (28.00 tsubo) (Registration) 92.57m2(28.00坪)(登記) | Building area 建物面積 | | 112.59 sq m (34.05 square meters) 112.59m2(34.05坪) | Driveway burden-road 私道負担・道路 | | Nothing, Northwest 4m width 無、北西4m幅 | Completion date 完成時期(築年月) | | May 2014 2014年5月 | Address 住所 | | Hiroshima, Hiroshima Prefecture, Nishi-ku, Oshiba 1 広島県広島市西区大芝1 | Traffic 交通 | | Bus "Oshiba town" walk 2 minutes バス「大芝町」歩2分 | Related links 関連リンク | | [Related Sites of this company] 【この会社の関連サイト】 | Contact お問い合せ先 | | TEL: 082-568-1150 Please inquire as "saw SUUMO (Sumo)" TEL:082-568-1150「SUUMO(スーモ)を見た」と問い合わせください | Building coverage, floor area ratio 建ぺい率・容積率 | | 60% ・ 200% 60%・200% | Time residents 入居時期 | | June 2014 schedule 2014年6月予定 | Land of the right form 土地の権利形態 | | Ownership 所有権 | Structure and method of construction 構造・工法 | | Wooden three-story 木造3階建 | Use district 用途地域 | | Two dwellings 2種住居 | Overview and notices その他概要・特記事項 | | Facilities: Public Water Supply, This sewage, City gas, Building confirmation number: 01588, Parking: car space 設備:公営水道、本下水、都市ガス、建築確認番号:01588、駐車場:カースペース | Company profile 会社概要 | | <Mediation> Governor of Hiroshima Prefecture (1) No. 010121 bamboo Corporation (Corporation) Yubinbango732-0817 Hiroshima, Hiroshima Prefecture, Minami-ku, Hijiyama cho 4-11 <仲介>広島県知事(1)第010121号竹コーポレーション(株)〒732-0817 広島県広島市南区比治山町4-11 |
Floor plan間取り図  38,200,000 yen, 3LDK + S (storeroom), Land area 92.57 sq m , Building area 112.59 sq m
3820万円、3LDK+S(納戸)、土地面積92.57m2、建物面積112.59m2
Rendering (appearance)完成予想図(外観)  West side elevational view
西側立面図
 South side elevational view
南側立面図
 East side elevational view
東側立面図
Supermarketスーパー  207m to commercial food super Oshiba shop
業務用食品スーパー大芝店まで207m
Rendering (appearance)完成予想図(外観)  North side elevational view
北側立面図
Supermarketスーパー  488m to Yours Kusunoki shop
ユアーズ楠木店まで488m
Convenience storeコンビニ  FamilyMart Oshiba 277m up to two-chome
ファミリーマート大芝二丁目店まで277m
Drug storeドラッグストア  Hearty Wants to Misasa shop 356m
ハーティウォンツ三篠店まで356m
Primary school小学校  271m to Hiroshima Municipal Oshiba Elementary School
広島市立大芝小学校まで271m
Hospital病院  Still 1108m to the hospital to meet Association of medical corporation Jikei
医療法人社団慈恵会いまだ病院まで1108m
Post office郵便局  243m to Hiroshima Omiya post office
広島大宮郵便局まで243m
Bank銀行  Momiji Bank Misasa to branch 1330m
もみじ銀行三篠支店まで1330m
Park公園  Until Oshibakoen 333m
大芝公園まで333m
Location
|