New Homes » Chugoku » Hiroshima » Nishi-ku
 
| | Hiroshima, Hiroshima Prefecture, Nishi-ku, 広島県広島市西区 |
| Bus "Koiue 4-chome" walk 2 minutes バス「己斐上4丁目」歩2分 |
| Parking two Allowed Housing wealth Near bus stop 駐車2台可 収納豊富 バス停近く |
Features pickup 特徴ピックアップ | | Parking two Allowed / Face-to-face kitchen / Toilet 2 places / 2-story / Walk-in closet 駐車2台可 /対面式キッチン /トイレ2ヶ所 /2階建 /ウォークインクロゼット | Price 価格 | | 30.5 million yen 3050万円 | Floor plan 間取り | | 3LDK 3LDK | Units sold 販売戸数 | | 1 units 1戸 | Land area 土地面積 | | 143.55 sq m (43.42 tsubo) (Registration) 143.55m2(43.42坪)(登記) | Building area 建物面積 | | 104.75 sq m (31.68 tsubo) (Registration) 104.75m2(31.68坪)(登記) | Driveway burden-road 私道負担・道路 | | Nothing 無 | Completion date 完成時期(築年月) | | February 2014 2014年2月 | Address 住所 | | Hiroshima, Hiroshima Prefecture, Nishi-ku, Koiue 4 広島県広島市西区己斐上4 | Traffic 交通 | | Bus "Koiue 4-chome" walk 2 minutes バス「己斐上4丁目」歩2分 | Person in charge 担当者より | | The person in charge (stock) Juken 担当者(株)住研 | Contact お問い合せ先 | | TEL: 0800-603-3432 [Toll free] mobile phone ・ Also available from PHS Caller ID is not notified Please contact the "saw SUUMO (Sumo)" If it does not lead, If the real estate company TEL:0800-603-3432【通話料無料】携帯電話・PHSからもご利用いただけます 発信者番号は通知されません 「SUUMO(スーモ)を見た」と問い合わせください つながらない方、不動産会社の方は
| Building coverage, floor area ratio 建ぺい率・容積率 | | Fifty percent ・ Hundred percent 50%・100% | Time residents 入居時期 | | Consultation 相談 | Land of the right form 土地の権利形態 | | Ownership 所有権 | Structure and method of construction 構造・工法 | | Wooden 2-story 木造2階建 | Use district 用途地域 | | One low-rise 1種低層 | Overview and notices その他概要・特記事項 | | The person in charge :( stock) Juken, Facilities: Public Water Supply, This sewage, Building confirmation number: Se 01498, Parking: car space 担当者:(株)住研、設備:公営水道、本下水、建築確認番号:セ01498、駐車場:カースペース | Company profile 会社概要 | | <Mediation> Governor of Hiroshima Prefecture (3) No. 008815 (Ltd.) Jukensha Yubinbango731-5136 Hiroshima, Hiroshima Prefecture Saeki-ku Rakurakuen 2-1-30 <仲介>広島県知事(3)第008815号(株)住研社〒731-5136 広島県広島市佐伯区楽々園2-1-30 |
Local appearance photo現地外観写真  December 12 shooting
12月12日撮影
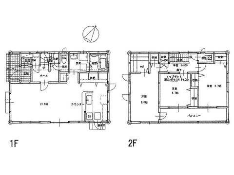
Floor plan間取り図  30.5 million yen, 3LDK, Land area 143.55 sq m , Building area 104.75 sq m
3050万円、3LDK、土地面積143.55m2、建物面積104.75m2
 Local appearance photo
現地外観写真
 Local photos, including front road
前面道路含む現地写真
Primary school小学校  Koiue until elementary school 856m
己斐上小学校まで856m
Other localその他現地  Neighborhood park
近隣公園
 Local photos, including front road
前面道路含む現地写真
Junior high school中学校  Koiue 1841m until junior high school
己斐上中学校まで1841m
Other localその他現地  Neighborhood park
近隣公園
Location
|