New Homes » Chugoku » Hiroshima » Saeki-ku


Hiroshima, Hiroshima Prefecture Saeki-ku,
Hiroden Miyajima Line "Rakurakuen" walk 2 minutes
Hiroden Rakurakuen Dentoma a 2-minute walk .. transportation. Shopping. Bank is complete. Life is convenient
Features pickup
Parking two Allowed / Immediate Available / It is close to the city / Flat to the station / Washbasin with shower / Face-to-face kitchen / Barrier-free / Toilet 2 places / 2 or more sides balcony / Three-story or more / Flat terrain
Price
29,800,000 yen
Floor plan
4LDK
Units sold
1 units
Total units
1 units
Land area
92.89 sq m (registration)
Building area
122.14 sq m (registration)
Driveway burden-road
3.7m
Completion date
February 2013
Address
Hiroshima, Hiroshima Prefecture Saeki-ku Rakurakuen 4-5
Traffic
Hiroden Miyajima Line "Rakurakuen" walk 2 minutes
Hiroden "Rakurakuen" walk 2 minutes
Contact
(Yes) save Chiken TEL: 0800-603-2529 [Toll free] mobile phone ・ Also available from PHS
Caller ID is not notified
Please contact the "saw SUUMO (Sumo)"
If it does not lead, If the real estate company
Building coverage, floor area ratio
Kenpei rate: 60%, Volume ratio: 200%
Time residents
Immediate available
Land of the right form
Ownership
Structure and method of construction
Wooden three-story
Construction
Hachiya construction
Use district
One dwelling
Land category
Residential land
Company profile
<Mediation> Governor of Hiroshima Prefecture (7) No. 006510 (with) save Chiken Yubinbango733-0843 Hiroshima, Hiroshima Prefecture, Nishi-ku, Inokuchisuzugadai 3-16-9


Rendering (introspection)

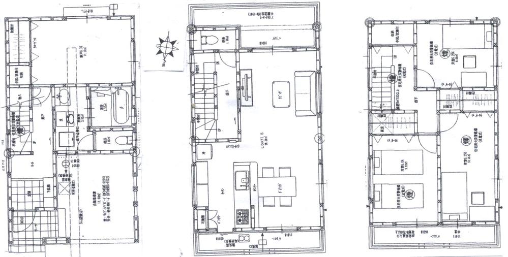
Rendering (introspection). ( 1 Building) Floor Plan
( 1 Building) Floor Plan

Local appearance photo

Local appearance photo. 1 Building appearance
1 Building appearance

Parking lot

Parking lot. 1 Building Garage
1 Building Garage

Rendering (appearance)

Rendering (appearance). Building 2 appearance
Building 2 appearance

Living

Living. Living south direction from the counter
Living south direction from the counter

Bathroom
Bathroom

Kitchen
Kitchen

Entrance
Entrance

Wash basin, toilet
Wash basin, toilet

Receipt

Receipt. There is a large storage on the second floor staircase landing
There is a large storage on the second floor staircase landing

Balcony

Balcony. 2 floor, south side balcony
2 floor, south side balcony

Rendering (introspection)

Rendering (introspection). 2 Building (left) Floor plan drawings
2 Building (left) Floor plan drawings

View photos from the dwelling unit

View photos from the dwelling unit. View west
View west

Living

Living. Kitchen direction from the living room
Kitchen direction from the living room

Receipt

Receipt. View storage from stairs
View storage from stairs

Other introspection

Other introspection. Overlooking the hallway from the entrance
Overlooking the hallway from the entrance

Living

Living. Kitchen direction from the living room
Kitchen direction from the living room

Receipt

Receipt. 3 Kaiyoshitsu closet
3 Kaiyoshitsu closet



Location