New Homes » Chugoku » Hiroshima » Saeki-ku
 
| | Hiroshima, Hiroshima Prefecture Saeki-ku, 広島県広島市佐伯区 |
| Hiroshima Electric Railway "Fujinoki 1-chome collection Kaishomae bus stop" walk 4 minutes 広島電鉄「藤の木1丁目集会所前バス停」歩4分 |
| Sunny! Built-in garage of attention! Supermarket, Bus stop right next to, It is a quiet residential area surrounded by greenery! 日当たり良好!こだわりのビルトインガレージ!スーパー、バス停すぐそば、緑に囲まれた閑静な住宅地です! |
| ■ Land 50 square meters or more ■ Facing south ■ System kitchen ■ Yang per good ■ Siemens south road ■ LDK15 tatami mats or more ■ IH cooking heater ■ Built garage ■土地50坪以上■南向き■システムキッチン■陽当り良好■南側道路面す■LDK15畳以上■IHクッキングヒーター■ビルトガレージ |
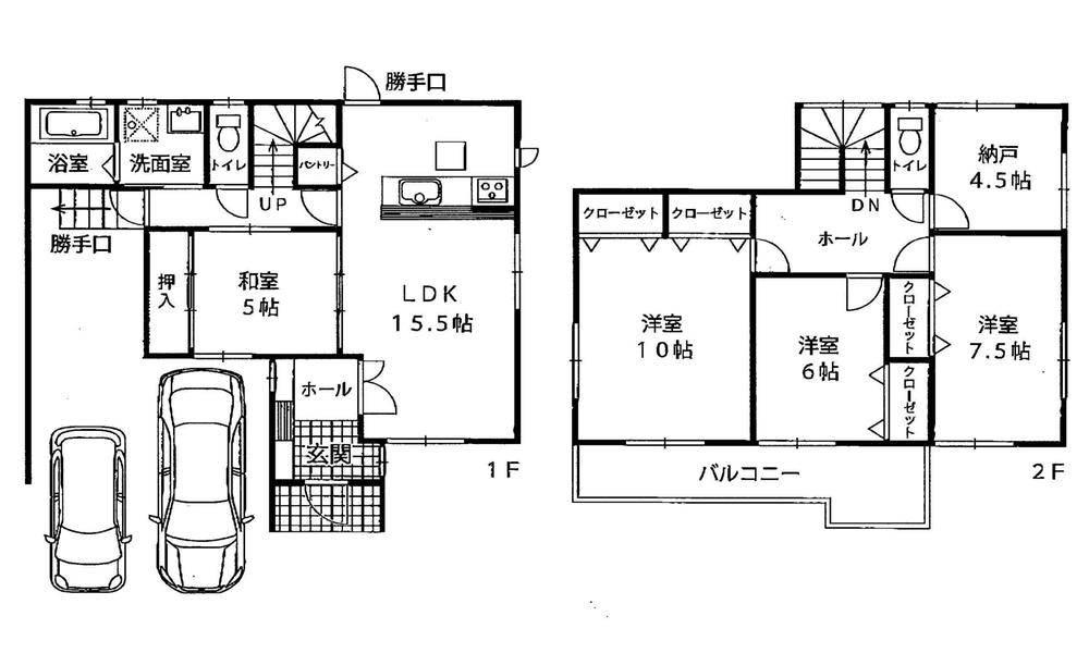
Features pickup 特徴ピックアップ | | Land 50 square meters or more / Facing south / System kitchen / Yang per good / LDK15 tatami mats or more / 2-story / IH cooking heater / Built garage / Storeroom 土地50坪以上 /南向き /システムキッチン /陽当り良好 /LDK15畳以上 /2階建 /IHクッキングヒーター /ビルトガレージ /納戸 | Price 価格 | | 26,900,000 yen 2690万円 | Floor plan 間取り | | 4LDK + S (storeroom) 4LDK+S(納戸) | Units sold 販売戸数 | | 1 units 1戸 | Total units 総戸数 | | 1 units 1戸 | Land area 土地面積 | | 173.59 sq m (registration) 173.59m2(登記) | Building area 建物面積 | | 121.61 sq m (registration) 121.61m2(登記) | Driveway burden-road 私道負担・道路 | | Nothing 無 | Completion date 完成時期(築年月) | | May 2013 2013年5月 | Address 住所 | | Hiroshima, Hiroshima Prefecture Saeki-ku Fujinoki 4 広島県広島市佐伯区藤の木4 | Traffic 交通 | | Hiroshima Electric Railway "Fujinoki 1-chome collection Kaishomae bus stop" walk 4 minutes 広島電鉄「藤の木1丁目集会所前バス停」歩4分 | Related links 関連リンク | | [Related Sites of this company] 【この会社の関連サイト】 | Person in charge 担当者より | | Lightness of the person in charge Nagoshi Fumiya footwork boasts! Thoroughly because it will guide you until you are able to convince the customer, Please feel free to contact us. 担当者名越 文哉フットワークの軽さが自慢です!お客様に納得して頂けるまでとことんご案内いたしますので、お気軽にお問い合わせください。 | Contact お問い合せ先 | | TEL: 0800-603-3620 [Toll free] mobile phone ・ Also available from PHS Caller ID is not notified Please contact the "saw SUUMO (Sumo)" If it does not lead, If the real estate company TEL:0800-603-3620【通話料無料】携帯電話・PHSからもご利用いただけます 発信者番号は通知されません 「SUUMO(スーモ)を見た」と問い合わせください つながらない方、不動産会社の方は
| Time residents 入居時期 | | Consultation 相談 | Land of the right form 土地の権利形態 | | Ownership 所有権 | Structure and method of construction 構造・工法 | | Wooden 2-story 木造2階建 | Overview and notices その他概要・特記事項 | | Contact: Nagoshi Fumiya, Parking: car space 担当者:名越 文哉、駐車場:カースペース | Company profile 会社概要 | | <Mediation> Governor of Hiroshima Prefecture (6) Article 006948 No. cosmid Real Estate Co., Ltd. Yubinbango733-0002 Hiroshima, Hiroshima Prefecture, Nishi-ku, Kusunoki-cho, 1-13-11 <仲介>広島県知事(6)第006948号木住不動産(株)〒733-0002 広島県広島市西区楠木町1-13-11 |
 Local appearance photo
現地外観写真
Floor plan間取り図  26,900,000 yen, 4LDK + S (storeroom), Land area 173.59 sq m , Building area 121.61 sq m
2690万円、4LDK+S(納戸)、土地面積173.59m2、建物面積121.61m2
 Living
リビング
 Local appearance photo
現地外観写真
 Bathroom
浴室
 Kitchen
キッチン
 Non-living room
リビング以外の居室
 Entrance
玄関
 Wash basin, toilet
洗面台・洗面所
 Toilet
トイレ
 Local photos, including front road
前面道路含む現地写真
 Parking lot
駐車場
Supermarketスーパー  186m to Let Fujinoki shop
レッツ藤の木店まで186m
 Other introspection
その他内観
 Other
その他
 Non-living room
リビング以外の居室
Junior high school中学校  3149m to Hiroshima City Museum of Sanwa junior high school
広島市立三和中学校まで3149m
 Other introspection
その他内観
Primary school小学校  1080m to Hiroshima Municipal Fujinoki Elementary School
広島市立藤の木小学校まで1080m
Kindergarten ・ Nursery幼稚園・保育園  Fujinoki 880m to kindergarten
藤の木幼稚園まで880m
Home centerホームセンター  Daiki until Itsukaichi shop 3359m
ダイキ五日市店まで3359m
Location
|