New Homes » Chugoku » Hiroshima » Saeki-ku
 
| | Hiroshima, Hiroshima Prefecture Saeki-ku, 広島県広島市佐伯区 |
| Bus "Itsukaichi 5-chome opening" walk 8 minutes バス「五日市5丁目口」歩8分 |
| Flat 35S Energy saving All-electric IH heater Hut UrabutsuIri West road recession there Error have set back part フラット35S 省エネルギー性 オール電化 IHヒーター 小屋裏物入 西側道路後退有り セットバック部分の誤差有 |
Features pickup 特徴ピックアップ | | Face-to-face kitchen / Toilet 2 places / 2-story / IH cooking heater / Living stairs / All-electric / Attic storage 対面式キッチン /トイレ2ヶ所 /2階建 /IHクッキングヒーター /リビング階段 /オール電化 /屋根裏収納 | Price 価格 | | 33,800,000 yen 3380万円 | Floor plan 間取り | | 5LDK 5LDK | Units sold 販売戸数 | | 1 units 1戸 | Total units 総戸数 | | 5 units 5戸 | Land area 土地面積 | | 134.04 sq m (40.54 tsubo) (Registration) 134.04m2(40.54坪)(登記) | Building area 建物面積 | | 104.33 sq m (31.55 tsubo) (Registration) 104.33m2(31.55坪)(登記) | Driveway burden-road 私道負担・道路 | | Nothing, West 3.2m width 無、西3.2m幅 | Completion date 完成時期(築年月) | | July 2013 2013年7月 | Address 住所 | | Hiroshima, Hiroshima Prefecture Saeki-ku, Itsukaichi center 5 広島県広島市佐伯区五日市中央5 | Traffic 交通 | | Bus "Itsukaichi 5-chome opening" walk 8 minutes バス「五日市5丁目口」歩8分 | Person in charge 担当者より | | The person in charge (stock) Juken 担当者(株)住研 | Contact お問い合せ先 | | TEL: 0800-603-3432 [Toll free] mobile phone ・ Also available from PHS Caller ID is not notified Please contact the "saw SUUMO (Sumo)" If it does not lead, If the real estate company TEL:0800-603-3432【通話料無料】携帯電話・PHSからもご利用いただけます 発信者番号は通知されません 「SUUMO(スーモ)を見た」と問い合わせください つながらない方、不動産会社の方は
| Expenses 諸費用 | | Water contribution: 131,250 yen / Bulk, Warranty insurance fee: 80,000 yen / Bulk 水道負担金:13万1250円/一括、瑕疵担保保険料:8万円/一括 | Building coverage, floor area ratio 建ぺい率・容積率 | | 60% ・ 160% 60%・160% | Time residents 入居時期 | | Consultation 相談 | Land of the right form 土地の権利形態 | | Ownership 所有権 | Structure and method of construction 構造・工法 | | Wooden 2-story 木造2階建 | Use district 用途地域 | | One dwelling 1種住居 | Other limitations その他制限事項 | | ※ Property information full of Saeki-ku, ☆ [Search in the living Research, Inc.!] ※佐伯区の物件情報満載☆【住研社で検索!】 | Overview and notices その他概要・特記事項 | | The person in charge :( stock) Juken, Facilities: Public Water Supply, This sewage, Parking: car space 担当者:(株)住研、設備:公営水道、本下水、駐車場:カースペース | Company profile 会社概要 | | <Mediation> Governor of Hiroshima Prefecture (3) No. 008815 (Ltd.) Jukensha Yubinbango731-5136 Hiroshima, Hiroshima Prefecture Saeki-ku Rakurakuen 2-1-30 <仲介>広島県知事(3)第008815号(株)住研社〒731-5136 広島県広島市佐伯区楽々園2-1-30 |
 Local appearance photo
現地外観写真
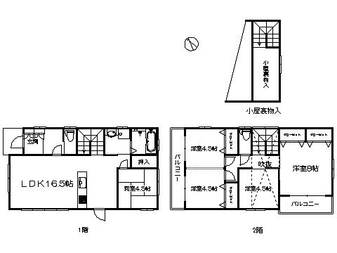
Floor plan間取り図  33,800,000 yen, 5LDK, Land area 134.04 sq m , Building area 104.33 sq m ※ Floor Plan current state priority
3380万円、5LDK、土地面積134.04m2、建物面積104.33m2 ※間取り図現況優先
 Local appearance photo
現地外観写真
 Local appearance photo
現地外観写真
 Entrance
玄関
Local photos, including front road前面道路含む現地写真  September 5 shooting
9月5日撮影
Supermarketスーパー  Izumi Until Itsukaichi shop 265m
イズミ 五日市店まで265m
Local appearance photo現地外観写真  Parking lot
駐車場
Local photos, including front road前面道路含む現地写真  September 5 shooting
9月5日撮影
Supermarketスーパー  Fresh market Day ・ Link Until Itsukaichi shop 355m
生鮮市場デイ・リンク 五日市店まで355m
Other Environmental Photoその他環境写真  EDION Until Itsukaichi shop 339m
エディオン 五日市店まで339m
Supermarketスーパー  Marche over 481m until Itsukaichi center shop
マルシェー 五日市中央店まで481m
Junior high school中学校  Itsukaichi 532m until junior high school
五日市中学校まで532m
Other Environmental Photoその他環境写真  Billy ・ The ・ Kid Until Itsukaichi shop 559m
ビリー・ザ・キッド 五日市店まで559m
Park公園  682m to a second park under the house
宮の下第二公園まで682m
Supermarketスーパー  Yours 734m until the third muscle shop
ユアーズ 三筋店まで734m
Primary school小学校  Itsukaichi the center to the elementary school 771m
五日市中央小学校まで771m
Location
|