New Homes » Chugoku » Hiroshima » Saeki-ku
 
| | Hiroshima, Hiroshima Prefecture Saeki-ku, 広島県広島市佐伯区 |
| Hiroden Miyajima Line "Rakurakuen" walk 15 minutes 広島電鉄宮島線「楽々園」歩15分 |
| Flat 35S interest rate Plan A corresponding (10-year interest rate cuts type) Solid foundation Exterior wall siding 1F ・ 2F Washlet Interior building material: use low-Holm material Artificial marble counter Cross: Non フラット35S金利Aプラン対応(10年金利引下げタイプ) ベタ基礎 外壁サイディング 1F・2Fウォシュレット 内装建材:低ホルム材使用 人造大理石カウンター クロス:ノン |
Features pickup 特徴ピックアップ | | Corner lot / Face-to-face kitchen / 2-story / Double-glazing / Warm water washing toilet seat / Underfloor Storage / TV monitor interphone / Walk-in closet / City gas 角地 /対面式キッチン /2階建 /複層ガラス /温水洗浄便座 /床下収納 /TVモニタ付インターホン /ウォークインクロゼット /都市ガス | Price 価格 | | 24,800,000 yen 2480万円 | Floor plan 間取り | | 3LDK 3LDK | Units sold 販売戸数 | | 1 units 1戸 | Total units 総戸数 | | 2 units 2戸 | Land area 土地面積 | | 99.19 sq m (30.00 tsubo) (Registration) 99.19m2(30.00坪)(登記) | Building area 建物面積 | | 88.62 sq m (26.80 tsubo) (Registration) 88.62m2(26.80坪)(登記) | Driveway burden-road 私道負担・道路 | | Nothing, Northeast 4.9m width, North 4m width 無、北東4.9m幅、北4m幅 | Completion date 完成時期(築年月) | | February 2014 2014年2月 | Address 住所 | | Hiroshima, Hiroshima Prefecture Saeki-ku, Miyake 3 広島県広島市佐伯区三宅3 | Traffic 交通 | | Hiroden Miyajima Line "Rakurakuen" walk 15 minutes 広島電鉄宮島線「楽々園」歩15分
| Person in charge 担当者より | | The person in charge (stock) Juken 担当者(株)住研 | Contact お問い合せ先 | | TEL: 0800-603-3432 [Toll free] mobile phone ・ Also available from PHS Caller ID is not notified Please contact the "saw SUUMO (Sumo)" If it does not lead, If the real estate company TEL:0800-603-3432【通話料無料】携帯電話・PHSからもご利用いただけます 発信者番号は通知されません 「SUUMO(スーモ)を見た」と問い合わせください つながらない方、不動産会社の方は
| Building coverage, floor area ratio 建ぺい率・容積率 | | 60% ・ 200% 60%・200% | Time residents 入居時期 | | Consultation 相談 | Land of the right form 土地の権利形態 | | Ownership 所有権 | Structure and method of construction 構造・工法 | | Wooden 2-story 木造2階建 | Use district 用途地域 | | One middle and high 1種中高 | Other limitations その他制限事項 | | ※ Property information full of Saeki-ku, ☆ [Search in the living Research, Inc.!] ※佐伯区の物件情報満載☆【住研社で検索!】 | Overview and notices その他概要・特記事項 | | The person in charge :( stock) Juken, Facilities: Public Water Supply, This sewage, City gas, Building confirmation number: Se 01348, Parking: car space 担当者:(株)住研、設備:公営水道、本下水、都市ガス、建築確認番号:セ01348、駐車場:カースペース | Company profile 会社概要 | | <Mediation> Governor of Hiroshima Prefecture (3) No. 008815 (Ltd.) Jukensha Yubinbango731-5136 Hiroshima, Hiroshima Prefecture Saeki-ku Rakurakuen 2-1-30 <仲介>広島県知事(3)第008815号(株)住研社〒731-5136 広島県広島市佐伯区楽々園2-1-30 |
Local appearance photo現地外観写真  December 22 shooting
12月22日撮影
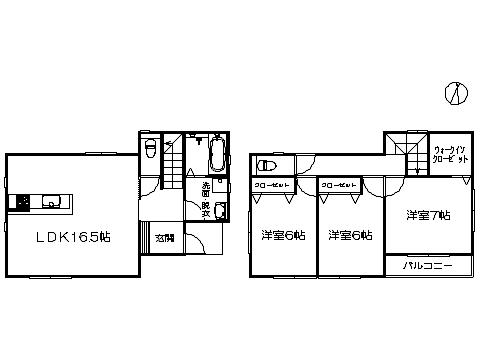
Floor plan間取り図  24,800,000 yen, 3LDK, Land area 99.19 sq m , Building area 88.62 sq m ※ Floor Plan current state priority
2480万円、3LDK、土地面積99.19m2、建物面積88.62m2 ※間取り図現況優先
Local appearance photo現地外観写真  December 22 shooting
12月22日撮影
 December 22 shooting
12月22日撮影
Local photos, including front road前面道路含む現地写真  September 20 shooting
9月20日撮影
Primary school小学校  552m until Itsukaichi Kannon Elementary School
五日市観音小学校まで552m
Local appearance photo現地外観写真  December 22 shooting
12月22日撮影
Local photos, including front road前面道路含む現地写真  September 20 shooting
9月20日撮影
Supermarketスーパー  Yours 519m until the third muscle shop
ユアーズ 三筋店まで519m
 spark Until Sagata shop 726m
スパーク 佐方店まで726m
Convenience storeコンビニ  Wants Hatsukaichi until Sagata shop 890m
ウォンツ廿日市佐方店まで890m
Junior high school中学校  Itsukaichi to Kannon junior high school 1462m
五日市観音中学校まで1462m
Location
|