New Homes » Chugoku » Hiroshima » Saeki-ku


Hiroshima, Hiroshima Prefecture Saeki-ku,
Bus "Minaga" walk 4 minutes
All-electric Cute Double-glazing With lighting Flat 35S (energy saving specifications) corresponding housing Thermal insulation material support Furesuta an 8-minute walk from the Segami a 10-minute walk away Itsukaichi an 8-minute walk from the East Elementary School
Features pickup
Measures to conserve energy / Parking two Allowed / A quiet residential area / 2-story / Double-glazing / Walk-in closet / All-electric
Price
32,100,000 yen
Floor plan
4LDK
Units sold
1 units
Total units
2 units
Land area
136.11 sq m (41.17 tsubo) (Registration)
Building area
98.53 sq m (29.80 tsubo) (Registration)
Driveway burden-road
Nothing, North 6m width, West 8.1m width
Completion date
March 2014
Address
Hiroshima, Hiroshima Prefecture Saeki-ku itsukaichi Oaza Misuzu Gardens
Traffic
Bus "Minaga" walk 4 minutes
Person in charge
The person in charge (stock) Juken
Contact
TEL: 0800-603-3432 [Toll free] mobile phone ・ Also available from PHS
Caller ID is not notified
Please contact the "saw SUUMO (Sumo)"
If it does not lead, If the real estate company
Building coverage, floor area ratio
Fifty percent ・ Hundred percent
Time residents
Consultation
Land of the right form
Ownership
Structure and method of construction
Wooden 2-story
Use district
One low-rise
Overview and notices
The person in charge :( stock) Juken, Facilities: Public Water Supply, This sewage, Building confirmation number: Se 01322, Parking: car space
Company profile
<Mediation> Governor of Hiroshima Prefecture (3) No. 008815 (Ltd.) Jukensha Yubinbango731-5136 Hiroshima, Hiroshima Prefecture Saeki-ku Rakurakuen 2-1-30


Local appearance photo

Local appearance photo. December 22 shooting
December 22 shooting

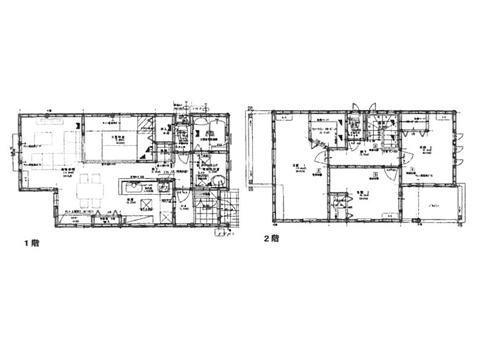
Floor plan

Floor plan. 32,100,000 yen, 4LDK, Land area 136.11 sq m , Building area 98.53 sq m
32,100,000 yen, 4LDK, Land area 136.11 sq m , Building area 98.53 sq m

Local appearance photo

Local appearance photo. December 22 shooting
December 22 shooting

Local appearance photo. December 22 shooting
December 22 shooting

Local photos, including front road

Local photos, including front road. November 28, shooting
November 28, shooting

Primary school

Primary school. Itsukaichi 726m to East Elementary School
Itsukaichi 726m to East Elementary School

Local photos, including front road

Local photos, including front road. November 28, shooting
November 28, shooting

Junior high school

Junior high school. Itsukaichi 1675m until junior high school
Itsukaichi 1675m until junior high school

Other Environmental Photo

Other Environmental Photo. COCO's Until Itsukaichi shop 841m
COCO's Until Itsukaichi shop 841m

Other Environmental Photo. Joyfull 816m to Hiroshima Yahata shop
Joyfull 816m to Hiroshima Yahata shop

Other Environmental Photo. Tokugawa Until Itsukaichi shop 851m
Tokugawa Until Itsukaichi shop 851m

Other Environmental Photo. Until Misuzu Garden 542m
Until Misuzu Garden 542m

Other Environmental Photo. SHiDAX 689m to Hiroshima Itsukaichi club
SHiDAX 689m to Hiroshima Itsukaichi club



Location