New Homes » Chugoku » Hiroshima » Kure
 
| | Hiroshima Prefecture Kure 広島県呉市 |
| Bus "Izumigaoka housing complex" walk 5 minutes バス「泉ヶ丘団地」歩5分 |
| [Possible tour] ※ And comfortable detached wide balcony that can life while enjoying the light of the advance please contact us day, Living is a wonderful newly built single-family coat 【見学可能】※事前にご連絡ください日の光を楽しみながら生活のできる快適一戸建て広いバルコニーと、リビングコートの素敵な新築一戸建てです |
| (1F) LDK18.5 Pledge, Sum 4.5, Living Court (2F) Hiroshi 8, Hiroshi 6, Hiroshi 5.3, Toilet corner lot. Floor change Allowed. Yang per good. A quiet residential area. Parking: Two possible road: Northeast ・ Southeast. Urbanization promotion area. The first kind low-rise residential-only. guide ・ Advertisement ・ Internet pre-confirmation necessity Poster, etc. cash water contributions, Performance guarantee, etc., For more information please contact the person in charge (in charge: Fujita, TEL.082-854-5128) ※ Since there is a case of a somewhat change specification and design, Please note. (1F)LDK18.5帖、和4.5、リビングコート(2F)洋8、洋6、洋5.3、トイレ角地。間取り変更可。陽当り良好。閑静な住宅街。駐車場:2台可道路:北東・南東。市街化区域。第1種低層住居専用。案内・広告・インターネット事前確認要 張り紙等現金水道負担金、性能保証等、詳細は担当者までお問い合わせ下さい(担当:藤田、TEL.082-854-5128)※仕様および設計を多少変更する場合がありますので、予めご了承下さい。 |
Features pickup 特徴ピックアップ | | Year Available / Parking two Allowed / 2 along the line more accessible / LDK18 tatami mats or more / Yang per good / A quiet residential area / Around traffic fewer / Corner lot / Japanese-style room / garden / Face-to-face kitchen / Wide balcony / Toilet 2 places / 2-story / Southeast direction / South balcony / The window in the bathroom / Ventilation good / Walk-in closet / Flat terrain / All rooms facing southeast 年内入居可 /駐車2台可 /2沿線以上利用可 /LDK18畳以上 /陽当り良好 /閑静な住宅地 /周辺交通量少なめ /角地 /和室 /庭 /対面式キッチン /ワイドバルコニー /トイレ2ヶ所 /2階建 /東南向き /南面バルコニー /浴室に窓 /通風良好 /ウォークインクロゼット /平坦地 /全室東南向き | Event information イベント情報 | | Open House (Please make a reservation beforehand) schedule / Now open [You can visit the room] Already completed already, Not tenant property is. In the case of the indoor tour hope, 082-854-5128 (Fujita) please contact us as "a look at the Sumo" to. Get in advance please contact, So you can guide you smoothly, Humbly thank you. オープンハウス(事前に必ず予約してください)日程/公開中【室内見学ができます】既に完成済の、未入居物件です。室内見学ご希望の場合は、082-854-5128(藤田)へ「スーモを見て」とご連絡ください。あらかじめご連絡いただくと、スムーズにご案内できますので、何卒よろしくお願い申し上げます。 | Price 価格 | | 25,800,000 yen 2580万円 | Floor plan 間取り | | 4LDK 4LDK | Units sold 販売戸数 | | 1 units 1戸 | Total units 総戸数 | | 1 units 1戸 | Land area 土地面積 | | 163.89 sq m (49.57 tsubo) (Registration) 163.89m2(49.57坪)(登記) | Building area 建物面積 | | 112.61 sq m (34.06 tsubo) (Registration) 112.61m2(34.06坪)(登記) | Driveway burden-road 私道負担・道路 | | Nothing, Northeast 8.2m width, Southeast 4.7m width 無、北東8.2m幅、南東4.7m幅 | Completion date 完成時期(築年月) | | April 2012 2012年4月 | Address 住所 | | Hiroshima Prefecture Kure yakeyama Izumigaoka 2-3 No.B 広島県呉市焼山泉ヶ丘2-3 No.B | Traffic 交通 | | Bus "Izumigaoka housing complex" walk 5 minutes JR Kure Line "Yano" walk 76 minutes JR Kure Line "Ten応" walk 91 minutes バス「泉ヶ丘団地」歩5分JR呉線「矢野」歩76分 JR呉線「天応」歩91分
| Related links 関連リンク | | [Related Sites of this company] 【この会社の関連サイト】 | Contact お問い合せ先 | | TEL: 0800-603-2298 [Toll free] mobile phone ・ Also available from PHS Caller ID is not notified Please contact the "saw SUUMO (Sumo)" If it does not lead, If the real estate company TEL:0800-603-2298【通話料無料】携帯電話・PHSからもご利用いただけます 発信者番号は通知されません 「SUUMO(スーモ)を見た」と問い合わせください つながらない方、不動産会社の方は
| Building coverage, floor area ratio 建ぺい率・容積率 | | Fifty percent ・ Hundred percent 50%・100% | Time residents 入居時期 | | Consultation 相談 | Land of the right form 土地の権利形態 | | Ownership 所有権 | Structure and method of construction 構造・工法 | | Wooden 2-story 木造2階建 | Use district 用途地域 | | One low-rise 1種低層 | Overview and notices その他概要・特記事項 | | Facilities: Public Water Supply, Individual LPG, Parking: car space 設備:公営水道、個別LPG、駐車場:カースペース | Company profile 会社概要 | | <Seller> Governor of Hiroshima Prefecture (4) No. 007809 (Corporation) Hiroshima Prefecture Building Lots and Buildings Transaction Business Association China district Real Estate Fair Trade Council member (with) Fujita builders Yubinbango731-4200, Aki-gun, Hiroshima Kumano-cho, Hagiwara Baba 6027-1 <売主>広島県知事(4)第007809号(公社)広島県宅地建物取引業協会会員 中国地区不動産公正取引協議会加盟(有)藤田工務店〒731-4200 広島県安芸郡熊野町萩原馬場6027-1 |
Local appearance photo現地外観写真  Local (10 May 2013) Shooting
現地(2013年10月)撮影
Bathroom浴室  Indoor (10 May 2013) Shooting
室内(2013年10月)撮影
Kitchenキッチン  Indoor (10 May 2013) Shooting
室内(2013年10月)撮影
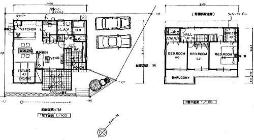
Floor plan間取り図  25,800,000 yen, 4LDK, Land area 163.89 sq m , Building area 112.61 sq m
2580万円、4LDK、土地面積163.89m2、建物面積112.61m2
Local appearance photo現地外観写真  Local (May 2013) Shooting
現地(2013年5月)撮影
Livingリビング  Indoor (10 May 2013) Shooting
室内(2013年10月)撮影
Kitchenキッチン  Indoor (10 May 2013) Shooting
室内(2013年10月)撮影
Entrance玄関  Local (10 May 2013) Shooting
現地(2013年10月)撮影
Receipt収納  Indoor (10 May 2013) Shooting
室内(2013年10月)撮影
Other introspectionその他内観  Indoor (10 May 2013) Shooting
室内(2013年10月)撮影
 Other
その他
Local appearance photo現地外観写真  Local (May 2013) Shooting
現地(2013年5月)撮影
Kitchenキッチン  Indoor (10 May 2013) Shooting
室内(2013年10月)撮影
Receipt収納  Indoor (10 May 2013) Shooting
室内(2013年10月)撮影
 Local appearance photo
現地外観写真
Location
|