New Homes » Chugoku » Hiroshima » Kure


Hiroshima Prefecture Kure
Hiroshima Electric Railway "Kamigakyo" walk 3 minutes
JR Yoshiura Station 4-minute walk of the good location
■ Also safe old age because it is flat to the station ■ Parking two possible ■ Supermarket ・ Bank ・ Convenient to life at the station within a 5-minute walk ■ Friendly household because it is all-electric homes ■ IH ・ Equipment with a high-function toilet has been enhanced ■ It is housed in the whole room there is very convenient
Features pickup
Parking two Allowed / Super close / Flat to the station / 2-story / High-function toilet / IH cooking heater / All-electric / Flat terrain
Price
26,180,000 yen
Floor plan
4LDK
Units sold
1 units
Total units
1 units
Land area
121.58 sq m (registration)
Building area
106.4 sq m (registration)
Driveway burden-road
Nothing, North 4m width
Completion date
August 2013
Address
Hiroshima Prefecture Kure Yoshiurahigashihon cho
Traffic
Hiroshima Electric Railway "Kamigakyo" walk 3 minutes JR Kure Line "Yoshiura" walk 6 minutes
JR Kure Line "Karugahama" walk 20 minutes
Related links
[Related Sites of this company]
Person in charge
The person in charge Shinohara
Contact
TEL: 0800-603-3620 [Toll free] mobile phone ・ Also available from PHS
Caller ID is not notified
Please contact the "saw SUUMO (Sumo)"
If it does not lead, If the real estate company
Building coverage, floor area ratio
80% ・ 300%
Time residents
Consultation
Land of the right form
Ownership
Structure and method of construction
Wooden 2-story
Use district
Residential
Overview and notices
Contact: Shinohara, Facilities: Public Water Supply, This sewage, All-electric, Parking: car space
Company profile
<Mediation> Governor of Hiroshima Prefecture (6) Article 006948 No. cosmid Real Estate Co., Ltd. Yubinbango733-0002 Hiroshima, Hiroshima Prefecture, Nishi-ku, Kusunoki-cho, 1-13-11


Local appearance photo
Local appearance photo

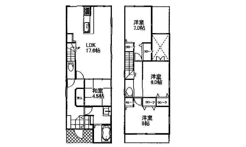
Floor plan

Floor plan. 26,180,000 yen, 4LDK, Land area 121.58 sq m , Building area 106.4 sq m 1F 17.6LDK 4.5 Hiroshi toilet  2F 8 Hiroshi 7 Hiroshi 6 Hiroshi toilet
26,180,000 yen, 4LDK, Land area 121.58 sq m , Building area 106.4 sq m 1F 17.6LDK 4.5 Hiroshi toilet 2F 8 Hiroshi 7 Hiroshi 6 Hiroshi toilet

Living
Living

Local appearance photo

Local appearance photo. August 2013 shooting
August 2013 shooting

Bathroom
Bathroom

Kitchen
Kitchen

Entrance
Entrance

Toilet

Toilet. August 2013 shooting
August 2013 shooting

Station

station. 200m until Yoshiura Station
200m until Yoshiura Station

Other introspection

Other introspection. August 2013 shooting
August 2013 shooting

Kitchen
Kitchen

Other introspection. August 2013 shooting
August 2013 shooting

Other introspection. August 2013 shooting
August 2013 shooting



Location