New Homes » Chugoku » Hiroshima » Kure
 
| | Hiroshima Prefecture Kure 広島県呉市 |
| JR Kure Line "Yoshiura" walk 4 minutes JR呉線「吉浦」歩4分 |
| Station near !! super close !! downtown atmosphere of town !! 駅近!!スーパー至近!!下町雰囲気な町並み!! |
| While leaving a downtown feel, Life of Transport was also felt pretty good. I felt surprisingly day may also be Once in the house. 下町な感じを残しつつ、生活も交通もかなり良いと感じました。家に入ったら意外に日当たりも良いと感じました。 |
Features pickup 特徴ピックアップ | | Parking two Allowed / Immediate Available / Super close / Within 2km to the sea / System kitchen / Bathroom Dryer / Yang per good / All room storage / Flat to the station / LDK15 tatami mats or more / Japanese-style room / Washbasin with shower / Face-to-face kitchen / Toilet 2 places / Bathroom 1 tsubo or more / 2-story / 2 or more sides balcony / South balcony / Double-glazing / Nantei / TV monitor interphone / IH cooking heater / Dish washing dryer / All-electric / Flat terrain / terrace 駐車2台可 /即入居可 /スーパーが近い /海まで2km以内 /システムキッチン /浴室乾燥機 /陽当り良好 /全居室収納 /駅まで平坦 /LDK15畳以上 /和室 /シャワー付洗面台 /対面式キッチン /トイレ2ヶ所 /浴室1坪以上 /2階建 /2面以上バルコニー /南面バルコニー /複層ガラス /南庭 /TVモニタ付インターホン /IHクッキングヒーター /食器洗乾燥機 /オール電化 /平坦地 /テラス | Price 価格 | | 26,180,000 yen 2618万円 | Floor plan 間取り | | 4LDK 4LDK | Units sold 販売戸数 | | 1 units 1戸 | Total units 総戸数 | | 1 units 1戸 | Land area 土地面積 | | 121.58 sq m (36.77 tsubo) (Registration) 121.58m2(36.77坪)(登記) | Building area 建物面積 | | 106.4 sq m (32.18 tsubo) (Registration) 106.4m2(32.18坪)(登記) | Driveway burden-road 私道負担・道路 | | Nothing 無 | Completion date 完成時期(築年月) | | July 2013 2013年7月 | Address 住所 | | Hiroshima Prefecture Kure Yoshiurahigashihon cho 広島県呉市吉浦東本町1 | Traffic 交通 | | JR Kure Line "Yoshiura" walk 4 minutes Hiroshima Electric Railway bus "Kamigakyo" walk 3 minutes JR呉線「吉浦」歩4分 広島電鉄バス「神賀橋」歩3分 | Contact お問い合せ先 | | (Ltd.) Strawberry Real Estate TEL: 082-573-0828 Please inquire as "saw SUUMO (Sumo)" (株)いちご不動産TEL:082-573-0828「SUUMO(スーモ)を見た」と問い合わせください | Building coverage, floor area ratio 建ぺい率・容積率 | | 80% ・ 300% 80%・300% | Time residents 入居時期 | | Immediate available 即入居可 | Land of the right form 土地の権利形態 | | Ownership 所有権 | Structure and method of construction 構造・工法 | | Wooden 2-story 木造2階建 | Use district 用途地域 | | Residential 近隣商業 | Overview and notices その他概要・特記事項 | | Facilities: Public Water Supply, This sewage, All-electric, Parking: car space 設備:公営水道、本下水、オール電化、駐車場:カースペース | Company profile 会社概要 | | <Mediation> Governor of Hiroshima Prefecture (1) No. 010198 (Ltd.) strawberry real estate Yubinbango739-1733 Hiroshima, Hiroshima Prefecture Asakita Ku Kuchitaminami 4-48-16 <仲介>広島県知事(1)第010198号(株)いちご不動産〒739-1733 広島県広島市安佐北区口田南4-48-16 |
Local appearance photo現地外観写真  Local (August 2013) Shooting
現地(2013年8月)撮影
Livingリビング  Room (August 2013) Shooting 1st floor LDK17.6 Pledge
室内(2013年8月)撮影 1階 LDK17.6帖
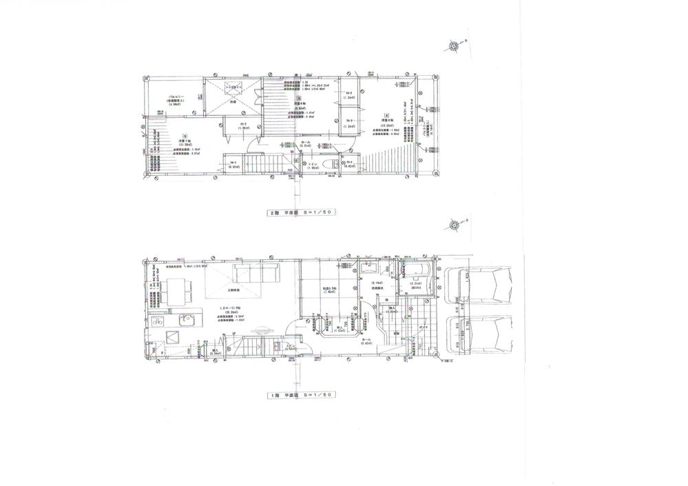
Floor plan間取り図  26,180,000 yen, 4LDK, Land area 121.58 sq m , Building area 106.4 sq m
2618万円、4LDK、土地面積121.58m2、建物面積106.4m2
Livingリビング  Room (August 2013) Shooting
室内(2013年8月)撮影
Bathroom浴室  Room (August 2013) Shooting
室内(2013年8月)撮影
Kitchenキッチン  Room (August 2013) Shooting
室内(2013年8月)撮影
Non-living roomリビング以外の居室  Room (August 2013) Shooting
室内(2013年8月)撮影
Wash basin, toilet洗面台・洗面所  Room (August 2013) Shooting
室内(2013年8月)撮影
Receipt収納  Room (August 2013) Shooting
室内(2013年8月)撮影
Toiletトイレ  Room (August 2013) Shooting
室内(2013年8月)撮影
Parking lot駐車場  Local (August 2013) Shooting
現地(2013年8月)撮影
Balconyバルコニー  Local (August 2013) Shooting
現地(2013年8月)撮影
View photos from the dwelling unit住戸からの眺望写真  Local (August 2013) Shooting
現地(2013年8月)撮影
Other localその他現地  Local (August 2013) Shooting
現地(2013年8月)撮影
Non-living roomリビング以外の居室  Room (August 2013) Shooting
室内(2013年8月)撮影
Toiletトイレ  Room (August 2013) Shooting
室内(2013年8月)撮影
Non-living roomリビング以外の居室  Room (August 2013) Shooting
室内(2013年8月)撮影
 Room (August 2013) Shooting
室内(2013年8月)撮影
Location
|