New Homes » Chugoku » Hiroshima » Kure
 
| | Hiroshima Prefecture Kure 広島県呉市 |
| Hiroden bus "Izumigaoka housing complex" walk 5 minutes 広電バス「泉ヶ丘団地」歩5分 |
| [ Panasonic HIT solar power generation system installed ] Energy-saving housing 【 パナソニックHIT 太陽光発電システム搭載 】の省エネ住宅 |
| ■ park ・ Near schools, Shopping is also convenient yakeyama Izumigaoka Complex ■公園・学校も近く、買い物も便利な焼山泉ヶ丘団地 |
Features pickup 特徴ピックアップ | | Construction housing performance with evaluation / Measures to conserve energy / Corresponding to the flat-35S / Solar power system / Airtight high insulated houses / Pre-ground survey / Parking two Allowed / Energy-saving water heaters / See the mountain / Super close / System kitchen / Bathroom Dryer / All room storage / A quiet residential area / LDK15 tatami mats or more / Around traffic fewer / Japanese-style room / Washbasin with shower / Face-to-face kitchen / Barrier-free / Toilet 2 places / Bathroom 1 tsubo or more / 2-story / Double-glazing / Otobasu / Warm water washing toilet seat / Underfloor Storage / The window in the bathroom / TV monitor interphone / High-function toilet / IH cooking heater / Dish washing dryer / Walk-in closet / Living stairs / All-electric 建設住宅性能評価付 /省エネルギー対策 /フラット35Sに対応 /太陽光発電システム /高気密高断熱住宅 /地盤調査済 /駐車2台可 /省エネ給湯器 /山が見える /スーパーが近い /システムキッチン /浴室乾燥機 /全居室収納 /閑静な住宅地 /LDK15畳以上 /周辺交通量少なめ /和室 /シャワー付洗面台 /対面式キッチン /バリアフリー /トイレ2ヶ所 /浴室1坪以上 /2階建 /複層ガラス /オートバス /温水洗浄便座 /床下収納 /浴室に窓 /TVモニタ付インターホン /高機能トイレ /IHクッキングヒーター /食器洗乾燥機 /ウォークインクロゼット /リビング階段 /オール電化 | Event information イベント情報 | | Local tours (please visitors to direct local) schedule / Every Saturday and Sunday time / 10:00 ~ 17:00 現地見学会(直接現地へご来場ください)日程/毎週土日時間/10:00 ~ 17:00 | Price 価格 | | 23.8 million yen ・ 24,800,000 yen 2380万円・2480万円 | Floor plan 間取り | | 4LDK ・ 4LDK + S (storeroom) 4LDK・4LDK+S(納戸) | Units sold 販売戸数 | | 2 units 2戸 | Total units 総戸数 | | 2 units 2戸 | Land area 土地面積 | | 112.31 sq m ・ 118.78 sq m (33.97 tsubo ・ 35.93 tsubo) (measured) 112.31m2・118.78m2(33.97坪・35.93坪)(実測) | Building area 建物面積 | | 103.02 sq m ・ 105.16 sq m (31.16 tsubo ・ 31.81 tsubo) (measured) 103.02m2・105.16m2(31.16坪・31.81坪)(実測) | Completion date 完成時期(築年月) | | In late September 2013 2013年9月下旬 | Address 住所 | | Hiroshima Prefecture Kure yakeyama Izumigaoka 2 広島県呉市焼山泉ヶ丘2 | Traffic 交通 | | Hiroden bus "Izumigaoka housing complex" walk 5 minutes 広電バス「泉ヶ丘団地」歩5分 | Person in charge 担当者より | | Rep hot 担当者厚井 | Contact お問い合せ先 | | (Ltd.) Yamamura real estate development Funakoshi Branch TEL: 082-823-2022 Please inquire as "saw SUUMO (Sumo)" (株)山村不動産開発船越支店TEL:082-823-2022「SUUMO(スーモ)を見た」と問い合わせください | Time residents 入居時期 | | 2 months after the contract 契約後2ヶ月 | Land of the right form 土地の権利形態 | | Ownership 所有権 | Structure and method of construction 構造・工法 | | Wooden 2-story (2 × 4 construction method), Wooden 2-story (2 × 4 construction method) 木造2階建(2×4工法)、木造2階建(2×4工法) | Construction 施工 | | Co., Ltd. mountain village real estate development 株式会社山村不動産開発 | Use district 用途地域 | | One low-rise 1種低層 | Overview and notices その他概要・特記事項 | | Contact Person: hot, Building confirmation number: No. 00618, 00619 No. 担当者:厚井、建築確認番号:00618号、00619号 | Company profile 会社概要 | | <Seller> Governor of Hiroshima Prefecture (7) No. 006113 (Ltd.) Yamamura real estate development Funakoshi branch Yubinbango736-0082 Hiroshima, Hiroshima Prefecture Aki-ku, Funakoshiminami 1-5-10 <売主>広島県知事(7)第006113号(株)山村不動産開発船越支店〒736-0082 広島県広島市安芸区船越南1-5-10 |
Local appearance photo現地外観写真  Local (10 May 2013) Shooting
現地(2013年10月)撮影
Livingリビング  1 Building Indoor (10 May 2013) Shooting
1号棟 室内(2013年10月)撮影
Kitchenキッチン  1 Building Indoor (10 May 2013) Shooting
1号棟 室内(2013年10月)撮影
Floor plan間取り図  (1 Building), Price 24,800,000 yen, 4LDK+S, Land area 112.31 sq m , Building area 105.16 sq m
(1号棟)、価格2480万円、4LDK+S、土地面積112.31m2、建物面積105.16m2
Bathroom浴室  1 Building Indoor (10 May 2013) Shooting
1号棟 室内(2013年10月)撮影
Toiletトイレ  1 Building
1号棟
Other introspectionその他内観  1 Building 1F Japanese-style room
1号棟 1F和室
Otherその他  1 Building Panasonic HIT Solar power
1号棟 パナソニックHIT 太陽光発電
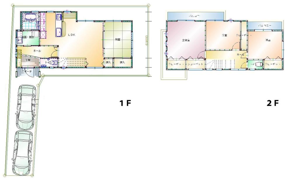
Floor plan間取り図  (Building 2), Price 23.8 million yen, 4LDK, Land area 118.78 sq m , Building area 103.02 sq m
(2号棟)、価格2380万円、4LDK、土地面積118.78m2、建物面積103.02m2
Other introspectionその他内観  1 Building 2F Master Bedroom (with WIC)
1号棟 2F主寝室(WICあり)
Location
|