New Homes » Chugoku » Hiroshima » Kure


Hiroshima Prefecture Kure
Bus "Yumekeokahigashi bus stop" walk 5 minutes
● one section to the spacious living 19.9LDK of large Town! Stuck to the attic storage such as a storage space in the sun per good ● WIC in the corner lot house
Floor plan that One stuck to housework flow line. Easy also to hang out the laundry in a large two-sided balcony. All-electric ・ Also reduces the running cost of the monthly at Eco Cute. Friendly house in the wife to the household.
Features pickup
Pre-ground survey / Land 50 square meters or more / LDK18 tatami mats or more / See the mountain / System kitchen / Bathroom Dryer / All room storage / Corner lot / Japanese-style room / Washbasin with shower / Face-to-face kitchen / Barrier-free / Toilet 2 places / 2-story / Double-glazing / Warm water washing toilet seat / Leafy residential area / IH cooking heater / Dish washing dryer / Walk-in closet / Water filter / Located on a hill / Attic storage
Price
27.3 million yen
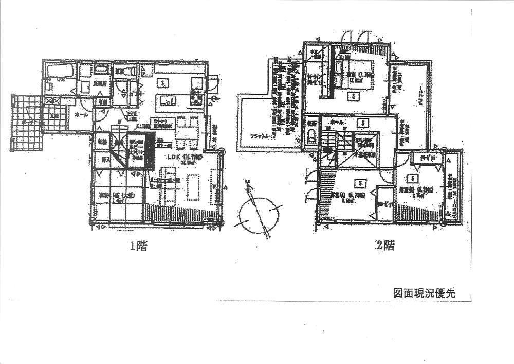
Floor plan
4LDK
Units sold
1 units
Total units
38 houses
Land area
184.4 sq m (measured)
Building area
108.89 sq m (measured)
Driveway burden-road
Nothing, Northeast 5m width, Southeast 10m width
Completion date
May 2013
Address
Hiroshima Prefecture Kure push 1-17
Traffic
Bus "Yumekeokahigashi bus stop" walk 5 minutes
Related links
[Related Sites of this company]
Person in charge
Person in charge of real-estate and building Ishigami Shuji Age: 40 Daigyokai Experience: Shi ask the hope of the 12-year customer, We will strive to allow accurate advice.
Contact
TEL: 0800-603-8357 [Toll free] mobile phone ・ Also available from PHS
Caller ID is not notified
Please contact the "saw SUUMO (Sumo)"
If it does not lead, If the real estate company
Building coverage, floor area ratio
60% ・ 200%
Time residents
Immediate available
Land of the right form
Ownership
Structure and method of construction
Wooden 2-story (framing method)
Construction
(Ltd.) Takaken
Use district
Two dwellings
Overview and notices
Contact: Ishigami Shuji, Facilities: Public Water Supply, This sewage, All-electric, Parking: car space
Company profile
<Mediation> Governor of Hiroshima Prefecture (1) No. 009574 (Ltd.) F.four (F ・ Four) Yubinbango734-0007 Hiroshima, Hiroshima Prefecture, Minami-ku, Minami-cho, 1-11-23


Local appearance photo
Local appearance photo

Floor plan

Floor plan. 27.3 million yen, 4LDK, Land area 184.4 sq m , Building area 108.89 sq m
27.3 million yen, 4LDK, Land area 184.4 sq m , Building area 108.89 sq m

Kitchen
Kitchen

Living
Living

Bathroom
Bathroom

Non-living room

Non-living room. Japanese style room
Japanese style room

Wash basin, toilet
Wash basin, toilet

Receipt

Receipt. Attic storage
Attic storage

Shopping centre

Shopping centre. 2934m to Fashion Center Shimamura Kumano shop
2934m to Fashion Center Shimamura Kumano shop

Living
Living

Receipt

Receipt. WIC
WIC

Supermarket

Supermarket. ManSo yakeyama 2611m to shop
ManSo yakeyama 2611m to shop

Convenience store

Convenience store. 1016m until Lawson Hiroshima Yano temple mansion shop
1016m until Lawson Hiroshima Yano temple mansion shop

Drug store

Drug store. Drag Segami yakeyama 2471m to shop
Drag Segami yakeyama 2471m to shop

Junior high school

Junior high school. 664m to Kure Municipal Showakita junior high school
664m to Kure Municipal Showakita junior high school

Primary school

Primary school. 1893m to Kure Municipal Showakita Elementary School
1893m to Kure Municipal Showakita Elementary School

Kindergarten ・ Nursery

kindergarten ・ Nursery. Yakeyama Kobato to kindergarten 791m
Yakeyama Kobato to kindergarten 791m

Hospital

Hospital. 2211m until the medical corporation Asada Board Asada hospital
2211m until the medical corporation Asada Board Asada hospital

Post office

post office. Wu Izumigaoka 1217m to the post office
Wu Izumigaoka 1217m to the post office



Location