|
|
Hiroshima Prefecture Kure
広島県呉市
|
|
JR Kure Line "Nigata" walk 3 minutes
JR呉線「仁方」歩3分
|
|
Detailed drawings are available. Click on the document request! JR nigata station walk 3 minutes, May living environment refreshing appearance that live in the elementary and junior high schools is also very close to the peace of mind Safe & eco-friendly new homes in all-electric
詳細図面ご用意しております。資料請求するをクリック!JR仁方駅徒歩3分、小中学校もすぐ近くのあんしんで住みよい住環境爽やかな外観 オール電化で安全&エコな新築住宅
|
|
◆ Spacious site 48 square meters You can be welcoming of the parallel three parking OK Customers
◆ゆったり敷地48坪 並列3台駐車OK お客様の快くお迎えできますね
|
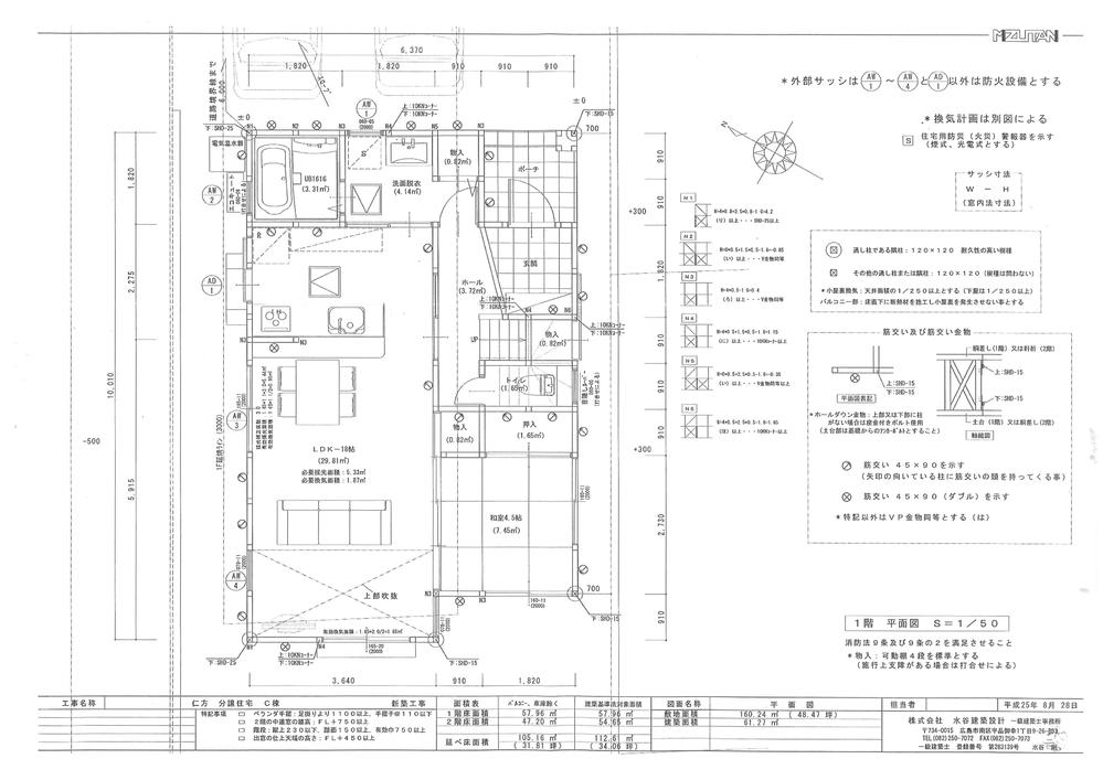
Features pickup 特徴ピックアップ | | Corresponding to the flat-35S / Pre-ground survey / Parking three or more possible / LDK18 tatami mats or more / It is close to the city / System kitchen / Yang per good / All room storage / Flat to the station / A quiet residential area / Corner lot / Japanese-style room / Washbasin with shower / Face-to-face kitchen / Wide balcony / Toilet 2 places / 2-story / Warm water washing toilet seat / The window in the bathroom / TV monitor interphone / Leafy residential area / Ventilation good / IH cooking heater / All-electric / All rooms are two-sided lighting / Maintained sidewalk / Flat terrain フラット35Sに対応 /地盤調査済 /駐車3台以上可 /LDK18畳以上 /市街地が近い /システムキッチン /陽当り良好 /全居室収納 /駅まで平坦 /閑静な住宅地 /角地 /和室 /シャワー付洗面台 /対面式キッチン /ワイドバルコニー /トイレ2ヶ所 /2階建 /温水洗浄便座 /浴室に窓 /TVモニタ付インターホン /緑豊かな住宅地 /通風良好 /IHクッキングヒーター /オール電化 /全室2面採光 /整備された歩道 /平坦地 |
Price 価格 | | 24,900,000 yen 2490万円 |
Floor plan 間取り | | 4LDK 4LDK |
Units sold 販売戸数 | | 1 units 1戸 |
Total units 総戸数 | | 1 units 1戸 |
Land area 土地面積 | | 160.24 sq m (48.47 tsubo) (Registration) 160.24m2(48.47坪)(登記) |
Building area 建物面積 | | 112.61 sq m (34.06 tsubo) (Registration) 112.61m2(34.06坪)(登記) |
Driveway burden-road 私道負担・道路 | | Nothing, Northeast 4m width, Northwest 3.9m width 無、北東4m幅、北西3.9m幅 |
Completion date 完成時期(築年月) | | January 2014 2014年1月 |
Address 住所 | | Hiroshima Prefecture Kure Nigatahon-cho 1-4 広島県呉市仁方本町1-4 |
Traffic 交通 | | JR Kure Line "Nigata" walk 3 minutes JR呉線「仁方」歩3分
|
Related links 関連リンク | | [Related Sites of this company] 【この会社の関連サイト】 |
Contact お問い合せ先 | | TEL: 0800-603-2334 [Toll free] mobile phone ・ Also available from PHS Caller ID is not notified Please contact the "saw SUUMO (Sumo)" If it does not lead, If the real estate company TEL:0800-603-2334【通話料無料】携帯電話・PHSからもご利用いただけます 発信者番号は通知されません 「SUUMO(スーモ)を見た」と問い合わせください つながらない方、不動産会社の方は
|
Building coverage, floor area ratio 建ぺい率・容積率 | | 60% ・ 200% 60%・200% |
Time residents 入居時期 | | January 2014 will 2014年1月予定 |
Land of the right form 土地の権利形態 | | Ownership 所有権 |
Structure and method of construction 構造・工法 | | Wooden 2-story 木造2階建 |
Use district 用途地域 | | One dwelling 1種住居 |
Overview and notices その他概要・特記事項 | | Facilities: Public Water Supply, This sewage, All-electric, Building confirmation number: 1384, Parking: car space 設備:公営水道、本下水、オール電化、建築確認番号:1384、駐車場:カースペース |
Company profile 会社概要 | | <Mediation> Governor of Hiroshima Prefecture (10) No. 003694 (Corporation) Hiroshima Prefecture Building Lots and Buildings Transaction Business Association China district Real Estate Fair Trade Council member Marken House Co., Ltd. Yubinbango734-0027 Hiroshima, Hiroshima Prefecture, Minami-ku, Nihominami 1-17-21 <仲介>広島県知事(10)第003694号(公社)広島県宅地建物取引業協会会員 中国地区不動産公正取引協議会加盟丸建ハウス(株)〒734-0027 広島県広島市南区仁保南1-17-21 |