New Homes » Chugoku » Hiroshima » Minami-ku
 
| | Hiroshima, Hiroshima Prefecture, Minami-ku, 広島県広島市南区 |
| Hiroden "Shinonomehon cho chome 3" walk 5 minutes 広電「東雲本町3丁目」歩5分 |
| Achieve a near convenient living also commercial facilities. Roof balcony with happy sink to the housewife! It is also easy watering of mini vegetable garden. 商業施設も近く便利な暮らしを実現。ルーフバルコニーは主婦に嬉しいシンク付き!ミニ菜園の水やりも楽々です。 |
Features pickup 特徴ピックアップ | | Corresponding to the flat-35S / Year Available / Yang per good / Flat to the station / LDK15 tatami mats or more / Toilet 2 places / Southeast direction / Urban neighborhood / Three-story or more / All-electric / roof balcony / Flat terrain フラット35Sに対応 /年内入居可 /陽当り良好 /駅まで平坦 /LDK15畳以上 /トイレ2ヶ所 /東南向き /都市近郊 /3階建以上 /オール電化 /ルーフバルコニー /平坦地 | Price 価格 | | 33,800,000 yen 3380万円 | Floor plan 間取り | | 4LDK 4LDK | Units sold 販売戸数 | | 1 units 1戸 | Total units 総戸数 | | 1 units 1戸 | Land area 土地面積 | | 70 sq m (registration) 70m2(登記) | Building area 建物面積 | | 122.1 sq m (measured) 122.1m2(実測) | Driveway burden-road 私道負担・道路 | | Nothing, Southeast 3.5m width 無、南東3.5m幅 | Completion date 完成時期(築年月) | | November 2013 2013年11月 | Address 住所 | | Hiroshima, Hiroshima Prefecture, Minami-ku, Kasumi 2 広島県広島市南区霞2 | Traffic 交通 | | Hiroden "Shinonomehon cho chome 3" walk 5 minutes 広電「東雲本町3丁目」歩5分 | Person in charge 担当者より | | Person in charge of Ohama Akiko 担当者大濱 明子 | Contact お問い合せ先 | | TEL: 0800-603-3620 [Toll free] mobile phone ・ Also available from PHS Caller ID is not notified Please contact the "saw SUUMO (Sumo)" If it does not lead, If the real estate company TEL:0800-603-3620【通話料無料】携帯電話・PHSからもご利用いただけます 発信者番号は通知されません 「SUUMO(スーモ)を見た」と問い合わせください つながらない方、不動産会社の方は
| Building coverage, floor area ratio 建ぺい率・容積率 | | 60% ・ 200% 60%・200% | Time residents 入居時期 | | Consultation 相談 | Land of the right form 土地の権利形態 | | Ownership 所有権 | Structure and method of construction 構造・工法 | | Wooden three-story (framing method) 木造3階建(軸組工法) | Use district 用途地域 | | One dwelling 1種住居 | Overview and notices その他概要・特記事項 | | Contact: Ohama Akiko, Facilities: Public Water Supply, This sewage, All-electric, Building confirmation number: 00739 , Parking: car space 担当者:大濱 明子、設備:公営水道、本下水、オール電化、建築確認番号:00739 、駐車場:カースペース | Company profile 会社概要 | | <Mediation> Governor of Hiroshima Prefecture (6) Article 006948 No. cosmid Real Estate Co., Ltd. Yubinbango733-0002 Hiroshima, Hiroshima Prefecture, Nishi-ku, Kusunoki-cho, 1-13-11 <仲介>広島県知事(6)第006948号木住不動産(株)〒733-0002 広島県広島市西区楠木町1-13-11 |
Local appearance photo現地外観写真  Local (September 2013) Shooting
現地(2013年9月)撮影
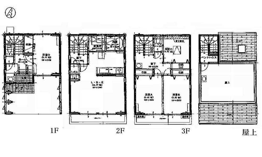
Floor plan間取り図  33,800,000 yen, 4LDK, Land area 70 sq m , Building area 122.1 sq m 1F 5.92 Hiroshi 2F 16.77LDK Wash bathroom toilet 3F 5.82 Hiroshi 5.82 Hiroshi 4 Hiroshi toilet Wash roof balcony
3380万円、4LDK、土地面積70m2、建物面積122.1m2 1F 5.92洋 2F 16.77LDK 洗面 浴室 トイレ 3F 5.82洋 5.82洋 4洋 トイレ 洗面 ルーフバルコニー
Local photos, including front road前面道路含む現地写真  Local (September 2013) Shooting
現地(2013年9月)撮影
Local appearance photo現地外観写真  Local (September 2013) Shooting
現地(2013年9月)撮影
Local photos, including front road前面道路含む現地写真  Local (September 2013) Shooting
現地(2013年9月)撮影
Location
|