New Homes » Chugoku » Hiroshima » Minami-ku
 
| | Hiroshima, Hiroshima Prefecture, Minami-ku, 広島県広島市南区 |
| Hiroshima "Shinonomehon-cho 3-chome" walk 5 minutes 広島「東雲本町3丁目」歩5分 |
| ● must-see! Rooftop roof balcony can also be used in various applications ● Siemens south road Sunny ●必見!屋上ルーフバルコニー 色んな用途にも使えます●南面道路面す 日当たり良好 |
| Energy-saving water heaters, Facing south, System kitchen, Bathroom Dryer, Yang per good, All room storage, Flat to the station, Siemens south road, LDK15 tatami mats or more, Shaping land, Face-to-face kitchen, Barrier-free, Toilet 2 places, South balcony, The window in the bathroom, Urban neighborhood, Ventilation good, IH cooking heater, Three-story or more, All-electric, roof balcony, Flat terrain 省エネ給湯器、南向き、システムキッチン、浴室乾燥機、陽当り良好、全居室収納、駅まで平坦、南側道路面す、LDK15畳以上、整形地、対面式キッチン、バリアフリー、トイレ2ヶ所、南面バルコニー、浴室に窓、都市近郊、通風良好、IHクッキングヒーター、3階建以上、オール電化、ルーフバルコニー、平坦地 |
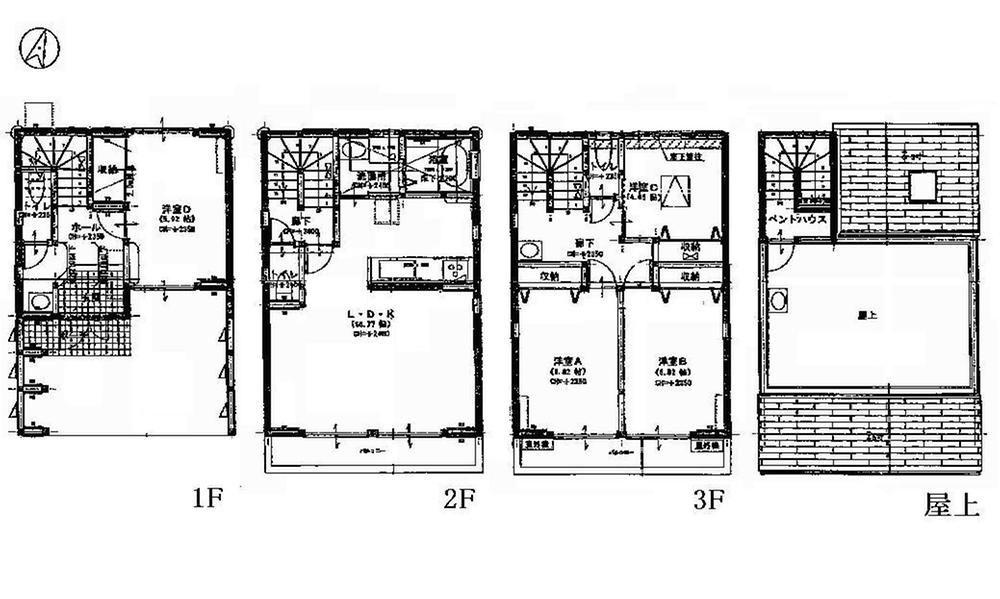
Features pickup 特徴ピックアップ | | Energy-saving water heaters / Facing south / System kitchen / Bathroom Dryer / Yang per good / All room storage / Flat to the station / Siemens south road / LDK15 tatami mats or more / Shaping land / Face-to-face kitchen / Barrier-free / Toilet 2 places / South balcony / Zenshitsuminami direction / The window in the bathroom / Urban neighborhood / Ventilation good / IH cooking heater / Three-story or more / All-electric / roof balcony / Flat terrain 省エネ給湯器 /南向き /システムキッチン /浴室乾燥機 /陽当り良好 /全居室収納 /駅まで平坦 /南側道路面す /LDK15畳以上 /整形地 /対面式キッチン /バリアフリー /トイレ2ヶ所 /南面バルコニー /全室南向き /浴室に窓 /都市近郊 /通風良好 /IHクッキングヒーター /3階建以上 /オール電化 /ルーフバルコニー /平坦地 | Event information イベント情報 | | (Please be sure to ask in advance) (事前に必ずお問い合わせください) | Price 価格 | | 33,800,000 yen 3380万円 | Floor plan 間取り | | 4LDK 4LDK | Units sold 販売戸数 | | 1 units 1戸 | Land area 土地面積 | | 70 sq m (21.17 tsubo) (Registration) 70m2(21.17坪)(登記) | Building area 建物面積 | | 122.1 sq m (36.93 square meters) 122.1m2(36.93坪) | Driveway burden-road 私道負担・道路 | | Nothing 無 | Completion date 完成時期(築年月) | | November 2013 2013年11月 | Address 住所 | | Hiroshima, Hiroshima Prefecture, Minami-ku, Kasumi 2-1 広島県広島市南区霞2-1 | Traffic 交通 | | Hiroshima "Shinonomehon-cho 3-chome" walk 5 minutes 広島「東雲本町3丁目」歩5分 | Person in charge 担当者より | | Rep Mukai 担当者向井 | Contact お問い合せ先 | | TEL: 0120-322882 [Toll free] Please contact the "saw SUUMO (Sumo)" TEL:0120-322882【通話料無料】「SUUMO(スーモ)を見た」と問い合わせください | Building coverage, floor area ratio 建ぺい率・容積率 | | 60% ・ 200% 60%・200% | Time residents 入居時期 | | Consultation 相談 | Land of the right form 土地の権利形態 | | Ownership 所有権 | Structure and method of construction 構造・工法 | | Wooden three-story 木造3階建 | Use district 用途地域 | | One dwelling 1種住居 | Overview and notices その他概要・特記事項 | | Contact: Mukai, Facilities: Public Water Supply, This sewage, All-electric, Building confirmation number: 00739, Parking: car space 担当者:向井、設備:公営水道、本下水、オール電化、建築確認番号:00739、駐車場:カースペース | Company profile 会社概要 | | <Mediation> Governor of Hiroshima Prefecture (7) No. 005935 (Ltd.) Fuji real estate sales Yubinbango730-0847 Hiroshima medium Hiroshima District Funairiminami 1-10-20 <仲介>広島県知事(7)第005935号(株)富士不動産販売〒730-0847 広島県広島市中区舟入南1-10-20 |
Floor plan間取り図  33,800,000 yen, 4LDK, Land area 70 sq m , Building area 122.1 sq m
3380万円、4LDK、土地面積70m2、建物面積122.1m2
Local photos, including front road前面道路含む現地写真  Local (September 2013) Shooting
現地(2013年9月)撮影
Local appearance photo現地外観写真  Local (September 2013) Shooting
現地(2013年9月)撮影
Local photos, including front road前面道路含む現地写真  Local (September 2013) Shooting
現地(2013年9月)撮影
Location
|