2013November
33,800,000 yen, 4LDK, 122.1 sq m
New Homes » Chugoku » Hiroshima » Minami-ku
 
| | Hiroshima, Hiroshima Prefecture, Minami-ku, 広島県広島市南区 |
| Bus "Shinonomehon-cho 3-chome" walk 5 minutes バス「東雲本町3丁目」歩5分 |
| Life convenience good of Kasumi district, Supermarket ・ There is a hospital within walking distance. There is a roof balcony of the spacious 20 sq m on the roof, Also it comes with a sink. 生活利便良好の霞地区、スーパー・病院徒歩圏内にあります。屋上には広々20m2のルーフバルコニーがあり、シンクも付いています。 |
Features pickup 特徴ピックアップ | | Corresponding to the flat-35S / Super close / Facing south / Yang per good / All room storage / A quiet residential area / LDK15 tatami mats or more / Toilet 2 places / South balcony / IH cooking heater / Three-story or more / All-electric / roof balcony / Flat terrain フラット35Sに対応 /スーパーが近い /南向き /陽当り良好 /全居室収納 /閑静な住宅地 /LDK15畳以上 /トイレ2ヶ所 /南面バルコニー /IHクッキングヒーター /3階建以上 /オール電化 /ルーフバルコニー /平坦地 | Price 価格 | | 33,800,000 yen 3380万円 | Floor plan 間取り | | 4LDK 4LDK | Units sold 販売戸数 | | 1 units 1戸 | Total units 総戸数 | | 1 units 1戸 | Land area 土地面積 | | 70 sq m 70m2 | Building area 建物面積 | | 122.1 sq m 122.1m2 | Driveway burden-road 私道負担・道路 | | Nothing 無 | Completion date 完成時期(築年月) | | November 2013 2013年11月 | Address 住所 | | Hiroshima, Hiroshima Prefecture, Minami-ku, Kasumi 2 広島県広島市南区霞2 | Traffic 交通 | | Bus "Shinonomehon-cho 3-chome" walk 5 minutes バス「東雲本町3丁目」歩5分 | Related links 関連リンク | | [Related Sites of this company] 【この会社の関連サイト】 | Contact お問い合せ先 | | TEL: 0800-603-3220 [Toll free] mobile phone ・ Also available from PHS Caller ID is not notified Please contact the "saw SUUMO (Sumo)" If it does not lead, If the real estate company TEL:0800-603-3220【通話料無料】携帯電話・PHSからもご利用いただけます 発信者番号は通知されません 「SUUMO(スーモ)を見た」と問い合わせください つながらない方、不動産会社の方は
| Building coverage, floor area ratio 建ぺい率・容積率 | | 60% ・ 200% 60%・200% | Time residents 入居時期 | | Consultation 相談 | Land of the right form 土地の権利形態 | | Ownership 所有権 | Structure and method of construction 構造・工法 | | Wooden three-story 木造3階建 | Use district 用途地域 | | One dwelling 1種住居 | Overview and notices その他概要・特記事項 | | Building confirmation number: Se 00739, Parking: car space 建築確認番号:セ00739、駐車場:カースペース | Company profile 会社概要 | | <Mediation> Governor of Hiroshima Prefecture (3) No. 008940 (Ltd.) Fleet Yubinbango732-0057 Hiroshima, Hiroshima Prefecture, Higashi-ku, Futabanosato 2-8-28 <仲介>広島県知事(3)第008940号(株)フリート〒732-0057 広島県広島市東区二葉の里2-8-28 |
 Local appearance photo
現地外観写真
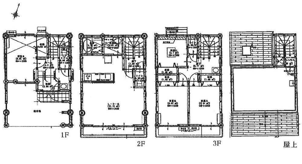
Floor plan間取り図  33,800,000 yen, 4LDK, Land area 70 sq m , Building area 122.1 sq m
3380万円、4LDK、土地面積70m2、建物面積122.1m2
Otherその他  roof balcony
ルーフバルコニー
 Living
リビング
 Bathroom
浴室
 Kitchen
キッチン
 Non-living room
リビング以外の居室
 Wash basin, toilet
洗面台・洗面所
Location
|