New Homes » Chugoku » Hiroshima » Minami-ku


Hiroshima, Hiroshima Prefecture, Minami-ku,
Bus "Senda Temple Koenmae Prefecture hospital entrance" walk 2 minutes
Ujina to the three-story well-appointed living environment! Wide free space and storeroom, etc., It will support a fun life
Features pickup
LDK18 tatami mats or more / It is close to the city / System kitchen / Bathroom Dryer / Siemens south road / Corner lot / Japanese-style room / Shaping land / Toilet 2 places / Bathroom 1 tsubo or more / 2 or more sides balcony / South balcony / The window in the bathroom / Urban neighborhood / IH cooking heater / All room 6 tatami mats or more / Three-story or more / Storeroom
Price
36,800,000 yen
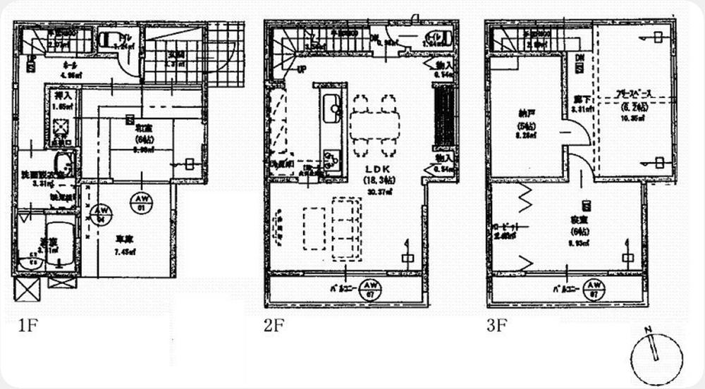
Floor plan
2LDK + 2S (storeroom)
Units sold
1 units
Total units
2 units
Land area
78.34 sq m (23.69 tsubo) (Registration)
Building area
113.44 sq m (34.31 square meters)
Driveway burden-road
Nothing, South 4.9m width, East 3.2m width
Completion date
June 2013
Address
Hiroshima, Hiroshima Prefecture, Minami-ku, Ujinamiyuki 1
Traffic
Bus "Senda Temple Koenmae Prefecture hospital entrance" walk 2 minutes
Related links
[Related Sites of this company]
Person in charge
Person in charge of real-estate and building Iwata Ohmaki Age: 40 Daigyokai Experience: 12 years Born in Hiroshima in Hiroshima and raised. Still is a 46-year-old cheerful. We support our customers so that the future is said to be "in charge was good Iwata". Let's look for a dream of my home with me.
Contact
TEL: 082-568-1150 Please inquire as "saw SUUMO (Sumo)"
Building coverage, floor area ratio
60% ・ 200%
Time residents
Immediate available
Land of the right form
Ownership
Structure and method of construction
Wooden three-story
Use district
One dwelling
Overview and notices
Contact: Iwata Ohmaki, Facilities: Public Water Supply, This sewage, All-electric, Parking: car space
Company profile
<Mediation> Governor of Hiroshima Prefecture (1) No. 010121 bamboo Corporation (Corporation) Yubinbango732-0817 Hiroshima, Hiroshima Prefecture, Minami-ku, Hijiyama cho 4-11


Floor plan

Floor plan. 36,800,000 yen, 2LDK + 2S (storeroom), Land area 78.34 sq m , Building area 113.44 sq m
36,800,000 yen, 2LDK + 2S (storeroom), Land area 78.34 sq m , Building area 113.44 sq m

Local appearance photo
Local appearance photo

Local appearance photo
Local appearance photo

Living
Living

Bathroom
Bathroom

Kitchen
Kitchen

Non-living room
Non-living room

Entrance
Entrance

Toilet
Toilet

Balcony
Balcony

Supermarket

Supermarket. 327m until ion Miyuki shop
327m until ion Miyuki shop

Living
Living

Kitchen
Kitchen

Non-living room
Non-living room

Supermarket. 487m until Du shop spark Miyuki
487m until Du shop spark Miyuki

Convenience store

Convenience store. Seven-Eleven 261m to Hiroshima Prefecture hospital west shop
Seven-Eleven 261m to Hiroshima Prefecture hospital west shop

Drug store

Drug store. Matsumotokiyoshi 473m to the drugstore Hiroshima Miyuki Mori shop
Matsumotokiyoshi 473m to the drugstore Hiroshima Miyuki Mori shop

Home center

Home center. 796m until EDION Ujina shop
796m until EDION Ujina shop

Primary school

Primary school. 990m to Hiroshima Municipal Ujina Elementary School
990m to Hiroshima Municipal Ujina Elementary School

Kindergarten ・ Nursery

kindergarten ・ Nursery. 220m to Fraser kindergarten
220m to Fraser kindergarten

Bank

Bank. Momiji Bank Midorimachi to branch 189m
Momiji Bank Midorimachi to branch 189m



Location