New Homes » Chugoku » Hiroshima » Minami-ku
 
| | Hiroshima, Hiroshima Prefecture, Minami-ku, 広島県広島市南区 |
| Bus "Shinonomehon-cho 3-chome" walk 5 minutes バス「東雲本町3丁目」歩5分 |
| It is rare south-facing flat of property in the haze district of Minami-ku! In all-electric housing, There is a roof balcony with a sink, View from there is also safe rainy day at the preeminent is by built-in garage! ! 南区の霞地区にある稀少な南向き平地の物件です!オール電化住宅で、シンク付のルーフバルコニーがあり、そこからの眺望は抜群ですよビルトインガレージで雨の日も安心です!! |
| ■ All-electric ■ IH cooking heater Cute ■ Top Runner Program ■ Facing south Yang per good ■ Built-in garage ■ Roof balcony sink ■ Good view ■オール電化■IHクッキングヒーター エコキュート■トップランナー基準■南向き 陽当り良好■ビルトインガレージ■ルーフバルコニーシンク付■眺望良好 |
Features pickup 特徴ピックアップ | | Corresponding to the flat-35S / Pre-ground survey / Energy-saving water heaters / It is close to the city / System kitchen / Yang per good / All room storage / Flat to the station / A quiet residential area / LDK15 tatami mats or more / Shaping land / Face-to-face kitchen / Toilet 2 places / Southeast direction / South balcony / IH cooking heater / Built garage / Three-story or more / All-electric / roof balcony / Flat terrain フラット35Sに対応 /地盤調査済 /省エネ給湯器 /市街地が近い /システムキッチン /陽当り良好 /全居室収納 /駅まで平坦 /閑静な住宅地 /LDK15畳以上 /整形地 /対面式キッチン /トイレ2ヶ所 /東南向き /南面バルコニー /IHクッキングヒーター /ビルトガレージ /3階建以上 /オール電化 /ルーフバルコニー /平坦地 | Event information イベント情報 | | Open House (Please be sure to ask in advance) schedule / Published in for Navi Hiroshima Minami-ku, Kasumi 2 chome No. 13 オープンハウス(事前に必ずお問い合わせください)日程/公開中ナビ用 広島市南区霞2丁目1番13号 | Price 価格 | | 33,800,000 yen 3380万円 | Floor plan 間取り | | 4LDK 4LDK | Units sold 販売戸数 | | 1 units 1戸 | Land area 土地面積 | | 70 sq m (registration) 70m2(登記) | Building area 建物面積 | | 122.1 sq m (registration) 122.1m2(登記) | Driveway burden-road 私道負担・道路 | | Nothing, Southeast 3m width 無、南東3m幅 | Completion date 完成時期(築年月) | | November 2013 2013年11月 | Address 住所 | | Hiroshima, Hiroshima Prefecture, Minami-ku, Kasumi 2-1-13 広島県広島市南区霞2-1-13 | Traffic 交通 | | Bus "Shinonomehon-cho 3-chome" walk 5 minutes バス「東雲本町3丁目」歩5分 | Person in charge 担当者より | | Rep Mizota 担当者溝田 | Contact お問い合せ先 | | TEL: 0800-603-1469 [Toll free] mobile phone ・ Also available from PHS Caller ID is not notified Please contact the "saw SUUMO (Sumo)" If it does not lead, If the real estate company TEL:0800-603-1469【通話料無料】携帯電話・PHSからもご利用いただけます 発信者番号は通知されません 「SUUMO(スーモ)を見た」と問い合わせください つながらない方、不動産会社の方は
| Building coverage, floor area ratio 建ぺい率・容積率 | | 60% ・ 200% 60%・200% | Time residents 入居時期 | | Consultation 相談 | Land of the right form 土地の権利形態 | | Ownership 所有権 | Structure and method of construction 構造・工法 | | Wooden three-story 木造3階建 | Use district 用途地域 | | One dwelling 1種住居 | Overview and notices その他概要・特記事項 | | Contact: Mizota, Facilities: Public Water Supply, All-electric, Building confirmation number: Se 00740, Parking: car space 担当者:溝田、設備:公営水道、オール電化、建築確認番号:セ00740、駐車場:カースペース | Company profile 会社概要 | | <Mediation> Minister of Land, Infrastructure and Transport (12) Article 001483 No. Toa Estate Co., Ltd. Real Estate Information Center Yubinbango730-0051 Hiroshima Prefecture medium Hiroshima-ku, Otemachi 3-1-1 <仲介>国土交通大臣(12)第001483号東亜地所(株)不動産情報センター〒730-0051 広島県広島市中区大手町3-1-1 |
Local appearance photo現地外観写真  Local (11 May 2013) Shooting
現地(2013年11月)撮影
 Local (11 May 2013) Shooting
現地(2013年11月)撮影
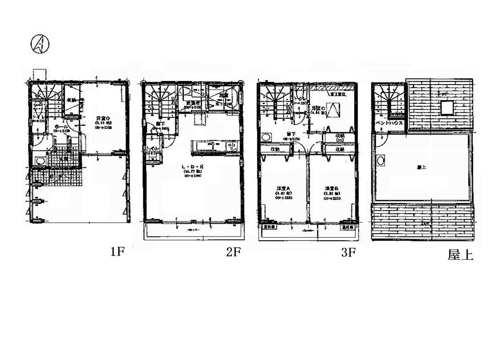
Floor plan間取り図  33,800,000 yen, 4LDK, Land area 70 sq m , Building area 122.1 sq m
3380万円、4LDK、土地面積70m2、建物面積122.1m2
Livingリビング  Indoor (12 May 2013) Shooting
室内(2013年12月)撮影
Bathroom浴室  Indoor (12 May 2013) Shooting
室内(2013年12月)撮影
Kitchenキッチン  Indoor (12 May 2013) Shooting
室内(2013年12月)撮影
Otherその他  View from the rooftop
屋上からの眺望
Entrance玄関  Local (12 May 2013) Shooting
現地(2013年12月)撮影
Toiletトイレ  Indoor (12 May 2013) Shooting
室内(2013年12月)撮影
Wash basin, toilet洗面台・洗面所  Indoor (12 May 2013) Shooting
室内(2013年12月)撮影
Non-living roomリビング以外の居室  Indoor (12 May 2013) Shooting
室内(2013年12月)撮影
 Indoor (12 May 2013) Shooting
室内(2013年12月)撮影
Receipt収納  Indoor (12 May 2013) Shooting
室内(2013年12月)撮影
Location
|