New Homes » Chugoku » Hiroshima » Minami-ku
 
| | Hiroshima, Hiroshima Prefecture, Minami-ku, 広島県広島市南区 |
| Hiroshima bus "Senda Temple park Prefecture hospital before the bus stop" walk 2 minutes 広島バス「千田廟公園県病院前バス停」歩2分 |
| ◆ ◇ ◆ Yumetaun Hiroshima store is within walking distance to the ion Ujina shop ◇ ◆ ◇ Living Environments also enhance transportation financial institutions ◆◇◆イオン宇品店にゆめタウン広島店が徒歩圏内に◇◆◇ 交通機関も金融機関も充実の住環境 |
| ☆ NanaMamoru Estate Recommended point of ☆ Open feeling of the corner lot ・ Ventilation per sun is a must see! All-electric EcoCute specification is a specification kind to your wallet to the environment! Also transport has been enhanced to up to Hiroshima city center! Tour is also can be accepted on the day! Mortgage free consultation even during the reception! ※ It is also possible guidance on weekdays and late time zone. Customers who visit hope not, please do not hesitate to contact me Contact [Toll free] 0120-238-754 Area of real estate you would like'm Shichigo ・ It summarizes the properties in your budget we will propose. Please feel free to contact us. ☆七護エステートのおすすめポイント☆角地の開放感・陽当たり通風は必見です!オール電化エコキュート仕様は環境にもお財布にもやさしい仕様です!広島市内中心部までまでも交通機関が充実してます!見学は当日受付も可能です!住宅ローン無料相談も受付中!※ 平日や遅い時間帯もご案内可能です。 ご見学希望のお客様はお気軽にご連絡下さいませ お問合せは 【通話料無料】0120-238-754 不動産はシチゴよご希望の地域・ご予算内の物件をまとめてご提案させていただきます。 お気軽にご連絡くださいませ。 |
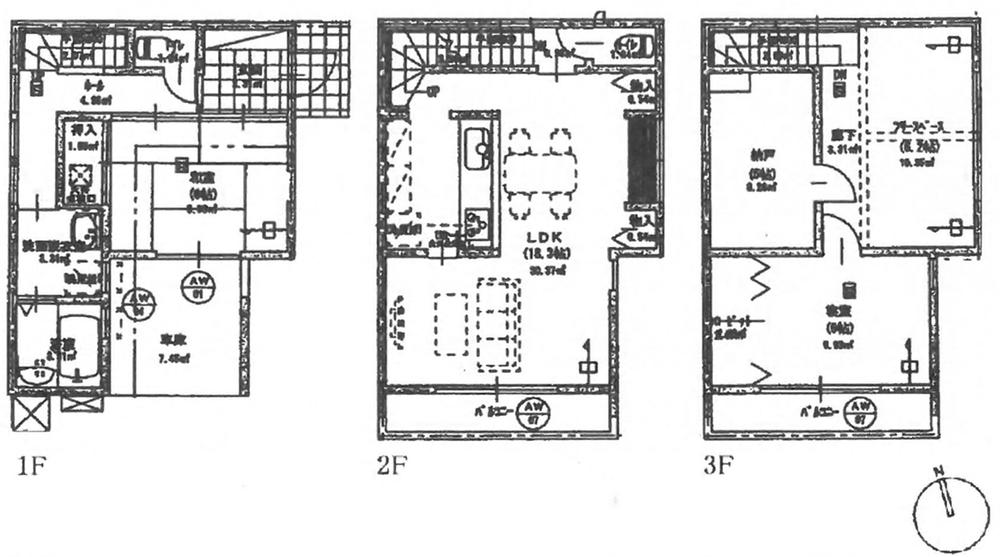
Features pickup 特徴ピックアップ | | LDK18 tatami mats or more / System kitchen / Bathroom Dryer / Yang per good / Flat to the station / A quiet residential area / Corner lot / Face-to-face kitchen / Urban neighborhood / IH cooking heater / Dish washing dryer / Water filter / Three-story or more / All-electric / Flat terrain LDK18畳以上 /システムキッチン /浴室乾燥機 /陽当り良好 /駅まで平坦 /閑静な住宅地 /角地 /対面式キッチン /都市近郊 /IHクッキングヒーター /食器洗乾燥機 /浄水器 /3階建以上 /オール電化 /平坦地 | Price 価格 | | 37,300,000 yen 3730万円 | Floor plan 間取り | | 2LDK + 2S (storeroom) 2LDK+2S(納戸) | Units sold 販売戸数 | | 1 units 1戸 | Total units 総戸数 | | 1 units 1戸 | Land area 土地面積 | | 78.34 sq m 78.34m2 | Building area 建物面積 | | 113.44 sq m 113.44m2 | Driveway burden-road 私道負担・道路 | | Nothing, South 4.9m width, East 3.2m width 無、南4.9m幅、東3.2m幅 | Completion date 完成時期(築年月) | | June 2013 2013年6月 | Address 住所 | | Hiroshima, Hiroshima Prefecture, Minami-ku, Ujinamiyuki 1 広島県広島市南区宇品御幸1 | Traffic 交通 | | Hiroshima bus "Senda Temple park Prefecture hospital before the bus stop" walk 2 minutes hiroden ujina line "Ujinanichome" walk 5 minutes Hiroden ujina line "vast affiliated schools before" walk 7 minutes 広島バス「千田廟公園県病院前バス停」歩2分広島電鉄宇品線「宇品二丁目」歩5分 広島電鉄宇品線「広大附属学校前」歩7分
| Related links 関連リンク | | [Related Sites of this company] 【この会社の関連サイト】 | Contact お問い合せ先 | | TEL: 0800-805-6299 [Toll free] mobile phone ・ Also available from PHS Caller ID is not notified Please contact the "saw SUUMO (Sumo)" If it does not lead, If the real estate company TEL:0800-805-6299【通話料無料】携帯電話・PHSからもご利用いただけます 発信者番号は通知されません 「SUUMO(スーモ)を見た」と問い合わせください つながらない方、不動産会社の方は
| Building coverage, floor area ratio 建ぺい率・容積率 | | 60% ・ 200% 60%・200% | Land of the right form 土地の権利形態 | | Ownership 所有権 | Structure and method of construction 構造・工法 | | Wooden three-story 木造3階建 | Use district 用途地域 | | One dwelling 1種住居 | Other limitations その他制限事項 | | Quasi-fire zones 準防火地域 | Overview and notices その他概要・特記事項 | | Facilities: Public Water Supply, This sewage, All-electric, Building confirmation number: 0133 設備:公営水道、本下水、オール電化、建築確認番号:0133 | Company profile 会社概要 | | <Mediation> Governor of Hiroshima Prefecture (2) No. 009265 (Ltd.) NanaMamoru Estate Yubinbango730-0844 Hiroshima medium Hiroshima District Funairisaiwaicho 9-18 <仲介>広島県知事(2)第009265号(株)七護エステート〒730-0844 広島県広島市中区舟入幸町9-18 |
Local appearance photo現地外観写真  Local (10 May 2013) Shooting
現地(2013年10月)撮影
Kitchenキッチン  Indoor (10 May 2013) Shooting
室内(2013年10月)撮影
Livingリビング  Indoor (10 May 2013) Shooting
室内(2013年10月)撮影
Floor plan間取り図  37,300,000 yen, 2LDK + 2S (storeroom), Land area 78.34 sq m , Building area 113.44 sq m current state priority
3730万円、2LDK+2S(納戸)、土地面積78.34m2、建物面積113.44m2 現況優先
Livingリビング  Indoor (10 May 2013) Shooting
室内(2013年10月)撮影
Bathroom浴室  Indoor (10 May 2013) Shooting
室内(2013年10月)撮影
Kitchenキッチン  Indoor (10 May 2013) Shooting
室内(2013年10月)撮影
Non-living roomリビング以外の居室  Indoor (10 May 2013) Shooting
室内(2013年10月)撮影
Entrance玄関  Indoor (10 May 2013) Shooting
室内(2013年10月)撮影
Wash basin, toilet洗面台・洗面所  Indoor (10 May 2013) Shooting
室内(2013年10月)撮影
Receipt収納  Indoor (10 May 2013) Shooting
室内(2013年10月)撮影
Toiletトイレ  Indoor (10 May 2013) Shooting
室内(2013年10月)撮影
Local photos, including front road前面道路含む現地写真  Local (10 May 2013) Shooting
現地(2013年10月)撮影
Balconyバルコニー  Indoor (10 May 2013) Shooting
室内(2013年10月)撮影
Shopping centreショッピングセンター  1200m until the ion Ujina shop
イオン宇品店まで1200m
Kitchenキッチン  Indoor (10 May 2013) Shooting
室内(2013年10月)撮影
Non-living roomリビング以外の居室  Indoor (10 May 2013) Shooting
室内(2013年10月)撮影
Receipt収納  Indoor (10 May 2013) Shooting
室内(2013年10月)撮影
Non-living roomリビング以外の居室  Indoor (10 May 2013) Shooting
室内(2013年10月)撮影
Receipt収納  Indoor (10 May 2013) Shooting
室内(2013年10月)撮影
 Indoor (10 May 2013) Shooting
室内(2013年10月)撮影
Location
|