New Homes » Chugoku » Hiroshima » Minami-ku
 
| | Hiroshima, Hiroshima Prefecture, Minami-ku, 広島県広島市南区 |
| Hiroden hijiyama line "Hijiyamashita" walk 26 minutes 広島電鉄皆実線「比治山下」歩26分 |
| Roof balcony with sink! All-electric ・ IH heater ・ Cute! ルーフバルコニーシンク付き!オール電化・IHヒーター・エコキュート! |
Features pickup 特徴ピックアップ | | Corresponding to the flat-35S / Facing south / System kitchen / Flat to the station / A quiet residential area / LDK15 tatami mats or more / Face-to-face kitchen / Toilet 2 places / South balcony / All living room flooring / IH cooking heater / Dish washing dryer / Three-story or more / roof balcony / Flat terrain フラット35Sに対応 /南向き /システムキッチン /駅まで平坦 /閑静な住宅地 /LDK15畳以上 /対面式キッチン /トイレ2ヶ所 /南面バルコニー /全居室フローリング /IHクッキングヒーター /食器洗乾燥機 /3階建以上 /ルーフバルコニー /平坦地 | Price 価格 | | 33,800,000 yen 3380万円 | Floor plan 間取り | | 4LDK 4LDK | Units sold 販売戸数 | | 1 units 1戸 | Total units 総戸数 | | 1 units 1戸 | Land area 土地面積 | | 70 sq m 70m2 | Building area 建物面積 | | 122.1 sq m 122.1m2 | Driveway burden-road 私道負担・道路 | | Nothing 無 | Completion date 完成時期(築年月) | | December 2013 2013年12月 | Address 住所 | | Hiroshima, Hiroshima Prefecture, Minami-ku, Kasumi 2 広島県広島市南区霞2 | Traffic 交通 | | Hiroden hijiyama line "Hijiyamashita" walk 26 minutes Hiroden hijiyama line "Hijiyamabashi" walk 22 minutes Hiroden hijiyama line "Danbara chome" walk 23 minutes 広島電鉄皆実線「比治山下」歩26分 広島電鉄皆実線「比治山橋」歩22分 広島電鉄皆実線「段原一丁目」歩23分
| Contact お問い合せ先 | | Pitattohausu Hiroshima Jogakuin before store (stock) Yamato Kosan TEL: 082-225-8670 "saw SUUMO (Sumo)" and please contact ピタットハウス広島女学院前店(株)大和興産TEL:082-225-8670「SUUMO(スーモ)を見た」と問い合わせください | Building coverage, floor area ratio 建ぺい率・容積率 | | 60% ・ 200% 60%・200% | Time residents 入居時期 | | Immediate available 即入居可 | Land of the right form 土地の権利形態 | | Ownership 所有権 | Structure and method of construction 構造・工法 | | Wooden three-story 木造3階建 | Use district 用途地域 | | One dwelling 1種住居 | Overview and notices その他概要・特記事項 | | Facilities: Public Water Supply, This sewage, Building confirmation number: 00740, Parking: Garage 設備:公営水道、本下水、建築確認番号:00740、駐車場:車庫 | Company profile 会社概要 | | <Mediation> Governor of Hiroshima Prefecture (8) No. 005724 No. Pitattohausu Hiroshima Jogakuin before store (stock) Yamato Kosan Yubinbango730-0017, Naka-ku, gun-cho, Hiroshima, Hiroshima Prefecture 1-20 third Uenoyabiru first floor B, Room <仲介>広島県知事(8)第005724号ピタットハウス広島女学院前店(株)大和興産〒730-0017 広島県広島市中区鉄砲町1-20 第3ウエノヤビル1階B号室 |
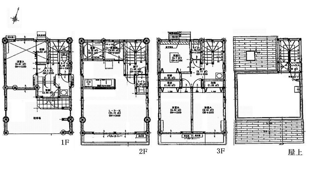
Floor plan間取り図  33,800,000 yen, 4LDK, Land area 70 sq m , Building area 122.1 sq m
3380万円、4LDK、土地面積70m2、建物面積122.1m2
Local appearance photo現地外観写真  Local (12 May 2013) Shooting
現地(2013年12月)撮影
Kitchenキッチン  Indoor (12 May 2013) Shooting
室内(2013年12月)撮影
Livingリビング  Indoor (12 May 2013) Shooting
室内(2013年12月)撮影
Bathroom浴室  Indoor (12 May 2013) Shooting
室内(2013年12月)撮影
Kitchenキッチン  Indoor (12 May 2013) Shooting
室内(2013年12月)撮影
Non-living roomリビング以外の居室  Indoor (12 May 2013) Shooting
室内(2013年12月)撮影
Receipt収納  Indoor (12 May 2013) Shooting
室内(2013年12月)撮影
Toiletトイレ  Indoor (12 May 2013) Shooting
室内(2013年12月)撮影
View photos from the dwelling unit住戸からの眺望写真  View from the site (December 2013) Shooting
現地からの眺望(2013年12月)撮影
 Other
その他
Kitchenキッチン  Indoor (12 May 2013) Shooting
室内(2013年12月)撮影
Non-living roomリビング以外の居室  Indoor (12 May 2013) Shooting
室内(2013年12月)撮影
Receipt収納  Indoor (12 May 2013) Shooting
室内(2013年12月)撮影
Kitchenキッチン  Indoor (12 May 2013) Shooting
室内(2013年12月)撮影
Non-living roomリビング以外の居室  Indoor (12 May 2013) Shooting
室内(2013年12月)撮影
Receipt収納  Indoor (12 May 2013) Shooting
室内(2013年12月)撮影
Location
|