New Homes » Chugoku » Hiroshima » Minami-ku


Hiroshima, Hiroshima Prefecture, Minami-ku,
Hiroden ujina line "Ujinasanchome" walk 3 minutes
Convenience good! Prefecture hospital ・ Jusco ・ Kojima Chikashi
Convenience good! Prefecture hospital ・ Jusco ・ Kojima Chikashi
Features pickup
Or more before road 6m / Flat terrain / Building plan example there
Price
22,800,000 yen
Building coverage, floor area ratio
60% ・ 200%
Sales compartment
1 compartment
Total number of compartments
1 compartment
Land area
86.92 sq m (26.29 square meters)
Driveway burden-road
Nothing, West 6.3m width
Land situation
Furuya There
Address
Hiroshima, Hiroshima Prefecture, Minami-ku, Ujinakanda 2
Traffic
Hiroden ujina line "Ujinasanchome" walk 3 minutes
Contact
TEL: 0800-809-8835 [Toll free] mobile phone ・ Also available from PHS
Caller ID is not notified
Please contact the "saw SUUMO (Sumo)"
If it does not lead, If the real estate company
Expenses
Water contributions separately Yosu: 130,000 yen / Bulk
Land of the right form
Ownership
Building condition
With
Time delivery
Consultation
Land category
Residential land
Use district
One dwelling
Other limitations
Building set plan price Land + building = 37,800,000 yen
Overview and notices
Facilities: Public Water Supply
Company profile
<Mediation> Governor of Hiroshima Prefecture (3) The 008,962 No. Royal Home Co., Ltd. Yubinbango732-0055 Hiroshima, Hiroshima Prefecture Higashi-ku, Higashikaniya cho 10-33


Compartment figure

Compartment figure. Land price 22,800,000 yen, Land area 86.92 sq m terrain
Land price 22,800,000 yen, Land area 86.92 sq m terrain

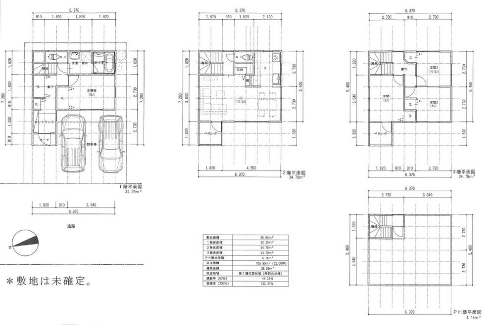
Building plan example (floor plan)

Building plan example (floor plan). Plan view
Plan view

Building plan example (Perth ・ appearance)

Building plan example (Perth ・ appearance). Elevations
Elevations



Location