|
|
Hiroshima, Hiroshima Prefecture, Nishi-ku,
広島県広島市西区
|
|
Hiroden "Itopia entrance" walk 3 minutes
広電「イトーピア入口」歩3分
|
|
Green day in the rich place good detached houses will be completed in December. You can commute in a walk to JR Koi Station.
緑豊かな場所に日当たり良好な戸建住宅が12月に完成します。 JR己斐駅へは徒歩での通勤通学が可能です。
|
|
■ About 700m to JR West Hiroshima Station ■ Flat 35s Available ■ All-electric ・ Cute
■JR西広島駅まで約700m■フラット35s利用可■オール電化・エコキュート
|
Features pickup 特徴ピックアップ | | Corresponding to the flat-35S / Pre-ground survey / Parking two Allowed / Facing south / System kitchen / Bathroom Dryer / All room storage / LDK15 tatami mats or more / Washbasin with shower / Face-to-face kitchen / Wide balcony / Barrier-free / Toilet 2 places / Bathroom 1 tsubo or more / 2-story / Double-glazing / Warm water washing toilet seat / The window in the bathroom / Leafy residential area / IH cooking heater / Dish washing dryer / Water filter / All-electric フラット35Sに対応 /地盤調査済 /駐車2台可 /南向き /システムキッチン /浴室乾燥機 /全居室収納 /LDK15畳以上 /シャワー付洗面台 /対面式キッチン /ワイドバルコニー /バリアフリー /トイレ2ヶ所 /浴室1坪以上 /2階建 /複層ガラス /温水洗浄便座 /浴室に窓 /緑豊かな住宅地 /IHクッキングヒーター /食器洗乾燥機 /浄水器 /オール電化 |
Price 価格 | | 26,800,000 yen 2680万円 |
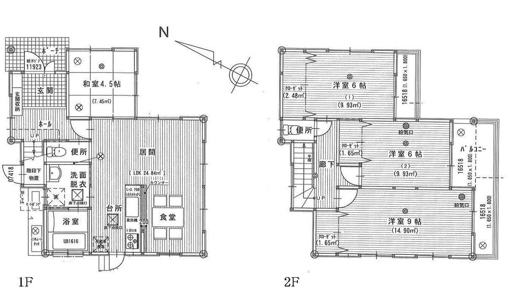
Floor plan 間取り | | 4LDK 4LDK |
Units sold 販売戸数 | | 1 units 1戸 |
Total units 総戸数 | | 1 units 1戸 |
Land area 土地面積 | | 267.87 sq m (registration) 267.87m2(登記) |
Building area 建物面積 | | 97.7 sq m (measured) 97.7m2(実測) |
Driveway burden-road 私道負担・道路 | | Nothing, Southeast 3.7m width 無、南東3.7m幅 |
Completion date 完成時期(築年月) | | December 2013 2013年12月 |
Address 住所 | | Hiroshima, Hiroshima Prefecture, Nishi-ku, Koinaka 2 広島県広島市西区己斐中2 |
Traffic 交通 | | Hiroden "Itopia entrance" walk 3 minutes 広電「イトーピア入口」歩3分 |
Related links 関連リンク | | [Related Sites of this company] 【この会社の関連サイト】 |
Person in charge 担当者より | | The person in charge Hiroaki Shinohara 担当者篠原 裕昭 |
Contact お問い合せ先 | | TEL: 0800-603-3620 [Toll free] mobile phone ・ Also available from PHS Caller ID is not notified Please contact the "saw SUUMO (Sumo)" If it does not lead, If the real estate company TEL:0800-603-3620【通話料無料】携帯電話・PHSからもご利用いただけます 発信者番号は通知されません 「SUUMO(スーモ)を見た」と問い合わせください つながらない方、不動産会社の方は
|
Building coverage, floor area ratio 建ぺい率・容積率 | | Fifty percent ・ Hundred percent 50%・100% |
Time residents 入居時期 | | January 2014 2014年1月 |
Land of the right form 土地の権利形態 | | Ownership 所有権 |
Structure and method of construction 構造・工法 | | Wooden 2-story (framing method) 木造2階建(軸組工法) |
Use district 用途地域 | | One low-rise 1種低層 |
Overview and notices その他概要・特記事項 | | Contact: Hiroaki Shinohara, Facilities: Public Water Supply, This sewage, All-electric, Building confirmation number: 00082, Parking: car space 担当者:篠原 裕昭、設備:公営水道、本下水、オール電化、建築確認番号:00082、駐車場:カースペース |
Company profile 会社概要 | | <Mediation> Governor of Hiroshima Prefecture (6) Article 006948 No. cosmid Real Estate Co., Ltd. Yubinbango733-0002 Hiroshima, Hiroshima Prefecture, Nishi-ku, Kusunoki-cho, 1-13-11 <仲介>広島県知事(6)第006948号木住不動産(株)〒733-0002 広島県広島市西区楠木町1-13-11 |