New Homes » Chugoku » Hiroshima » Nishi-ku
 
| | Hiroshima, Hiroshima Prefecture, Nishi-ku, 広島県広島市西区 |
| JR Sanyo Line "west of Hiroshima" walk 32 minutes JR山陽本線「西広島」歩32分 |
| Flat 35S Charm house 10 years Low-e glass pairs (except for some) Parking two Allowed Entrance door of the electrical locking smart control equipped Bathroom with heating dryer Intercom with color monitor フラット35S まもりすまい10年間 Low-eペアガラス(一部除く) 駐車2台可 電気施錠スマートコントロール搭載の玄関扉 浴室暖房乾燥機付 カラーモニター付インターフォン |
Features pickup 特徴ピックアップ | | Parking two Allowed / A quiet residential area / Face-to-face kitchen / Toilet 2 places / 2-story / Double-glazing / Underfloor Storage / TV monitor interphone / Walk-in closet 駐車2台可 /閑静な住宅地 /対面式キッチン /トイレ2ヶ所 /2階建 /複層ガラス /床下収納 /TVモニタ付インターホン /ウォークインクロゼット | Price 価格 | | 24,800,000 yen 2480万円 | Floor plan 間取り | | 4LDK 4LDK | Units sold 販売戸数 | | 1 units 1戸 | Land area 土地面積 | | 170 sq m (51.42 tsubo) (Registration) 170m2(51.42坪)(登記) | Building area 建物面積 | | 98.41 sq m (29.76 tsubo) (Registration) 98.41m2(29.76坪)(登記) | Driveway burden-road 私道負担・道路 | | Nothing, West 6m width 無、西6m幅 | Completion date 完成時期(築年月) | | January 2014 2014年1月 | Address 住所 | | Hiroshima, Hiroshima Prefecture, Nishi-ku, Koiue 5 広島県広島市西区己斐上5 | Traffic 交通 | | JR Sanyo Line "west of Hiroshima" walk 32 minutes JR山陽本線「西広島」歩32分
| Person in charge 担当者より | | The person in charge (stock) Juken 担当者(株)住研 | Contact お問い合せ先 | | TEL: 0800-603-3432 [Toll free] mobile phone ・ Also available from PHS Caller ID is not notified Please contact the "saw SUUMO (Sumo)" If it does not lead, If the real estate company TEL:0800-603-3432【通話料無料】携帯電話・PHSからもご利用いただけます 発信者番号は通知されません 「SUUMO(スーモ)を見た」と問い合わせください つながらない方、不動産会社の方は
| Building coverage, floor area ratio 建ぺい率・容積率 | | Fifty percent ・ Hundred percent 50%・100% | Time residents 入居時期 | | Consultation 相談 | Land of the right form 土地の権利形態 | | Ownership 所有権 | Structure and method of construction 構造・工法 | | Wooden 2-story 木造2階建 | Use district 用途地域 | | One low-rise 1種低層 | Other limitations その他制限事項 | | ※ Property information full of Nishi-ku ☆ [Search in the living Research, Inc.!] ※西区の物件情報満載☆【住研社で検索!】 | Overview and notices その他概要・特記事項 | | The person in charge :( stock) Juken, Facilities: Public Water Supply, This sewage, Individual LPG, Building confirmation number: Se 01656, Parking: car space 担当者:(株)住研、設備:公営水道、本下水、個別LPG、建築確認番号:セ01656、駐車場:カースペース | Company profile 会社概要 | | <Mediation> Governor of Hiroshima Prefecture (3) No. 008815 (Ltd.) Jukensha Yubinbango731-5136 Hiroshima, Hiroshima Prefecture Saeki-ku Rakurakuen 2-1-30 <仲介>広島県知事(3)第008815号(株)住研社〒731-5136 広島県広島市佐伯区楽々園2-1-30 |
Local appearance photo現地外観写真  November 28, shooting
11月28日撮影
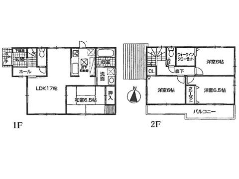
Floor plan間取り図  24,800,000 yen, 4LDK, Land area 170 sq m , Building area 98.41 sq m ※ Floor plan current state priority
2480万円、4LDK、土地面積170m2、建物面積98.41m2 ※間取図現況優先
Local appearance photo現地外観写真  November 28, shooting
11月28日撮影
 November 28, shooting
11月28日撮影
Local photos, including front road前面道路含む現地写真  October 29, shooting
10月29日撮影
Primary school小学校  Koiue until elementary school 631m
己斐上小学校まで631m
Junior high school中学校  Koiue 1832m until junior high school
己斐上中学校まで1832m
Location
|