New Homes » Chugoku » Hiroshima » Nishi-ku


Hiroshima, Hiroshima Prefecture, Nishi-ku,
JR Sanyo Line "west of Hiroshima" walk 32 minutes
Flat 35S Charm house 10 years Low-e glass pairs (except for some) Parking two Allowed Entrance door of the electrical locking smart control equipped Bathroom with heating dryer Intercom with color monitor
Features pickup
Parking two Allowed / A quiet residential area / Face-to-face kitchen / Toilet 2 places / 2-story / Double-glazing / Underfloor Storage / TV monitor interphone / Walk-in closet
Price
23.8 million yen
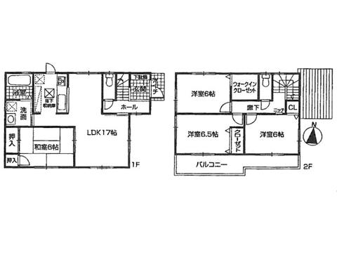
Floor plan
4LDK
Units sold
1 units
Land area
165 sq m (49.91 tsubo) (Registration)
Building area
98.41 sq m (29.76 tsubo) (Registration)
Driveway burden-road
Nothing, East 6m width
Completion date
January 2014
Address
Hiroshima, Hiroshima Prefecture, Nishi-ku, Koiue 5
Traffic
JR Sanyo Line "west of Hiroshima" walk 32 minutes
Person in charge
The person in charge (stock) Juken
Contact
TEL: 0800-603-3432 [Toll free] mobile phone ・ Also available from PHS
Caller ID is not notified
Please contact the "saw SUUMO (Sumo)"
If it does not lead, If the real estate company
Building coverage, floor area ratio
Fifty percent ・ Hundred percent
Time residents
Consultation
Land of the right form
Ownership
Structure and method of construction
Wooden 2-story
Use district
One low-rise
Other limitations
※ Property information full of Nishi-ku ☆ [Search in the living Research, Inc.!]
Overview and notices
The person in charge :( stock) Juken, Facilities: Public Water Supply, This sewage, Individual LPG, Building confirmation number: Se 01660, Parking: car space
Company profile
<Mediation> Governor of Hiroshima Prefecture (3) No. 008815 (Ltd.) Jukensha Yubinbango731-5136 Hiroshima, Hiroshima Prefecture Saeki-ku Rakurakuen 2-1-30


Local appearance photo

Local appearance photo. November 28, shooting
November 28, shooting

Floor plan

Floor plan. 23.8 million yen, 4LDK, Land area 165 sq m , Building area 98.41 sq m   ※ Floor plan current state priority
23.8 million yen, 4LDK, Land area 165 sq m , Building area 98.41 sq m ※ Floor plan current state priority

Local appearance photo

Local appearance photo. November 28, shooting
November 28, shooting

Local photos, including front road

Local photos, including front road. October 29, shooting
October 29, shooting

Primary school

Primary school. Koiue until elementary school 631m
Koiue until elementary school 631m

Junior high school

Junior high school. Koiue 1832m until junior high school
Koiue 1832m until junior high school



Location