New Homes » Chugoku » Hiroshima » Saeki-ku
 
| | Hiroshima, Hiroshima Prefecture Saeki-ku, 広島県広島市佐伯区 |
| Hiroden Miyajima Line "Rakurakuen" walk 8 minutes 広島電鉄宮島線「楽々園」歩8分 |
| Flat 35S Solar power Life convenient Low-e glass pairs (except for some) Charm dwelling 10-year warranty Entrance door of the electrical locking smart control keys mounted Bathroom with heating dryer Karamoni フラット35S 太陽光発電 生活至便 Low-eペアガラス(一部除く) まもりすまい10年間保証 電気施錠スマートコントロールキー搭載の玄関扉 浴室暖房乾燥機付 カラーモニ |
Features pickup 特徴ピックアップ | | Solar power system / Parking two Allowed / Face-to-face kitchen / Toilet 2 places / 2-story / Double-glazing / Otobasu / Underfloor Storage / TV monitor interphone / City gas 太陽光発電システム /駐車2台可 /対面式キッチン /トイレ2ヶ所 /2階建 /複層ガラス /オートバス /床下収納 /TVモニタ付インターホン /都市ガス | Price 価格 | | 33,800,000 yen 3380万円 | Floor plan 間取り | | 4LDK 4LDK | Units sold 販売戸数 | | 1 units 1戸 | Total units 総戸数 | | 2 units 2戸 | Land area 土地面積 | | 151.01 sq m (45.68 tsubo) (Registration) 151.01m2(45.68坪)(登記) | Building area 建物面積 | | 97.6 sq m (29.52 tsubo) (Registration) 97.6m2(29.52坪)(登記) | Driveway burden-road 私道負担・道路 | | Nothing, West 4m width 無、西4m幅 | Completion date 完成時期(築年月) | | February 2014 2014年2月 | Address 住所 | | Hiroshima, Hiroshima Prefecture Saeki-ku, Itsukaichi center 3 広島県広島市佐伯区五日市中央3 | Traffic 交通 | | Hiroden Miyajima Line "Rakurakuen" walk 8 minutes 広島電鉄宮島線「楽々園」歩8分
| Person in charge 担当者より | | The person in charge (stock) Juken 担当者(株)住研 | Contact お問い合せ先 | | TEL: 0800-603-3432 [Toll free] mobile phone ・ Also available from PHS Caller ID is not notified Please contact the "saw SUUMO (Sumo)" If it does not lead, If the real estate company TEL:0800-603-3432【通話料無料】携帯電話・PHSからもご利用いただけます 発信者番号は通知されません 「SUUMO(スーモ)を見た」と問い合わせください つながらない方、不動産会社の方は
| Building coverage, floor area ratio 建ぺい率・容積率 | | 60% ・ 200% 60%・200% | Time residents 入居時期 | | Consultation 相談 | Land of the right form 土地の権利形態 | | Ownership 所有権 | Structure and method of construction 構造・工法 | | Wooden 2-story 木造2階建 | Use district 用途地域 | | One dwelling 1種住居 | Overview and notices その他概要・特記事項 | | The person in charge :( stock) Juken, Facilities: Public Water Supply, This sewage, City gas, Building confirmation number: Se 02171, Parking: car space 担当者:(株)住研、設備:公営水道、本下水、都市ガス、建築確認番号:セ02171、駐車場:カースペース | Company profile 会社概要 | | <Mediation> Governor of Hiroshima Prefecture (3) No. 008815 (Ltd.) Jukensha Yubinbango731-5136 Hiroshima, Hiroshima Prefecture Saeki-ku Rakurakuen 2-1-30 <仲介>広島県知事(3)第008815号(株)住研社〒731-5136 広島県広島市佐伯区楽々園2-1-30 |
Local appearance photo現地外観写真  December 22 shooting
12月22日撮影
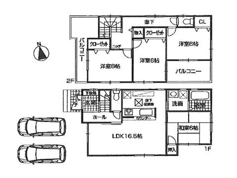
Floor plan間取り図  33,800,000 yen, 4LDK, Land area 151.01 sq m , Building area 97.6 sq m
3380万円、4LDK、土地面積151.01m2、建物面積97.6m2
Local appearance photo現地外観写真  December 22 shooting
12月22日撮影
Local photos, including front road前面道路含む現地写真  December 22 shooting
12月22日撮影
Primary school小学校  Itsukaichi the center to the elementary school 352m
五日市中央小学校まで352m
Otherその他  December 17 shooting
12月17日撮影
Local photos, including front road前面道路含む現地写真  December 17 shooting
12月17日撮影
Junior high school中学校  Itsukaichi 1250m until junior high school
五日市中学校まで1250m
Other Environmental Photoその他環境写真  Hyakumangoku Garden Until Suminohama shop 1091m
百万石ガーデン 隅の浜店まで1091m
 Billy ・ The ・ Kid Until Itsukaichi shop 871m
ビリー・ザ・キッド 五日市店まで871m
Location
|