New Homes » Kansai » Hyogo Prefecture » Akashi
 
| | Akashi, Hyogo Prefecture 兵庫県明石市 |
| JR Sanyo Line "Uozumi" walk 14 minutes JR山陽本線「魚住」歩14分 |
| January 4 (Saturday) ・ 5 (Sunday) open house held 13 pm ~ 16 pm, Please come directly to the local. For further information, please contact Co., Ltd. Date new real estate sales → TEL078-939-2636 1月4日(土)・5日(日)オープンハウス開催13時 ~ 16時、直接現地へお越し下さい。お問い合わせは株式会社日新不動産販売まで→TEL078-939-2636 |
| ■ Parking two possible new construction detached ■ Sunny in the south-facing balcony ■ Inquiry ・ To customers who I am allowed to local guidance [Library card 1000 yen] Present! ! ■ If inquiry until Ltd. Date new real estate sales → TEL078-939-2636 ======================= Kobe Chamber of Commerce and Industry member of the day new real estate sales [Mortgage also worry] Including the director of the original bank employee (about 30 years service), Public Interest Incorporated group corporation In three mortgage advisor of the Japan Association of Realtors certified one set one set of customers at internal meetings anywhere in the [Housing loan] But we have established a system to discuss whether the No. 1 best of. ======================= ■駐車2台可能な新築戸建■南向きバルコニーで日当たり良好■問い合わせ・現地ご案内させていただいたお客様に【図書カード1000円分】プレゼント!!■お問い合わせは株式会社日新不動産販売まで→TEL078-939-2636=======================神戸商工会議所会員の日新不動産販売なら【住宅ローンも心配無用】元銀行員(約30年勤務)の所長を含め、公益社団法人 全日本不動産協会認定の住宅ローンアドバイザー3名で1組1組のお客様を社内会議にてどこの【住宅ローン】が1番ベストなのか話し合うシステムを設けています。======================= |
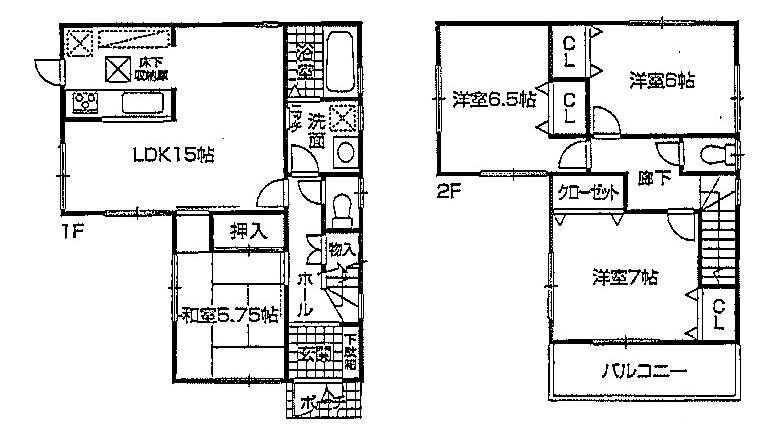
Features pickup 特徴ピックアップ | | Measures to conserve energy / Corresponding to the flat-35S / Parking two Allowed / Super close / System kitchen / Bathroom Dryer / Yang per good / All room storage / A quiet residential area / LDK15 tatami mats or more / Around traffic fewer / Japanese-style room / Idyll / Washbasin with shower / Face-to-face kitchen / Wide balcony / Barrier-free / Toilet 2 places / Bathroom 1 tsubo or more / 2-story / Double-glazing / Otobasu / Warm water washing toilet seat / Underfloor Storage / The window in the bathroom / TV monitor interphone / Leafy residential area / Ventilation good / Water filter / City gas / All rooms are two-sided lighting 省エネルギー対策 /フラット35Sに対応 /駐車2台可 /スーパーが近い /システムキッチン /浴室乾燥機 /陽当り良好 /全居室収納 /閑静な住宅地 /LDK15畳以上 /周辺交通量少なめ /和室 /田園風景 /シャワー付洗面台 /対面式キッチン /ワイドバルコニー /バリアフリー /トイレ2ヶ所 /浴室1坪以上 /2階建 /複層ガラス /オートバス /温水洗浄便座 /床下収納 /浴室に窓 /TVモニタ付インターホン /緑豊かな住宅地 /通風良好 /浄水器 /都市ガス /全室2面採光 | Event information イベント情報 | | Open House (Please visitors to direct local) schedule / January 4 (Saturday) ・ January 5 (Sunday) time / 13:00 ~ 16:00 Open House held on January 4 (Saturday) ・ It will be held on January 5, the (Sun) Open House! ! <From 13:00 to 16:00> Customers do not fit your time, Please in advance to saying! ! ! We look forward to seeing you in your family. -------------------------------------------------------------- オープンハウス(直接現地へご来場ください)日程/1月4日(土曜日)・1月5日(日曜日)時間/13:00 ~ 16:00オープンハウス開催 1月4日(土)・1月5日(日)オープンハウスを開催いたします!! <13時から16時まで> お時間の合わないお客様は、事前におっしゃってください!!! ご家族でのご来場を心よりお待ち致しております。-------------------------------------------------------------- | Price 価格 | | 22,800,000 yen 2280万円 | Floor plan 間取り | | 4LDK 4LDK | Units sold 販売戸数 | | 1 units 1戸 | Land area 土地面積 | | 113.86 sq m (34.44 tsubo) (Registration) 113.86m2(34.44坪)(登記) | Building area 建物面積 | | 95.58 sq m (28.91 tsubo) (Registration) 95.58m2(28.91坪)(登記) | Driveway burden-road 私道負担・道路 | | Nothing 無 | Completion date 完成時期(築年月) | | December 2013 2013年12月 | Address 住所 | | Akashi, Hyogo Prefecture Uozumichoshimizu 兵庫県明石市魚住町清水 | Traffic 交通 | | JR Sanyo Line "Uozumi" walk 14 minutes JR山陽本線「魚住」歩14分
| Related links 関連リンク | | [Related Sites of this company] 【この会社の関連サイト】 | Person in charge 担当者より | | [Regarding this property.] Please leave it to the new real estate sales the day of the Kobe Chamber of Commerce and Industry member. 【この物件について】神戸商工会議所会員の日新不動産販売にお任せください。 | Contact お問い合せ先 | | Ltd. Nissin real estate sales TEL: 0800-602-6796 [Toll free] mobile phone ・ Also available from PHS Caller ID is not notified Please contact the "saw SUUMO (Sumo)" If it does not lead, If the real estate company (株)日新不動産販売TEL:0800-602-6796【通話料無料】携帯電話・PHSからもご利用いただけます 発信者番号は通知されません 「SUUMO(スーモ)を見た」と問い合わせください つながらない方、不動産会社の方は
| Building coverage, floor area ratio 建ぺい率・容積率 | | 60% ・ 200% 60%・200% | Time residents 入居時期 | | Consultation 相談 | Land of the right form 土地の権利形態 | | Ownership 所有権 | Structure and method of construction 構造・工法 | | Wooden 2-story 木造2階建 | Use district 用途地域 | | One middle and high 1種中高 | Overview and notices その他概要・特記事項 | | Facilities: Public Water Supply, This sewage, City gas, Building confirmation number: Building Products Akashi No. 25022, Parking: car space 設備:公営水道、本下水、都市ガス、建築確認番号:住建明石第25022号、駐車場:カースペース | Company profile 会社概要 | | <Mediation> Governor of Hyogo Prefecture (1) No. 401409 (Ltd.) Nissin real estate sales Yubinbango673-0042 Akashi, Hyogo Prefecture Higashifujie 1-16-1 <仲介>兵庫県知事(1)第401409号(株)日新不動産販売〒673-0042 兵庫県明石市東藤江1-16-1 |
Local appearance photo現地外観写真  Local (12 May 2013) Shooting
現地(2013年12月)撮影
Floor plan間取り図  22,800,000 yen, 4LDK, Land area 113.86 sq m , Building area 95.58 sq m
2280万円、4LDK、土地面積113.86m2、建物面積95.58m2
Local appearance photo現地外観写真  Local (12 May 2013) Shooting
現地(2013年12月)撮影
 Local (12 May 2013) Shooting
現地(2013年12月)撮影
 Living
リビング
 Bathroom
浴室
 Kitchen
キッチン
 Non-living room
リビング以外の居室
 Entrance
玄関
 Receipt
収納
 Toilet
トイレ
Station駅  JR 1120m to Uozumi Station
JR 魚住駅まで1120m
 Kitchen
キッチン
 Non-living room
リビング以外の居室
 Toilet
トイレ
 Non-living room
リビング以外の居室
 Non-living room
リビング以外の居室
 Non-living room
リビング以外の居室
Presentプレゼント ![Present. Inquiry from Sumo ・ To customers who I am allowed to local guidance, [1000 yen worth of books card] Get the! ! When the guide, Please tell the "saw the Sumo" to the person in charge.](/images/hyogo/akashi/a507ba0021.jpg) Inquiry from Sumo ・ To customers who I am allowed to local guidance, [1000 yen worth of books card] Get the! ! When the guide, Please tell the "saw the Sumo" to the person in charge.
スーモから問い合わせ・現地ご案内させていただいたお客様に、【1000円分の図書カード】をプレゼント!!案内の際、担当者に『スーモを見た』とお伝え下さい。
Location
|