New Homes » Kansai » Hyogo Prefecture » Amagasaki
 
| | Amagasaki, Hyogo Prefecture 兵庫県尼崎市 |
| Hankyu Kobe Line "Mukonoso" walk 15 minutes 阪急神戸線「武庫之荘」歩15分 |
| ■ You can see o'clock tour night 8. ■ An inquiry Amagasaki property is, Amagasaki local Century 21 Mukonoso to head office Sumo dedicated dial 0800-603-2204 ■見学 夜8時までご覧頂けます。■お問合せ 尼崎の物件は、尼崎が地元のセンチュリー21武庫之荘本店へ スーモ専用ダイヤル 0800-603-2204 |
| Solar power system, Parking two Allowed, Super close, System kitchen, Bathroom Dryer, Yang per good, Immediate Available, 2 along the line more accessible, Flat to the station, A quiet residential area, LDK15 tatami mats or more, Or more before road 6mese-style room, Shaping land, Washbasin with shower, Face-to-face kitchen, Toilet 2 places, Bathroom 1 tsubo or more, 2-story, South balcony, Double-glazing, Warm water washing toilet seat, Underfloor Storage, The window in the bathroom, Leafy residential area, Water filter, City gas, A large gap between the neighboring house 太陽光発電システム、駐車2台可、スーパーが近い、システムキッチン、浴室乾燥機、陽当り良好、即入居可、2沿線以上利用可、駅まで平坦、閑静な住宅地、LDK15畳以上、前道6m以上、和室、整形地、シャワー付洗面台、対面式キッチン、トイレ2ヶ所、浴室1坪以上、2階建、南面バルコニー、複層ガラス、温水洗浄便座、床下収納、浴室に窓、緑豊かな住宅地、浄水器、都市ガス、隣家との間隔が大きい |
Property name 物件名 | | Mukonoso area solar power house Imposing completed 武庫之荘エリア太陽光発電住宅 堂々完成 | Price 価格 | | 33,800,000 yen ~ 35,800,000 yen 3380万円 ~ 3580万円 | Floor plan 間取り | | 4LDK 4LDK | Units sold 販売戸数 | | 2 units 2戸 | Total units 総戸数 | | 2 units 2戸 | Land area 土地面積 | | 118.22 sq m ~ 141.95 sq m (registration) 118.22m2 ~ 141.95m2(登記) | Building area 建物面積 | | 95.57 sq m (registration) 95.57m2(登記) | Completion date 完成時期(築年月) | | October 2013 2013年10月 | Address 住所 | | Amagasaki, Hyogo Prefecture Muko-cho 4 兵庫県尼崎市武庫町4 | Traffic 交通 | | Hankyu Kobe Line "Mukonoso" walk 15 minutes JR Tokaido Line "Koshienguchi" walk 26 minutes Hankyu Imazu Line "door Yakujin" walk 42 minutes 阪急神戸線「武庫之荘」歩15分 JR東海道本線「甲子園口」歩26分 阪急今津線「門戸厄神」歩42分
| Related links 関連リンク | | [Related Sites of this company] 【この会社の関連サイト】 | Person in charge 担当者より | | Responsible Shataku Kenshiba Masayuki Age: 40 Daigyokai Experience: 19 years taking advantage of the wealth of sales experience in the Hanshin area between, We work hard in the day-to-day best be able to deliver the happiness to our customers. There is a self-confidence in particular geography and market knowledge. What it is also please feel free to contact us when it was that related to real estate. 担当者宅建芝 政行年齢:40代業界経験:19年阪神間エリアでの豊富な営業経験を活かして、お客様に幸せをお届けできるよう日々全力で頑張っております。特に地理や相場の知識には自信があります。不動産に関する事でしたらどんな事でもお気軽にご相談下さい。 | Contact お問い合せ先 | | TEL: 0800-603-2204 [Toll free] mobile phone ・ Also available from PHS Caller ID is not notified Please contact the "saw SUUMO (Sumo)" If it does not lead, If the real estate company TEL:0800-603-2204【通話料無料】携帯電話・PHSからもご利用いただけます 発信者番号は通知されません 「SUUMO(スーモ)を見た」と問い合わせください つながらない方、不動産会社の方は
| Event information イベント情報 | | Local tours (Please be sure to ask in advance) schedule / If you can tell in the public ● good the circumstances of the customer time and date, local ・ We will carefully guide the property in the store. ・ Room (equipment ・ Specifications) brochure, Exterior (Entrance ・ .. Explanation easy to understand in the outer wall) Catalog. ・ Also we will commentary according to your choice, such as a peripheral environment. ・ Necessary expense ・ Purchase schedule ・ Mortgage payment simulation, etc. Please leave. ◆ It also does guidance of the model house. 現地見学会(事前に必ずお問い合わせください)日程/公開中●お客様の都合の良い日時をお伝え頂ければ、現地・店内で丁寧に物件のご案内をいたします。 ・室内(設備・仕様)パンフレット、外装(エントランス・外壁)カタログで解りやすくご説明。 ・周辺環境などもご希望に応じてご解説いたします。 ・必要経費・購入スケジュール・住宅ローン支払いシミュレーション等もお任せください。◆モデルハウスのご案内もいたします。 | Building coverage, floor area ratio 建ぺい率・容積率 | | Building coverage: 60%, Volume ratio: 200% 建ぺい率:60%、容積率:200% | Time residents 入居時期 | | Immediate available 即入居可 | Land of the right form 土地の権利形態 | | Ownership 所有権 | Structure and method of construction 構造・工法 | | Wooden 2-story (framing method) 木造2階建(軸組工法) | Use district 用途地域 | | One middle and high 1種中高 | Overview and notices その他概要・特記事項 | | Person in charge: Grass Masayuki, Building confirmation number: No. Trust 13-1592 担当者:芝 政行、建築確認番号:第トラスト13-1592号 | Company profile 会社概要 | | <Mediation> Governor of Hyogo Prefecture (5) Article 202981 No. Century 21 (stock) Across Corporation Yubinbango661-0035 Amagasaki, Hyogo Prefecture Mukonoso 2-3-1 1F <仲介>兵庫県知事(5)第202981号センチュリー21(株)アクロスコーポレイション〒661-0035 兵庫県尼崎市武庫之荘2-3-1 1F |
Otherその他  Gather information in front of the station!
駅前に情報は集まる!
Since the No. 1 destination appearance property east side is in the passage, Day becomes a real corner lot ventilation is good. 1号地外観物件東側が通路になっているので、実質角地になり日当たり通風良好です。  No. 1 destination appearance
1号地外観
The entire compartment Figure全体区画図  ■ Limited two-compartment Complete listing per, Anytime you can preview.
■限定2区画 完成物件につき、いつでも内覧可能です。
Local photos, including front road前面道路含む現地写真  Front road, It is widely car as little environment and 6m or more! Around is a natural rich place where there is green.
前面道路は、6m以上と広く車通りも少ない環境です!周辺は緑がある自然豊かな場所です。
Other localその他現地  No. 1 destination entrance before Front of the entrance, which was planted green, Tile is also a design that was laid to clean.
1号地玄関前 緑を植えた玄関前は、タイルもキレイに敷いたデザインです。
Parking lot駐車場  No. 1 place parking space Parking is available two parallel!
1号地駐車スペース 駐車は並列2台可能です!
Non-living roomリビング以外の居室  No. 1 place Japanese-style room Bright Japanese-style room in the two-sided lighting. There is also a storage capacity there is a closet.
1号地和室 2面採光で明るい和室です。押入れがあり収納力もあります。
Kitchenキッチン  No. 1 place Kitchen You select a design without getting tired in a white simple. There is also a storage capacity, Ease of use has been emphasized.
1号地キッチン 白色のシンプルで飽きの無いデザインをセレクトしました。収納力もあり、使いやすさも重視しました。
Local appearance photo現地外観写真  No. 2 place appearance
2号地外観
Garden庭  2 Gochiniwa It has become a large garden house! By all means please see in the field.
2号地庭 広い庭付き住宅になっています! ぜひ現地でご覧ください。
Kitchenキッチン  No. 2 place kitchen
2号地キッチン
 No. 2 place kitchen
2号地キッチン
Bathroom浴室  No. 2 place bathroom
2号地浴室
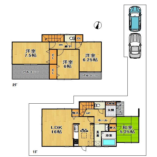
Floor plan間取り図  Gather information in front of the station!
駅前に情報は集まる!
 Gather information in front of the station!
駅前に情報は集まる!
Presentプレゼント  Entitled to customers who visit us have gotten a look at Sumo, We will present entitled to a QUO card 500 yen! ! For more information please do not hesitate to contact us to buy and sell in charge. ※ But only to customers who had you all fill in the questionnaire.
スーモをご覧頂いてご来店頂いたお客様にもれなく、QUOカード500円分をもれなくプレゼントいたします!!詳細は売買担当までお気軽にお問い合わせくださいませ。※アンケートを全てご記入して頂いたお客様に限ります。
You will receive this brochureこんなパンフレットが届きます  You will receive a brochure of the property! Packed even more information of properties that do not know just Sumonetto tries to right now Request! Also will deliver documentation of local information and other similar properties around!
物件のパンフレットが届きます!今すぐ資料請求しようスーモネットだけでは分からない物件の詳細情報も満載!また周辺の地域情報やその他類似物件の資料もお届けします!
Location
|