|
|
Amagasaki, Hyogo Prefecture
兵庫県尼崎市
|
|
JR Fukuchiyama Line "Inadera" walk 5 minutes
JR福知山線「猪名寺」歩5分
|
|
■ Open house! Year 12 / 28 ・ 29 to the! The beginning of the year 1 / 4 ・ From 5 ■ Century 21 Kinki housing distribution ・ Please leave it to our regional manager! ■ Contact free dial 0800-600-0668
■オープンハウス!年内12/28・29まで!年明け1/4・5から■センチュリー21近畿住宅流通・地域担当の私達にお任せください!■お問合わせは無料ダイヤル0800-600-0668
|
|
◆ Please consult anything to the staff of because there many properties also not listed community to Sumo! ◆ Our sales staff, please be assured that is the qualified person of the mortgage advisors and residential construction coordinator! «Property features» ◇ JR Fukuchiyama Line "Inadera" station walk 5 minutes! ◇ living floor heating ・ Dish washing and drying machine! ◇ bathroom mist heating dryer, TV!
◆スーモに掲載されていない物件も多数ございますので地域密着の担当スタッフに何でもご相談ください!◆弊社の営業スタッフは住宅ローンアドバイザー及び住宅建築コーディネーターの有資格者ですのでご安心ください!≪物件の特徴≫◇JR福知山線「猪名寺」駅徒歩5分!◇リビング床暖房・食器洗浄乾燥機!◇浴室ミスト暖房乾燥機、テレビ付!
|
Features pickup 特徴ピックアップ | | 2 along the line more accessible / Fiscal year Available / It is close to the city / System kitchen / Bathroom Dryer / Yang per good / All room storage / Flat to the station / Japanese-style room / Mist sauna / Washbasin with shower / Face-to-face kitchen / Barrier-free / Toilet 2 places / Bathroom 1 tsubo or more / 2 or more sides balcony / Double-glazing / Warm water washing toilet seat / TV with bathroom / The window in the bathroom / Ventilation good / Dish washing dryer / Water filter / Three-story or more / City gas / All rooms are two-sided lighting / Floor heating 2沿線以上利用可 /年度内入居可 /市街地が近い /システムキッチン /浴室乾燥機 /陽当り良好 /全居室収納 /駅まで平坦 /和室 /ミストサウナ /シャワー付洗面台 /対面式キッチン /バリアフリー /トイレ2ヶ所 /浴室1坪以上 /2面以上バルコニー /複層ガラス /温水洗浄便座 /TV付浴室 /浴室に窓 /通風良好 /食器洗乾燥機 /浄水器 /3階建以上 /都市ガス /全室2面採光 /床暖房 |
Event information イベント情報 | | Local guide Board (Please be sure to ask in advance) schedule / During the public time / 11:00 ~ 21:00 現地案内会(事前に必ずお問い合わせください)日程/公開中時間/11:00 ~ 21:00 |
Price 価格 | | 26,800,000 yen 2680万円 |
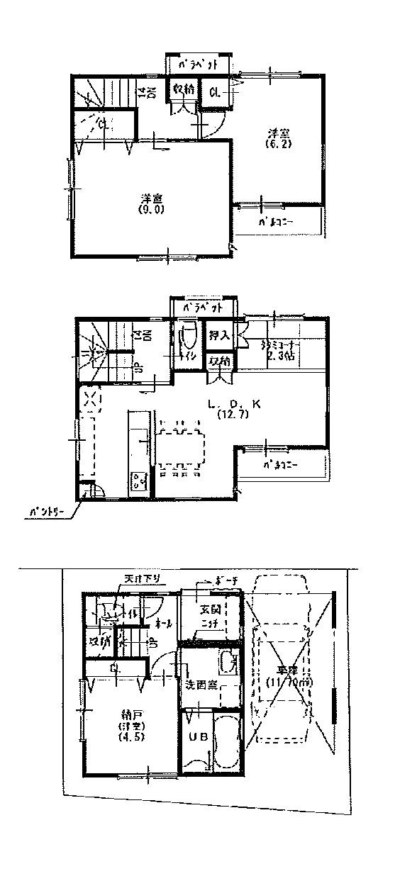
Floor plan 間取り | | 3LDK + S (storeroom) 3LDK+S(納戸) |
Units sold 販売戸数 | | 1 units 1戸 |
Total units 総戸数 | | 1 units 1戸 |
Land area 土地面積 | | 53.63 sq m (16.22 square meters) 53.63m2(16.22坪) |
Building area 建物面積 | | 98.58 sq m (29.82 square meters), Among the first floor garage 11.7 sq m 98.58m2(29.82坪)、うち1階車庫11.7m2 |
Driveway burden-road 私道負担・道路 | | Nothing 無 |
Completion date 完成時期(築年月) | | February 2014 2014年2月 |
Address 住所 | | Amagasaki, Hyogo Prefecture Minamishimizu 兵庫県尼崎市南清水 |
Traffic 交通 | | JR Fukuchiyama Line "Inadera" walk 5 minutes Hankyū Itami Line "Inano" walk 14 minutes Hankyū Itami Line "New Itami" walk 22 minutes JR福知山線「猪名寺」歩5分 阪急伊丹線「稲野」歩14分 阪急伊丹線「新伊丹」歩22分
|
Related links 関連リンク | | [Related Sites of this company] 【この会社の関連サイト】 |
Person in charge 担当者より | | Person in charge of real-estate and building Kinya Miyagawa Age: 40 Daigyokai Experience: 10 years of Hyogo Prefecture your house hunting Please leave me. Mortgage from the advice of property ・ Other thing to be worried about Please feel free to contact us. 担当者宅建宮川 欣也年齢:40代業界経験:10年兵庫県のお家探しは私にお任せください。物件のアドバイスから住宅ローン・その他気になることはお気軽にご相談下さい。 |
Contact お問い合せ先 | | TEL: 0800-600-0668 [Toll free] mobile phone ・ Also available from PHS Caller ID is not notified Please contact the "saw SUUMO (Sumo)" If it does not lead, If the real estate company TEL:0800-600-0668【通話料無料】携帯電話・PHSからもご利用いただけます 発信者番号は通知されません 「SUUMO(スーモ)を見た」と問い合わせください つながらない方、不動産会社の方は
|
Building coverage, floor area ratio 建ぺい率・容積率 | | 60% ・ 200% 60%・200% |
Time residents 入居時期 | | March 2014 schedule 2014年3月予定 |
Land of the right form 土地の権利形態 | | Ownership 所有権 |
Structure and method of construction 構造・工法 | | Wooden three-story 木造3階建 |
Use district 用途地域 | | One dwelling 1種住居 |
Overview and notices その他概要・特記事項 | | Contact: Kinya Miyagawa, Facilities: Public Water Supply, This sewage, City gas, Building confirmation number: No. J13-01038, Parking: car space 担当者:宮川 欣也、設備:公営水道、本下水、都市ガス、建築確認番号:J13-01038号、駐車場:カースペース |
Company profile 会社概要 | | <Mediation> governor of Osaka (2) the first 053,115 No. Century 21 (Ltd.) Kinki housing distribution Yubinbango573-0005 Hirakata, Osaka Ikenomiya 2-2-15 <仲介>大阪府知事(2)第053115号センチュリー21(株)近畿住宅流通〒573-0005 大阪府枚方市池之宮2-2-15 |