New Homes » Kansai » Hyogo Prefecture » Amagasaki
 
| | Amagasaki, Hyogo Prefecture 兵庫県尼崎市 |
| Hankyu Kobe Line "Sonoda" walk 9 minutes 阪急神戸線「園田」歩9分 |
| ■ Hankyu ・ Sonoda Station 9 minute walk! Station near! shopping ・ Commuting convenient! Umeda 4 Station! ■ Facing south! Good day! Before road about 8m! Garage put easy! Two-story! Old age peace of mind! ■ Ion Amagasaki soon! ■阪急・園田駅徒歩9分! 駅近! 買物・通勤便利! 梅田まで4駅!■南向き!日当たり良し! 前道約8m! 車庫入れしやすい! 2階建て! 老後安心!■イオン尼崎すぐ! |
| ■ LDK16.2 Pledge! wide! Easy to use! All room with storage! Also peace of mind one with a lot of luggage! ■ Flat 35S corresponding! Safe housing! ■ Possible .. delivery of the consumption tax increase before (in the current fiscal year)! ■ Payment Example Every month 85,161 yen (Borrowing 30,800,000 yen interest rate 0.875% 35 years No bonus payment) ■ In tax cuts maximum applicable Parenchyma Month 60,000 yen Allowed! (Month Yen 16666) ■ Tours + financial planning consultation carried out during the! ■ Please feel free to put you voice! 0120-45-2112 Until! ■LDK16.2帖! 広い! 使いやすい! 全居室収納付き! 荷物の多い方も安心!■フラット35S対応! 安心住宅!■消費増税前(今年度中)のお引き渡し可能!■お支払い例 月々 85161円 (借入 3080万円 金利 0.875% 35年 ボーナス払いなし)■減税最大適用で 実質 月 6万円台可! (月 16666円)■見学会+資金計画相談会実施中!■お気軽にお声掛け下さい! 0120―45-2112 まで! |
Features pickup 特徴ピックアップ | | Corresponding to the flat-35S / Pre-ground survey / 2 along the line more accessible / Fiscal year Available / Energy-saving water heaters / Super close / It is close to the city / Facing south / System kitchen / Bathroom Dryer / Yang per good / All room storage / Flat to the station / A quiet residential area / LDK15 tatami mats or more / Around traffic fewer / Or more before road 6m / Japanese-style room / Washbasin with shower / Face-to-face kitchen / Security enhancement / Toilet 2 places / Bathroom 1 tsubo or more / 2-story / South balcony / Double-glazing / Warm water washing toilet seat / Underfloor Storage / The window in the bathroom / TV monitor interphone / High-function toilet / Leafy residential area / Urban neighborhood / Mu front building / Ventilation good / Good view / Water filter / Flat terrain フラット35Sに対応 /地盤調査済 /2沿線以上利用可 /年度内入居可 /省エネ給湯器 /スーパーが近い /市街地が近い /南向き /システムキッチン /浴室乾燥機 /陽当り良好 /全居室収納 /駅まで平坦 /閑静な住宅地 /LDK15畳以上 /周辺交通量少なめ /前道6m以上 /和室 /シャワー付洗面台 /対面式キッチン /セキュリティ充実 /トイレ2ヶ所 /浴室1坪以上 /2階建 /南面バルコニー /複層ガラス /温水洗浄便座 /床下収納 /浴室に窓 /TVモニタ付インターホン /高機能トイレ /緑豊かな住宅地 /都市近郊 /前面棟無 /通風良好 /眺望良好 /浄水器 /平坦地 | Price 価格 | | 30,800,000 yen ~ 32,800,000 yen 3080万円 ~ 3280万円 | Floor plan 間取り | | 4LDK 4LDK | Units sold 販売戸数 | | 2 units 2戸 | Land area 土地面積 | | 97.41 sq m ~ 105.45 sq m (registration) 97.41m2 ~ 105.45m2(登記) | Building area 建物面積 | | 95.57 sq m ~ 102.86 sq m 95.57m2 ~ 102.86m2 | Completion date 完成時期(築年月) | | February 2014 schedule 2014年2月予定 | Address 住所 | | Amagasaki, Hyogo Prefecture Higashisonoda cho 7 兵庫県尼崎市東園田町7 | Traffic 交通 | | Hankyu Kobe Line "Sonoda" walk 9 minutes Hankyu Takarazuka Line "Shonai" walk 43 minutes JR Tozai Line "Kashima" walk 37 minutes 阪急神戸線「園田」歩9分 阪急宝塚線「庄内」歩43分 JR東西線「加島」歩37分
| Related links 関連リンク | | [Related Sites of this company] 【この会社の関連サイト】 | Contact お問い合せ先 | | TEL: 0800-808-7779 [Toll free] mobile phone ・ Also available from PHS Caller ID is not notified Please contact the "saw SUUMO (Sumo)" If it does not lead, If the real estate company TEL:0800-808-7779【通話料無料】携帯電話・PHSからもご利用いただけます 発信者番号は通知されません 「SUUMO(スーモ)を見た」と問い合わせください つながらない方、不動産会社の方は
| Time residents 入居時期 | | February 2014 schedule 2014年2月予定 | Land of the right form 土地の権利形態 | | Ownership 所有権 | Use district 用途地域 | | One middle and high 1種中高 | Overview and notices その他概要・特記事項 | | Building confirmation number: No. H25SHC118815 建築確認番号:第H25SHC118815号 | Company profile 会社概要 | | <Mediation> governor of Osaka Prefecture (1) the first 055,004 No. Century 21 N. prize (Ltd.) Tsukamoto Ekimae Yubinbango532-0026 Osaka Yodogawa-ku, Osaka Tsukamoto 2-23-14 <仲介>大阪府知事(1)第055004号センチュリー21エヌプライズ(株)塚本駅前店〒532-0026 大阪府大阪市淀川区塚本2-23-14 |
Other Environmental Photoその他環境写真  Old Inagawa green space, Stone's throw! A natural environment rich, Is the perfect environment in child-rearing!
旧猪名川緑地、すぐ近く! 自然環境豊かで、子育てにはピッタリの環境です!
Same specifications photos (appearance)同仕様写真(外観)  Facing south! Sun Sun Sun! Before road spacious about 8m! Garage put easy!
南向き! 太陽サンサン! 前道広々約8m! 車庫入れしやすい!
 Same specifications photo (kitchen)
同仕様写真(キッチン)
 Same specifications photos (living)
同仕様写真(リビング)
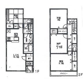
Floor plan間取り図  (No. 2 locations), Price 32,800,000 yen, 4LDK, Land area 97.41 sq m , Building area 95.57 sq m
(2号地)、価格3280万円、4LDK、土地面積97.41m2、建物面積95.57m2
 Same specifications photo (bathroom)
同仕様写真(浴室)
 Same specifications photos (Other introspection)
同仕様写真(その他内観)
 Same specifications photos (Other introspection)
同仕様写真(その他内観)
 Same specifications photos (Other introspection)
同仕様写真(その他内観)
 Same specifications photos (Other introspection)
同仕様写真(その他内観)
 Same specifications photos (Other introspection)
同仕様写真(その他内観)
Same specifications photos (Other introspection)同仕様写真(その他内観)  All room with storage! It is perfect for one with a lot of luggage!
全居室収納付き! 荷物の多い方にピッタリです!
 Same specifications photos (Other introspection)
同仕様写真(その他内観)
Shopping centreショッピングセンター  1840m to UNIQLO ion Amagasaki shop
ユニクロイオン尼崎店まで1840m
Supermarketスーパー  Koyo 742m until freshness Museum Sonoda shop
コーヨー鮮度館園田店まで742m
Kindergarten ・ Nursery幼稚園・保育園  845m until the Amagasaki Municipal Garden sum kindergarten
尼崎市立園和幼稚園まで845m
Primary school小学校  1107m until the Amagasaki Municipal Garden sum Elementary School
尼崎市立園和小学校まで1107m
Junior high school中学校  991m until the Amagasaki Municipal Sonoda Higashi Junior High School
尼崎市立園田東中学校まで991m
Hospital病院  1018m to Aiwa hospital
アイワ病院まで1018m
Bank銀行  Sumitomo Mitsui Banking Corporation Sonoda 948m to the branch
三井住友銀行園田支店まで948m
Park公園  Old Inagawa to green space 1506m
旧猪名川緑地まで1506m
Station駅  Hankyu ・ Until Sonoda Station 720m Hankyu ・ Sonoda Station 9 minute walk! Station near! Commuting convenient! Immediately to Umeda!
阪急・園田駅まで720m 阪急・園田駅徒歩9分! 駅近! 通勤便利! 梅田まですぐ!
Location
|