|
|
Hyogo Prefecture Ashiya
兵庫県芦屋市
|
|
Hankyu Kobe Line "Ashiyagawa" 20 minutes rumbling Bridge walk 15 minutes by bus
阪急神戸線「芦屋川」バス20分ゴロゴロ橋歩15分
|
|
Leafy residential area, Located on a hill, Good view, Floor heating, Security enhancement, Parking three or more possible, LDK20 tatami mats or more, A quiet residential area, 2-story, Zenshitsuminami direction
緑豊かな住宅地、高台に立地、眺望良好、床暖房、セキュリティ充実、駐車3台以上可、LDK20畳以上、閑静な住宅地、2階建、全室南向き
|
|
■ Vast site of about 1000 square meters in the natural environment rich location ■ Heisei reinforced concrete building of 23-year May building (built after not move) ■ All rooms have built-in air conditioning ・ With floor heating, Ultra-large aluminum heat insulation sash adoption commitment equipment ・ specification ■ 8 cars Allowed indoor garage
■自然環境豊かな立地に約1000坪の広大な敷地■平成23年5月建築(築後未入居)の鉄筋コンクリート造の建物■全室ビルトインエアコン・床暖房付、超大型アルミ断熱サッシ採用等こだわりの設備・仕様■屋内ガレージ8台分可
|
Features pickup 特徴ピックアップ | | Parking three or more possible / LDK20 tatami mats or more / A quiet residential area / Security enhancement / 2-story / Zenshitsuminami direction / Leafy residential area / Good view / Located on a hill / Floor heating 駐車3台以上可 /LDK20畳以上 /閑静な住宅地 /セキュリティ充実 /2階建 /全室南向き /緑豊かな住宅地 /眺望良好 /高台に立地 /床暖房 |
Price 価格 | | 180 million yen 1億8000万円 |
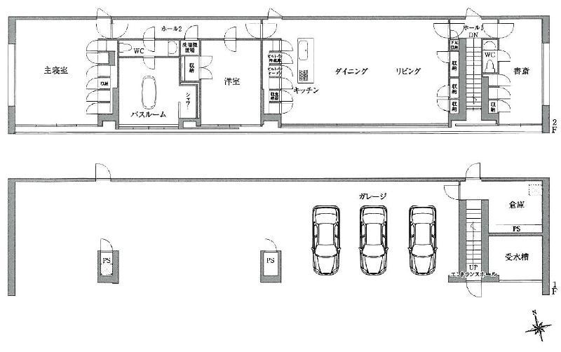
Floor plan 間取り | | 2LDK + S (storeroom) 2LDK+S(納戸) |
Units sold 販売戸数 | | 1 units 1戸 |
Land area 土地面積 | | 3305 sq m (999.75 tsubo) (Registration) 3305m2(999.75坪)(登記) |
Building area 建物面積 | | 190.4 sq m (57.59 tsubo) (Registration) 190.4m2(57.59坪)(登記) |
Driveway burden-road 私道負担・道路 | | Nothing, East 4.8m width (contact the road width 7.6m) 無、東4.8m幅(接道幅7.6m) |
Completion date 完成時期(築年月) | | 5 May 2011 2011年5月 |
Address 住所 | | Hyogo Prefecture Ashiya Okuikeminami cho 兵庫県芦屋市奥池南町 |
Traffic 交通 | | Hankyu Kobe Line "Ashiyagawa" 20 minutes rumbling Bridge walk 15 minutes by bus 阪急神戸線「芦屋川」バス20分ゴロゴロ橋歩15分
|
Person in charge 担当者より | | Person in charge of real-estate and building real estate consulting skills registrant Masuda Shigeru Age: 40 Daigyokai Experience: 13 greedy business is weaker year, Please come over your voice. Let me slowly and carefully listen to talk, I am keeping in mind the business tailored to your own pace. 担当者宅建不動産コンサルティング技能登録者増田 滋年齢:40代業界経験:13年ガツガツした営業が苦手な方は、ぜひお声を掛けて下さい。じっくりとお話を聞かせていただいて、お客様のペースに合わせた営業を心掛けております。 |
Contact お問い合せ先 | | TEL: 0800-603-1245 [Toll free] mobile phone ・ Also available from PHS Caller ID is not notified Please contact the "saw SUUMO (Sumo)" If it does not lead, If the real estate company TEL:0800-603-1245【通話料無料】携帯電話・PHSからもご利用いただけます 発信者番号は通知されません 「SUUMO(スーモ)を見た」と問い合わせください つながらない方、不動産会社の方は
|
Building coverage, floor area ratio 建ぺい率・容積率 | | 20% ・ 40% 20%・40% |
Time residents 入居時期 | | Consultation 相談 |
Land of the right form 土地の権利形態 | | Ownership 所有権 |
Structure and method of construction 構造・工法 | | RC2 story RC2階建 |
Construction 施工 | | (Ltd.) Tokuoka public service shop (株)徳岡公務店 |
Use district 用途地域 | | Unspecified 無指定 |
Other limitations その他制限事項 | | Scenic zone 風致地区 |
Overview and notices その他概要・特記事項 | | Contact: Masuda Shigeru, Facilities: Public Water Supply, This sewage, Parking: Garage 担当者:増田 滋、設備:公営水道、本下水、駐車場:車庫 |
Company profile 会社概要 | | <Mediation> Minister of Land, Infrastructure and Transport (11) No. 002287 (one company) Real Estate Association (Corporation) metropolitan area real estate Fair Trade Council member Co., Ltd. Japan Living Service Co., Ltd. Ashiya office Yubinbango659-0093 Hyogo Prefecture Ashiya Funato-cho 5-5 Eben ・ Ezer Ashiya first floor <仲介>国土交通大臣(11)第002287号(一社)不動産協会会員 (公社)首都圏不動産公正取引協議会加盟(株)日住サービス芦屋営業所〒659-0093 兵庫県芦屋市船戸町5-5 エベン・エゼル芦屋1階 |