New Homes » Kansai » Hyogo Prefecture » Himeji
 
| | Himeji, Hyogo Prefecture 兵庫県姫路市 |
| JR bantan line "Kyoguchi" walk 31 minutes JR播但線「京口」歩31分 |
| [Yamada ・ Esubaieru home of leasehold with a newly built one detached] "You still time. Consumption tax 5% of the residents "* The Property can be your delivery by the end of March. 【ヤマダ・エスバイエルホームの定期借地権付き新築一戸建】「まだ間に合います。消費税5%の入居」*本物件は3月末までにお引渡しが可能です。 |
| ◆ Achieve a long time strong house in the "SXL Construction" the highest ranked class. ◆ "Peace of mind of the house" can not be wrong industrialization certification of the House manufacturer ◆ All-electric specification, Comfortable eco-life in the happy enhancement equipment. ◆ All sections, Rooftops are good in a new development complex of more than front road 6m ◆ Convenient shopping within walking distance to fresh Bazaar Himeji Hanada shop. ◆最高ランククラスの「SXL構法」で永く強い家を実現。◆工業化認定取得のハウスメーカーだからできる「安心の家」◆オール電化仕様、嬉しい充実装備で快適エコ生活。◆全区画、前面道路6m以上の新規開発団地でよとりの街並み◆フレッシュバザール姫路花田店まで徒歩圏内で買い物便利。 |
Features pickup 特徴ピックアップ | | Pre-ground survey / Vibration Control ・ Seismic isolation ・ Earthquake resistant / Year Available / Parking three or more possible / Immediate Available / Energy-saving water heaters / See the mountain / Super close / It is close to the city / Facing south / System kitchen / Bathroom Dryer / Yang per good / All room storage / Siemens south road / LDK15 tatami mats or more / Or more before road 6m / Corner lot / Japanese-style room / Shaping land / garden / Home garden / Washbasin with shower / Face-to-face kitchen / Toilet 2 places / 2-story / South balcony / Double-glazing / Nantei / Underfloor Storage / The window in the bathroom / TV monitor interphone / Urban neighborhood / Ventilation good / All living room flooring / IH cooking heater / Dish washing dryer / Water filter / Living stairs / All-electric / Storeroom / Development subdivision in / Readjustment land within 地盤調査済 /制震・免震・耐震 /年内入居可 /駐車3台以上可 /即入居可 /省エネ給湯器 /山が見える /スーパーが近い /市街地が近い /南向き /システムキッチン /浴室乾燥機 /陽当り良好 /全居室収納 /南側道路面す /LDK15畳以上 /前道6m以上 /角地 /和室 /整形地 /庭 /家庭菜園 /シャワー付洗面台 /対面式キッチン /トイレ2ヶ所 /2階建 /南面バルコニー /複層ガラス /南庭 /床下収納 /浴室に窓 /TVモニタ付インターホン /都市近郊 /通風良好 /全居室フローリング /IHクッキングヒーター /食器洗乾燥機 /浄水器 /リビング階段 /オール電化 /納戸 /開発分譲地内 /区画整理地内 | Event information イベント情報 | | Open House (Please visitors to direct local) schedule / Every Saturday, Sunday and public holidays time / 10:00 ~ 17:00 オープンハウス(直接現地へご来場ください)日程/毎週土日祝時間/10:00 ~ 17:00 | Price 価格 | | 17.3 million yen 1730万円 | Floor plan 間取り | | 4LDK ~ 4LDK + S (storeroom) 4LDK ~ 4LDK+S(納戸) | Units sold 販売戸数 | | 3 units 3戸 | Total units 総戸数 | | 3 units 3戸 | Land area 土地面積 | | 142.75 sq m ~ 153.81 sq m 142.75m2 ~ 153.81m2 | Building area 建物面積 | | 100.19 sq m ~ 111.78 sq m 100.19m2 ~ 111.78m2 | Driveway burden-road 私道負担・道路 | | Road width: 4.8m, Asphaltic pavement 道路幅:4.8m、アスファルト舗装 | Completion date 完成時期(築年月) | | 2013 mid-April 2013年4月中旬 | Address 住所 | | Himeji, Hyogo Prefecture Hanadachokanoharada shaped Kawanokami 969 No. 10 兵庫県姫路市花田町加納原田字川之上969番10他 | Traffic 交通 | | JR bantan line "Kyoguchi" walk 31 minutes Shinki "Ogawa" walk 9 minutes JR播但線「京口」歩31分 神姫バス「小川」歩9分 | Related links 関連リンク | | [Related Sites of this company] 【この会社の関連サイト】 | Contact お問い合せ先 | | (Ltd.) Yamada ・ Esubaieru home Himeji branch TEL: 0800-809-8705 [Toll free] mobile phone ・ Also available from PHS Caller ID is not notified Please contact the "saw SUUMO (Sumo)" If it does not lead, If the real estate company (株)ヤマダ・エスバイエルホーム姫路支店TEL:0800-809-8705【通話料無料】携帯電話・PHSからもご利用いただけます 発信者番号は通知されません 「SUUMO(スーモ)を見た」と問い合わせください つながらない方、不動産会社の方は
| Expenses 諸費用 | | Deposit: 2 million yen, Leasehold rent (month): J building 11,500 yen / Month V Building 11,600 yen / Month M Building 12,400 yen / Month 保証金:200万円、借地権賃料(月):J棟1万1500円/月 V棟1万1600円/月 M棟1万2400円/月 | Building coverage, floor area ratio 建ぺい率・容積率 | | Kenpei rate: 60%, Volume ratio: 200% 建ペい率:60%、容積率:200% | Time residents 入居時期 | | Immediate available 即入居可 | Land of the right form 土地の権利形態 | | Leasehold (leasehold), New 50 years, Leasehold setting registration Allowed, Rent revisions are revised every three years, Rents According to the official revised, Transfer of leasehold ・ Sublease Allowed, Landowner consent required 定期借地権(賃借権)、新規50年、借地権設定登記可、賃料改定は3年毎に改定、改定後賃料は公式による、借地権の譲渡・転貸可、地主承諾要 | Structure and method of construction 構造・工法 | | Wood-based panels integrated Construction 木質パネル一体構法 | Use district 用途地域 | | One low-rise 1種低層 | Land category 地目 | | Residential land 宅地 | Overview and notices その他概要・特記事項 | | Building confirmation number: No. BVJ-P12-10-0665 (2012 November 7, 2008) other 建築確認番号:第BVJ-P12-10-0665号(平成24年11月7日) 他 | Company profile 会社概要 | | <Building seller ・ Land lessor> Minister of Land, Infrastructure and Transport (14) No. 000382 (Ltd.) Yamada ・ Esubaieru home Himeji branch Yubinbango670-0955 Yasuda Himeji, Hyogo Prefecture 1-68-1 <建物売主・土地貸主>国土交通大臣(14)第000382号(株)ヤマダ・エスバイエルホーム姫路支店〒670-0955 兵庫県姫路市安田1-68-1 |
Local appearance photo現地外観写真  Local (August 2013) shooting J No. land
現地(2013年8月)撮影J号地
Kitchenキッチン  System Kitchen (2013 late May shooting)
システムキッチン(2013年5月下旬撮影)
Bathroom浴室  Bathroom (May 2013) Shooting
浴室(2013年5月)撮影
Toiletトイレ  Room (May 2013) Shooting
室内(2013年5月)撮影
Livingリビング  Living set (May 2013) Shooting
リビングセット(2013年5月)撮影
 Construction ・ Construction method ・ specification
構造・工法・仕様
Other Equipmentその他設備  (2013 / 05 / End) Shooting
(2013/05/末)撮影
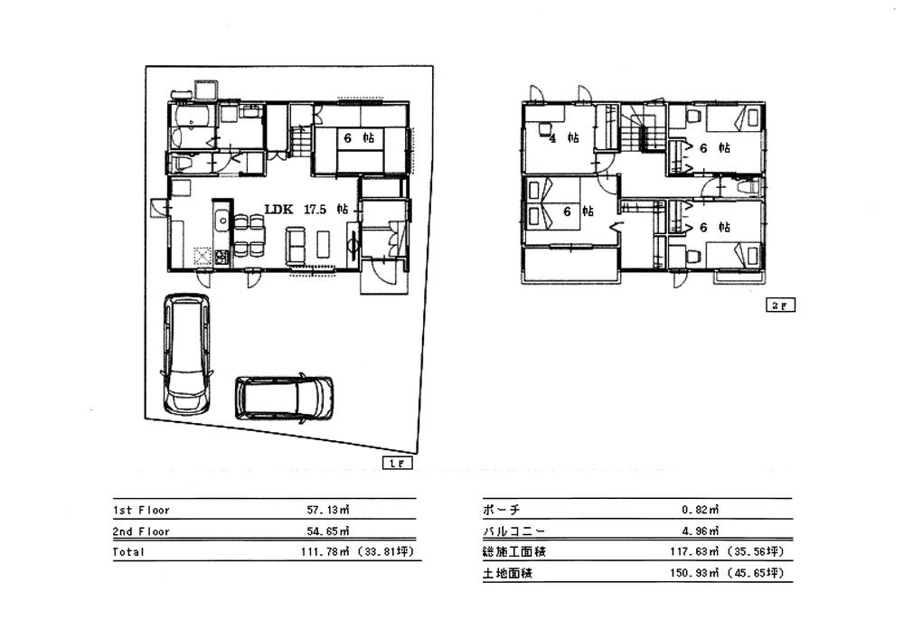
Compartment figure区画図  (Hanada V No. land), Price 17.3 million yen, 4LDK+S, Land area 150.93 sq m , Building area 111.78 sq m
(花田 V号地)、価格1730万円、4LDK+S、土地面積150.93m2、建物面積111.78m2
 Local guide map
現地案内図
Otherその他  Dining set (May 2013) Shooting
ダイニングセット(2013年5月)撮影
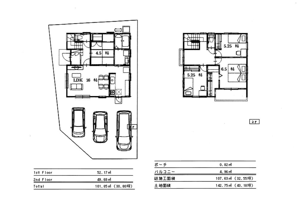
Floor plan間取り図  (Hanada M No. land), Price 17.3 million yen, 4LDK, Land area 142.75 sq m , Building area 101.85 sq m
(花田 M号地)、価格1730万円、4LDK、土地面積142.75m2、建物面積101.85m2
 Construction ・ Construction method ・ specification
構造・工法・仕様
Cooling and heating ・ Air conditioning冷暖房・空調設備  (2013 / 05 / End) Shooting
(2013/05/末)撮影
Local guide map現地案内図  Local compartment Figure
現地区画図
 Construction ・ Construction method ・ specification
構造・工法・仕様
 Construction ・ Construction method ・ specification
構造・工法・仕様
Location
|