2014March
17.8 million yen, 4LDK, 105.3 sq m
New Homes » Kansai » Hyogo Prefecture » Himeji
 
| | Himeji, Hyogo Prefecture 兵庫県姫路市 |
| Sanyo Electric Railway Aboshisen "San'yotenma" walk 17 minutes 山陽電鉄網干線「山陽天満」歩17分 |
Features pickup 特徴ピックアップ | | Parking two Allowed / System kitchen / Bathroom Dryer / LDK15 tatami mats or more / Japanese-style room / Shaping land / Washbasin with shower / Face-to-face kitchen / Toilet 2 places / 2-story / Warm water washing toilet seat / Underfloor Storage / The window in the bathroom / TV monitor interphone / IH cooking heater / Water filter / All-electric / Flat terrain / Readjustment land within 駐車2台可 /システムキッチン /浴室乾燥機 /LDK15畳以上 /和室 /整形地 /シャワー付洗面台 /対面式キッチン /トイレ2ヶ所 /2階建 /温水洗浄便座 /床下収納 /浴室に窓 /TVモニタ付インターホン /IHクッキングヒーター /浄水器 /オール電化 /平坦地 /区画整理地内 | Price 価格 | | 17.8 million yen 1780万円 | Floor plan 間取り | | 4LDK 4LDK | Units sold 販売戸数 | | 1 units 1戸 | Land area 土地面積 | | 129.28 sq m (registration) 129.28m2(登記) | Building area 建物面積 | | 105.3 sq m (registration) 105.3m2(登記) | Driveway burden-road 私道負担・道路 | | Nothing, West 4m width 無、西4m幅 | Completion date 完成時期(築年月) | | March 2014 2014年3月 | Address 住所 | | Himeji, Hyogo Prefecture Otsu District Kanbei cho 2 兵庫県姫路市大津区勘兵衛町2 | Traffic 交通 | | Sanyo Electric Railway Aboshisen "San'yotenma" walk 17 minutes 山陽電鉄網干線「山陽天満」歩17分
| Person in charge 担当者より | | Person in charge of slander 担当者中口 | Contact お問い合せ先 | | Ltd. Asahi land TEL: 079-228-2936 Please inquire as "saw SUUMO (Sumo)" (株)あさひ土地TEL:079-228-2936「SUUMO(スーモ)を見た」と問い合わせください | Building coverage, floor area ratio 建ぺい率・容積率 | | 60% ・ 200% 60%・200% | Time residents 入居時期 | | Consultation 相談 | Land of the right form 土地の権利形態 | | Ownership 所有権 | Structure and method of construction 構造・工法 | | Wooden 2-story (framing method) 木造2階建(軸組工法) | Construction 施工 | | (Ltd.) Ernest One (株)アーネストワン | Use district 用途地域 | | One dwelling 1種住居 | Overview and notices その他概要・特記事項 | | Contact: Nakaguchi, Facilities: Public Water Supply, This sewage, All-electric, Building confirmation number: No. H25SHC120511, Parking: car space 担当者:中口、設備:公営水道、本下水、オール電化、建築確認番号:第H25SHC120511号、駐車場:カースペース | Company profile 会社概要 | | <Mediation> Governor of Hyogo Prefecture (1) No. 451349 (stock) Asahi land Yubinbango670-0948 Himeji, Hyogo Prefecture Hojomiyano cho 257 Kinoshita Bill 203 <仲介>兵庫県知事(1)第451349号(株)あさひ土地〒670-0948 兵庫県姫路市北条宮の町257 キノシタビル203 |
Rendering (appearance)完成予想図(外観)  ( Building) Rendering
( 号棟)完成予想図
Rendering (introspection)完成予想図(内観)  ( Building) Rendering
( 号棟)完成予想図
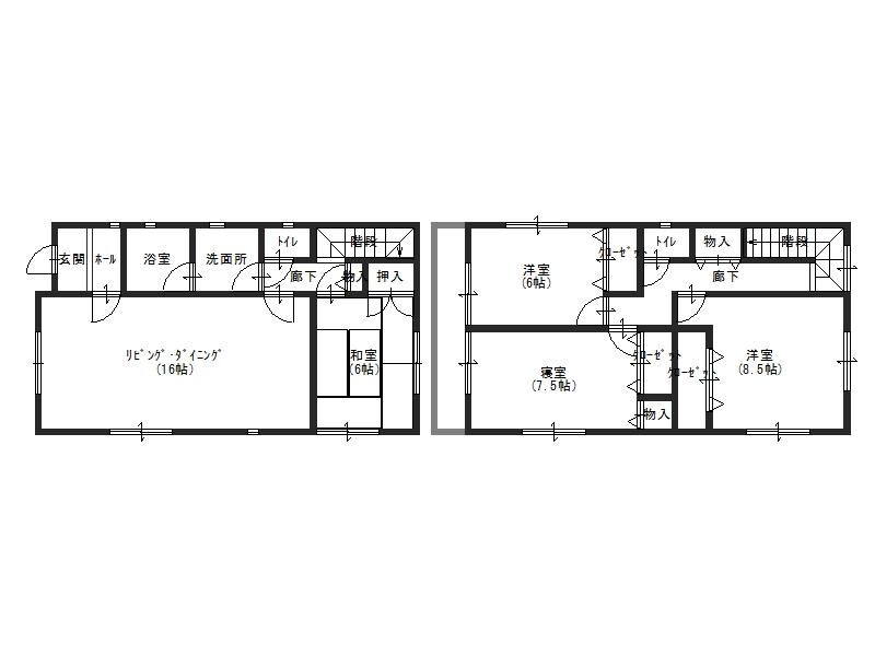
Floor plan間取り図  17.8 million yen, 4LDK, Land area 129.28 sq m , Building area 105.3 sq m
1780万円、4LDK、土地面積129.28m2、建物面積105.3m2
Rendering (appearance)完成予想図(外観)  ( Building) Rendering
( 号棟)完成予想図
Rendering (introspection)完成予想図(内観)  ( Building) Rendering
( 号棟)完成予想図
 ( Building) Rendering
( 号棟)完成予想図
 ( Building) Rendering
( 号棟)完成予想図
 ( Building) Rendering
( 号棟)完成予想図
 ( Building) Rendering
( 号棟)完成予想図
 ( Building) Rendering
( 号棟)完成予想図
Location
|