New Homes » Kansai » Hyogo Prefecture » Itami
 
| | Hyogo Prefecture Itami 兵庫県伊丹市 |
| Hankyū Itami Line "Itami" bus 16 minutes Ayumi Nishino 3 minutes 阪急伊丹線「伊丹」バス16分西野歩3分 |
| ■ Sunnyside Nishino 2 all two-compartment ■ Model house night 8:00 possible tour ■ Your tour of the reservation Itami of property is Itami is local Century 21 Itami shop Sumo dedicated dial 0800-603-2205 ■サニーサイド西野2全2区画■モデルハウス 夜8:00まで見学可能■ご見学会のご予約 伊丹の物件は伊丹が地元のセンチュリー21伊丹店 スーモ専用ダイヤル 0800-603-2205 |
| ※ Appearance of this publication ・ Introspection ・ Amenities are the same scale ・ format ・ This construction photos of the same specification. Gate ・ Planting ・ It will differ from this matter for the garden and the nearby landscape, etc.. ■ All two-compartment of subdivision ■ All-electric housing ■ Next-generation energy-saving house ■ Site 37 square meters or more! ※本掲載の外観・内観・設備写真は同一規模・形式・同仕様の施工写真です。門扉・植栽・庭や近隣の風景等について本件と異なります。■全2区画の分譲地■オール電化住宅■次世代省エネルギー対応の家■敷地37坪以上! |
Features pickup 特徴ピックアップ | | Pre-ground survey / 2 along the line more accessible / Yang per good / Flat to the station / A quiet residential area / Around traffic fewer / Or more before road 6m / Starting station / Shaping land / Flat terrain / Building plan example there 地盤調査済 /2沿線以上利用可 /陽当り良好 /駅まで平坦 /閑静な住宅地 /周辺交通量少なめ /前道6m以上 /始発駅 /整形地 /平坦地 /建物プラン例有り | Price 価格 | | 22,800,000 yen ・ 23.8 million yen 2280万円・2380万円 | Building coverage, floor area ratio 建ぺい率・容積率 | | Kenpei rate: 60%, Volume ratio: 200% 建ペい率:60%、容積率:200% | Sales compartment 販売区画数 | | 2 compartment 2区画 | Total number of compartments 総区画数 | | 2 compartment 2区画 | Land area 土地面積 | | 125.9 sq m ・ 137.13 sq m (38.08 tsubo ・ 41.48 tsubo) (Registration) 125.9m2・137.13m2(38.08坪・41.48坪)(登記) | Driveway burden-road 私道負担・道路 | | Road width: 6m 道路幅:6m | Land situation 土地状況 | | Vacant lot 更地 | Address 住所 | | Hyogo Prefecture Itami Nishino 2-402 兵庫県伊丹市西野2-402 | Traffic 交通 | | Hankyū Itami Line "Itami" bus 16 minutes Ayumi Nishino 3 minutes JR Fukuchiyama Line "Itami" bus 21 minutes Ayumi Nishino 3 minutes Hankyu Imazu Line "Kobayashi" walk 37 minutes 阪急伊丹線「伊丹」バス16分西野歩3分 JR福知山線「伊丹」バス21分西野歩3分 阪急今津線「小林」歩37分
| Related links 関連リンク | | [Related Sites of this company] 【この会社の関連サイト】 | Person in charge 担当者より | | Person in charge of the ridges Yuki Age: 30 Daigyokai Experience: 14 years Itami, Takarazuka, For Kawanishi, Since it is familiar as far as fine-region, Anything, please consult. Also, Also because it is rich in knowledge of mortgage, Because it does not matter only consultation of funds calculation, Please feel free to visit us. 担当者山部 勇喜年齢:30代業界経験:14年伊丹市、宝塚市、川西市に関しては、地域の細かい所まで熟知しておりますので、何でもご相談下さい。また、住宅ローンの知識も豊富ですので、資金計算のご相談だけでも構いませんので、お気軽にご来店下さい。 | Contact お問い合せ先 | | TEL: 0800-603-2205 [Toll free] mobile phone ・ Also available from PHS Caller ID is not notified Please contact the "saw SUUMO (Sumo)" If it does not lead, If the real estate company TEL:0800-603-2205【通話料無料】携帯電話・PHSからもご利用いただけます 発信者番号は通知されません 「SUUMO(スーモ)を見た」と問い合わせください つながらない方、不動産会社の方は
| Land of the right form 土地の権利形態 | | Ownership 所有権 | Building condition 建築条件 | | With 付 | Time delivery 引き渡し時期 | | 4 months after the contract 契約後4ヶ月 | Land category 地目 | | Residential land 宅地 | Use district 用途地域 | | One middle and high 1種中高 | Overview and notices その他概要・特記事項 | | Contact: Yamabe Yuki, Facilities: Public Water Supply, This sewage, All-electric 担当者:山部 勇喜、設備:公営水道、本下水、オール電化 | Company profile 会社概要 | | <Mediation> Governor of Hyogo Prefecture (5) Article 202981 No. Century 21 (stock) Across Corporation Itami shop Yubinbango664-0858 Hyogo Prefecture Itami Nishidai 1-8-1 <仲介>兵庫県知事(5)第202981号センチュリー21(株)アクロスコーポレイション伊丹店〒664-0858 兵庫県伊丹市西台1-8-1 |
Otherその他  Gather information in front of the station!
駅前に情報集まる!
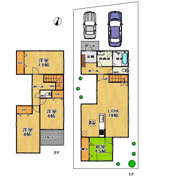
Compartment view + building plan example区画図+建物プラン例  Building plan example (A No. land) 4LDK, Land price 22,800,000 yen, Land area 125.9 sq m , Building price 12 million yen, Building area 105.3 sq m
建物プラン例(A号地)4LDK、土地価格2280万円、土地面積125.9m2、建物価格1200万円、建物面積105.3m2
Building plan example (Perth ・ appearance)建物プラン例(パース・外観)  Example of construction photos of appearance
外観の施工例写真
Building plan example (Perth ・ Introspection)建物プラン例(パース・内観)  Living example of construction photos of
リビングの施工例写真
 Example of construction of kitchen photos
キッチンの施工例写真
 Bathroom construction example photo of
浴室の施工例写真
 Washstand construction example photo
洗面台の施工例写真
 Western-style construction example photo
洋室の施工例写真
Compartment view + building plan example区画図+建物プラン例  Building plan example (B No. land) 4LDK, Land price 23.8 million yen, Land area 137.13 sq m , Building price 12 million yen, Building area 106.11 sq m
建物プラン例(B号地)4LDK、土地価格2380万円、土地面積137.13m2、建物価格1200万円、建物面積106.11m2
Presentプレゼント  Entitled to customers who visit us have gotten a look at Sumo, We will present entitled to a QUO card 500 yen! ! For more information please do not hesitate to contact us to buy and sell in charge. ※ But only to customers who had you all fill in the questionnaire.
スーモをご覧頂いてご来店頂いたお客様にもれなく、QUOカード500円分をもれなくプレゼントいたします!!詳細は売買担当までお気軽にお問い合わせくださいませ。※アンケートを全てご記入して頂いたお客様に限ります。
You will receive this brochureこんなパンフレットが届きます  You will receive a brochure of the property! Packed even more information of properties that do not know just Sumonetto tries to right now Request! Also will deliver documentation of local information and other similar properties around!
物件のパンフレットが届きます!今すぐ資料請求しようスーモネットだけでは分からない物件の詳細情報も満載!また周辺の地域情報やその他類似物件の資料もお届けします!
Location
|