New Homes » Kansai » Hyogo Prefecture » Itami
 
| | Hyogo Prefecture Itami 兵庫県伊丹市 |
| Hankyū Itami Line "New Itami" walk 17 minutes 阪急伊丹線「新伊丹」歩17分 |
Features pickup 特徴ピックアップ | | System kitchen / Yang per good / Flat to the station / A quiet residential area / 2-story / Ventilation good システムキッチン /陽当り良好 /駅まで平坦 /閑静な住宅地 /2階建 /通風良好 | Price 価格 | | 31,800,000 yen 3180万円 | Floor plan 間取り | | 4LDK 4LDK | Units sold 販売戸数 | | 1 units 1戸 | Total units 総戸数 | | 1 units 1戸 | Land area 土地面積 | | 84.33 sq m (measured) 84.33m2(実測) | Building area 建物面積 | | 91.12 sq m 91.12m2 | Driveway burden-road 私道負担・道路 | | Nothing, East 4.4m width 無、東4.4m幅 | Completion date 完成時期(築年月) | | August 2013 2013年8月 | Address 住所 | | Hyogo Prefecture Itami Koyaizumi cho 兵庫県伊丹市昆陽泉町1 | Traffic 交通 | | Hankyū Itami Line "New Itami" walk 17 minutes 阪急伊丹線「新伊丹」歩17分
| Person in charge 担当者より | | [Regarding this property.] It is a quiet residential area. 1-minute walk up to the super "Misuzu Royal". 【この物件について】閑静な住宅地です。スーパー『美鈴ローヤル』迄徒歩1分。 | Contact お問い合せ先 | | TEL: 0800-603-1266 [Toll free] mobile phone ・ Also available from PHS Caller ID is not notified Please contact the "saw SUUMO (Sumo)" If it does not lead, If the real estate company TEL:0800-603-1266【通話料無料】携帯電話・PHSからもご利用いただけます 発信者番号は通知されません 「SUUMO(スーモ)を見た」と問い合わせください つながらない方、不動産会社の方は
| Building coverage, floor area ratio 建ぺい率・容積率 | | 60% ・ 150% 60%・150% | Time residents 入居時期 | | Consultation 相談 | Land of the right form 土地の権利形態 | | Ownership 所有権 | Structure and method of construction 構造・工法 | | Wooden 2-story (framing method) 木造2階建(軸組工法) | Construction 施工 | | Co., Ltd. home stage (株)ホームステージ | Use district 用途地域 | | Two low-rise 2種低層 | Other limitations その他制限事項 | | Height district 高度地区 | Overview and notices その他概要・特記事項 | | Facilities: Public Water Supply, This sewage, City gas, Building confirmation number: J13-00234, Parking: car space 設備:公営水道、本下水、都市ガス、建築確認番号:J13-00234、駐車場:カースペース | Company profile 会社概要 | | <Mediation> Minister of Land, Infrastructure and Transport (11) No. 002287 (Corporation) Japan Living Service Co., Ltd. Itami office Yubinbango664-0858 Hyogo Prefecture Itami Nishidai 3-9-24 (Nichiju Nakamura Building) <仲介>国土交通大臣(11)第002287号(株)日住サービス伊丹営業所〒664-0858 兵庫県伊丹市西台3-9-24 (日住中村ビル) |
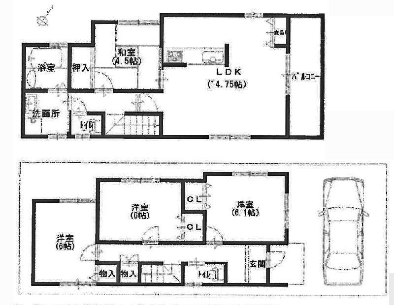
Floor plan間取り図  31,800,000 yen, 4LDK, Land area 84.33 sq m , Building area 91.12 sq m
3180万円、4LDK、土地面積84.33m2、建物面積91.12m2
Local appearance photo現地外観写真  Local (September 2013) Shooting
現地(2013年9月)撮影
Kitchenキッチン  Indoor (September 2013) Shooting
室内(2013年9月)撮影
Livingリビング  Indoor (September 2013) Shooting
室内(2013年9月)撮影
Bathroom浴室  Indoor (September 2013) Shooting
室内(2013年9月)撮影
Receipt収納  Indoor (September 2013) Shooting
室内(2013年9月)撮影
Non-living roomリビング以外の居室  Indoor (September 2013) Shooting
室内(2013年9月)撮影
 Indoor (September 2013) Shooting
室内(2013年9月)撮影
Other Equipmentその他設備  dishwasher
食器洗い機
Otherその他  Wash
洗面
Other Equipmentその他設備  Bathroom TV
浴室テレビ
Balconyバルコニー  Local (September 2013) Shooting
現地(2013年9月)撮影
Receipt収納  Indoor (September 2013) Shooting
室内(2013年9月)撮影
Location
|