New Homes » Kansai » Hyogo Prefecture » Itami
 
| | Hyogo Prefecture Itami 兵庫県伊丹市 |
| Hankyū Itami Line "Itami" 20 minutes north of the center before walking 3 minutes by bus 阪急伊丹線「伊丹」バス20分北センター前歩3分 |
| Kitano 6-chome project, Cute ・ Solar power (3kw) is No. 7 place of standard equipment! Finished already, You can preview 北野6丁目プロジェクト、エコキュート・太陽光発電(3kw)が標準装備の7号地!完成済、内覧いただけます |
| ■ Site 31.54 square meters ・ Building 31 square meters, Good per sun in the southeast direction ■ Cute ・ Solar power (3kw) of the standard all-electric ■ It is plenty of storage in the walk-in closet, etc. The master bedroom! ■ The kitchen beside has established a convenient housework room to wife ■ The completed per, You can see at any time! ■敷地31.54坪・建物31坪、南東向きで陽当たり良好■エコキュート・太陽光発電(3kw)標準装備のオール電化■主寝室にウォークインクローゼット等で収納もたっぷりです!■キッチン横には奥様に便利な家事室を設けました■完成済みにつき、いつでもご覧いただけます! |
Features pickup 特徴ピックアップ | | Solar power system / Pre-ground survey / Immediate Available / LDK18 tatami mats or more / Super close / It is close to the city / Facing south / System kitchen / Bathroom Dryer / Yang per good / All room storage / Flat to the station / Or more before road 6m / Shaping land / Washbasin with shower / Barrier-free / Toilet 2 places / Bathroom 1 tsubo or more / 2-story / Double-glazing / Warm water washing toilet seat / Underfloor Storage / The window in the bathroom / Atrium / TV monitor interphone / Urban neighborhood / Ventilation good / Walk-in closet / Living stairs / All-electric / Flat terrain 太陽光発電システム /地盤調査済 /即入居可 /LDK18畳以上 /スーパーが近い /市街地が近い /南向き /システムキッチン /浴室乾燥機 /陽当り良好 /全居室収納 /駅まで平坦 /前道6m以上 /整形地 /シャワー付洗面台 /バリアフリー /トイレ2ヶ所 /浴室1坪以上 /2階建 /複層ガラス /温水洗浄便座 /床下収納 /浴室に窓 /吹抜け /TVモニタ付インターホン /都市近郊 /通風良好 /ウォークインクロゼット /リビング階段 /オール電化 /平坦地 | Price 価格 | | 34,900,000 yen 3490万円 | Floor plan 間取り | | 3LDK + S (storeroom) 3LDK+S(納戸) | Units sold 販売戸数 | | 1 units 1戸 | Total units 総戸数 | | 1 units 1戸 | Land area 土地面積 | | 104.29 sq m (registration) 104.29m2(登記) | Building area 建物面積 | | 102.33 sq m 102.33m2 | Driveway burden-road 私道負担・道路 | | Nothing, Southeast 12m width (contact the road width 6.8m) 無、南東12m幅(接道幅6.8m) | Completion date 完成時期(築年月) | | September 2012 2012年9月 | Address 住所 | | Hyogo Prefecture Itami Kitano 6 兵庫県伊丹市北野6 | Traffic 交通 | | Hankyū Itami Line "Itami" 20 minutes north of the center before walking 3 minutes by bus 阪急伊丹線「伊丹」バス20分北センター前歩3分
| Person in charge 担当者より | | Person in charge of real-estate and building Ito KotobukiKuni Age: 30 Daigyokai experience: worked for 15 years and four years new construction distributors, I came back the first time in five years this year in enrollment was Mifuku real estate previous 10 years. Taking advantage of about 15 years of experience, Polite ・ sincerely, We thought that if you can deliver a "good home" to our customers. 担当者宅建伊藤 寿邦年齢:30代業界経験:15年4年間新築販売業者で勤務し、以前10年間在籍した三福不動産に今年5年ぶりに戻ってきました。約15年の経験を活かし、丁寧・誠実に、お客様に 「いい家」 をお届けできればと思っております。 | Contact お問い合せ先 | | TEL: 0800-603-2087 [Toll free] mobile phone ・ Also available from PHS Caller ID is not notified Please contact the "saw SUUMO (Sumo)" If it does not lead, If the real estate company TEL:0800-603-2087【通話料無料】携帯電話・PHSからもご利用いただけます 発信者番号は通知されません 「SUUMO(スーモ)を見た」と問い合わせください つながらない方、不動産会社の方は
| Expenses 諸費用 | | Water caliber another contribution: 158,900 yen / Bulk 水道口径別分担金:15万8900円/一括 | Building coverage, floor area ratio 建ぺい率・容積率 | | 60% ・ 200% 60%・200% | Time residents 入居時期 | | Immediate available 即入居可 | Land of the right form 土地の権利形態 | | Ownership 所有権 | Structure and method of construction 構造・工法 | | Wooden 2-story (framing method) 木造2階建(軸組工法) | Construction 施工 | | Tanaka, Building Products Co., Ltd. 田中住建(株) | Use district 用途地域 | | One dwelling 1種住居 | Other limitations その他制限事項 | | Regulations have by the Landscape Act, Regulations have by the Aviation Law, Height district, Site area minimum Yes, Kinki region, etc. Improvement Act, The second kind altitude district, Law Article 22 zone 景観法による規制有、航空法による規制有、高度地区、敷地面積最低限度有、近畿圏等整備法、第二種高度地区、法22条区域 | Overview and notices その他概要・特記事項 | | Contact: Ito KotobukiKuni, Facilities: Public Water Supply, This sewage, City gas, Building confirmation number: No. J11-01278, Parking: car space 担当者:伊藤 寿邦、設備:公営水道、本下水、都市ガス、建築確認番号:第J11-01278号、駐車場:カースペース | Company profile 会社概要 | | <Mediation> Governor of Hyogo Prefecture (6) Article 202459 No. Mifuku Real Estate Co., Ltd. Yubinbango664-0002 Hyogo Prefecture Itami Ogino 3-140-2 <仲介>兵庫県知事(6)第202459号三福不動産(株)〒664-0002 兵庫県伊丹市荻野3-140-2 |
Local appearance photo現地外観写真  The completed per turnkey
完成済みにつき即入居可能
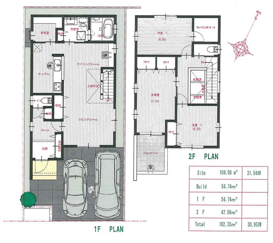
Floor plan間取り図  34,900,000 yen, 3LDK + S (storeroom), Land area 104.29 sq m , Building area 102.33 sq m Cute ・ Solar power (3kw) of the standard all-electric
3490万円、3LDK+S(納戸)、土地面積104.29m2、建物面積102.33m2 エコキュート・太陽光発電(3kw)標準装備のオール電化
Local photos, including front road前面道路含む現地写真  Southeast side is a public road
南東側は公道です
Livingリビング  The room is a picture
室内写真です
Shopping centreショッピングセンター  Million Town Itami to Aramaki 760m
ミリオンタウン伊丹荒牧まで760m
The entire compartment Figure全体区画図  No. 7 land, You can see at any time!
7号地、いつでもご覧いただけます!
Supermarketスーパー  400m to the Kansai Super Konoike shop
関西スーパー鴻池店まで400m
Otherその他  It is a solar power standard!
太陽光発電標準装備です!
Drug storeドラッグストア  Kirindo 600m to Itami Konoike shop
キリン堂伊丹鴻池店まで600m
Home centerホームセンター  650m to home improvement Konan Itami shop
ホームセンターコーナン伊丹店まで650m
 K's Denki Takarazuka until Itami shop 940m
ケーズデンキ宝塚伊丹店まで940m
 Super Viva Home 1020m to Itami shop
スーパービバホーム伊丹店まで1020m
Junior high school中学校  1100m to Itami Aramaki junior high school
伊丹市立荒牧中学校まで1100m
Primary school小学校  690m to Itami god river Elementary School
伊丹市立天神川小学校まで690m
Park公園  1020m to Aramaki park
荒牧公園まで1020m
Location
|