2013July
33,800,000 yen, 4LDK, 94.16 sq m
New Homes » Kansai » Hyogo Prefecture » Itami

| | Hyogo Prefecture Itami 兵庫県伊丹市 |
| Hankyū Itami Line "New Itami" walk 16 minutes 阪急伊丹線「新伊丹」歩16分 |
| Koyaizumi-cho 1-chome 昆陽泉町1丁目 |
| School Information: Tohi Elementary School ・ West Junior High School 学校情報:摂陽小学校・西中学校 |
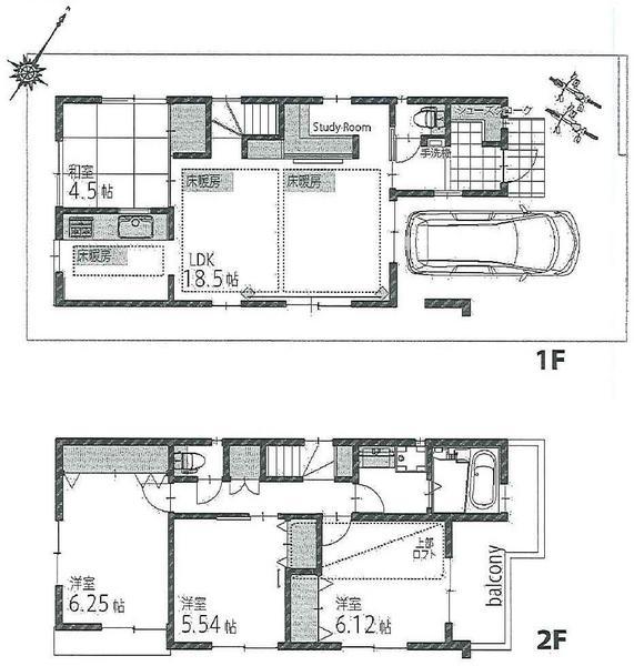
Features pickup 特徴ピックアップ | | Immediate Available / LDK18 tatami mats or more / Japanese-style room / Toilet 2 places / 2-story / City gas / Floor heating 即入居可 /LDK18畳以上 /和室 /トイレ2ヶ所 /2階建 /都市ガス /床暖房 | Price 価格 | | 33,800,000 yen 3380万円 | Floor plan 間取り | | 4LDK 4LDK | Units sold 販売戸数 | | 1 units 1戸 | Land area 土地面積 | | 85.49 sq m (registration) 85.49m2(登記) | Building area 建物面積 | | 94.16 sq m 94.16m2 | Driveway burden-road 私道負担・道路 | | Nothing, East 4.5m width (contact the road width 6m) 無、東4.5m幅(接道幅6m) | Completion date 完成時期(築年月) | | July 2013 2013年7月 | Address 住所 | | Hyogo Prefecture Itami Koyaizumi cho 兵庫県伊丹市昆陽泉町1 | Traffic 交通 | | Hankyū Itami Line "New Itami" walk 16 minutes 阪急伊丹線「新伊丹」歩16分
| Related links 関連リンク | | [Related Sites of this company] 【この会社の関連サイト】 | Contact お問い合せ先 | | TEL: 0800-601-0849 [Toll free] mobile phone ・ Also available from PHS Caller ID is not notified Please contact the "saw SUUMO (Sumo)" If it does not lead, If the real estate company TEL:0800-601-0849【通話料無料】携帯電話・PHSからもご利用いただけます 発信者番号は通知されません 「SUUMO(スーモ)を見た」と問い合わせください つながらない方、不動産会社の方は
| Building coverage, floor area ratio 建ぺい率・容積率 | | 60% ・ 150% 60%・150% | Time residents 入居時期 | | Immediate available 即入居可 | Land of the right form 土地の権利形態 | | Ownership 所有権 | Structure and method of construction 構造・工法 | | Wooden 2-story 木造2階建 | Use district 用途地域 | | Two low-rise 2種低層 | Overview and notices その他概要・特記事項 | | Facilities: Public Water Supply, This sewage, City gas, Building confirmation number: J12-00607 設備:公営水道、本下水、都市ガス、建築確認番号:J12-00607 | Company profile 会社概要 | | <Mediation> governor of Osaka (2) the first 053,245 No. Century 21 Smart Home Ltd. Yubinbango564-0063 Suita, Osaka Esaka-cho 3-17-9 <仲介>大阪府知事(2)第053245号センチュリー21スマートホーム(株)〒564-0063 大阪府吹田市江坂町3-17-9 |
Floor plan間取り図  33,800,000 yen, 4LDK, Land area 85.49 sq m , Building area 94.16 sq m
3380万円、4LDK、土地面積85.49m2、建物面積94.16m2
Location
|