New Homes » Kansai » Hyogo Prefecture » Kakogawa
 
| | Hyogo Prefecture Kakogawa 兵庫県加古川市 |
| JR Sanyo Line "Tsuchiyama" walk 12 minutes JR山陽本線「土山」歩12分 |
| Japan's first! ZARA HOME, The other two major brands of accessories ・ Model home 3 House public which had been coordinated with goods! Model House 6 House at any time possible tour! Consumption tax 5% target properties! 日本初!ZARA HOME、他2大有名ブランドの小物・雑貨でコーディネートしたモデルホーム3邸公開中!モデルハウス6邸随時見学可能!消費税5%対象物件! |
| ■ Fran Fran model home public and expenses of 1 million yen worth service implementation than New Year! ※ ■ "Choice of 1 million yen equivalent gift! "Ongoing ■ Consumption tax 5% target properties! ■ Convenient and comfortable access of 12 minutes' walk of no slope to the JR of the nearest station ■ On-site park ・ Walk up to elementary school 6 minutes, Child-rearing environment is also good ■ New life begin with a new community of 125 compartment. We receive the voice of peace of mind to have people of the same generation are a lot. ※ Model home three buildings is sale with furniture ■新春よりフランフランモデルホーム公開&諸費用100万円分サービス実施!※■『選べる100万円相当プレゼント!』継続中■消費税5%対象物件!■便利なJRの最寄駅へ坂道なしの徒歩12分の快適アクセス■敷地内公園・小学校まで徒歩6分と、子育て環境も良好■125区画の新しいコミュニティで始める新生活。同世代の人達が沢山いて安心の声をいただいております。※モデルホーム3棟は家具付分譲 |
Local guide map 現地案内図 | | Local guide map 現地案内図 | Features pickup 特徴ピックアップ | | Construction housing performance with evaluation / Design house performance with evaluation / Pre-ground survey / Vibration Control ・ Seismic isolation ・ Earthquake resistant / Parking two Allowed / Immediate Available / LDK18 tatami mats or more / Energy-saving water heaters / lake ・ See the pond / It is close to golf course / Super close / Facing south / System kitchen / Bathroom Dryer / Yang per good / All room storage / Flat to the station / A quiet residential area / Corner lot / Shaping land / Mist sauna / Washbasin with shower / Face-to-face kitchen / Security enhancement / Toilet 2 places / Bathroom 1 tsubo or more / 2-story / 2 or more sides balcony / South balcony / Double-glazing / Zenshitsuminami direction / Otobasu / High speed Internet correspondence / Warm water washing toilet seat / loft / Underfloor Storage / The window in the bathroom / TV monitor interphone / Dish washing dryer / Walk-in closet / Or more ceiling height 2.5m / Water filter / Living stairs / City gas / All rooms are two-sided lighting / roof balcony / Flat terrain / Attic storage / Floor heating / Development subdivision in / terrace 建設住宅性能評価付 /設計住宅性能評価付 /地盤調査済 /制震・免震・耐震 /駐車2台可 /即入居可 /LDK18畳以上 /省エネ給湯器 /湖・池が見える /ゴルフ場が近い /スーパーが近い /南向き /システムキッチン /浴室乾燥機 /陽当り良好 /全居室収納 /駅まで平坦 /閑静な住宅地 /角地 /整形地 /ミストサウナ /シャワー付洗面台 /対面式キッチン /セキュリティ充実 /トイレ2ヶ所 /浴室1坪以上 /2階建 /2面以上バルコニー /南面バルコニー /複層ガラス /全室南向き /オートバス /高速ネット対応 /温水洗浄便座 /ロフト /床下収納 /浴室に窓 /TVモニタ付インターホン /食器洗乾燥機 /ウォークインクロゼット /天井高2.5m以上 /浄水器 /リビング階段 /都市ガス /全室2面採光 /ルーフバルコニー /平坦地 /屋根裏収納 /床暖房 /開発分譲地内 /テラス | Event information イベント情報 | | Model House (please visitors to direct local) schedule / During the public time / 10:00 ~ 18:00 model home public in the first-come-first-served basis application being accepted ※ Application accepted location / Sales center ※ Registration Hours / 10 am ~ 6:00 pm ※ At the time of application the seal and the application fee 100,000 yen, 2011 years ・ Please bring a document to prove the 2012 years of revenue. モデルハウス(直接現地へご来場ください)日程/公開中時間/10:00 ~ 18:00モデルホーム公開中先着順申込受付中※申込受付場所/販売センター※申込受付時間/午前10時 ~ 午後6時※申込の際には印鑑と申込金10万円、2011年分・2012年分の収入を証明する書面をお持ちください。 | Property name 物件名 | | Brands Garden Kakogawa Tsuchiyama ブランズガーデン加古川土山 | Price 価格 | | 24,800,000 yen ~ 35,800,000 yen 2480万円 ~ 3580万円 | Floor plan 間取り | | 3LDK ・ 4LDK 3LDK・4LDK | Units sold 販売戸数 | | 9 units 9戸 | Total units 総戸数 | | 125 units 125戸 | Land area 土地面積 | | 100.34 sq m ~ 133.87 sq m (30.35 tsubo ~ 40.49 tsubo) (measured) 100.34m2 ~ 133.87m2(30.35坪 ~ 40.49坪)(実測) | Building area 建物面積 | | 96.02 sq m ~ 109.66 sq m (29.04 tsubo ~ 33.17 square meters) 96.02m2 ~ 109.66m2(29.04坪 ~ 33.17坪) | Driveway burden-road 私道負担・道路 | | Road: 5.3m ・ 6m width asphalt paving, Driveway burden: No 道路:5.3m・6m幅アスファルト舗装、私道負担:無 | Completion date 完成時期(築年月) | | In late May 2013 2013年5月下旬 | Address 住所 | | Hyogo Prefecture Kakogawa Hiraokachotsuchiyama shaped simultaneous mountain 170-108 兵庫県加古川市平岡町土山字ドウジ山170-108他(地番) | Traffic 交通 | | JR Sanyo Line "Tsuchiyama" walk 12 minutes JR山陽本線「土山」歩12分
| Related links 関連リンク | | [Related Sites of this company] 【この会社の関連サイト】 | Person in charge 担当者より | | [Regarding this property.] Near from Kakogawa bypass Akashi Nishi, Conveniently located in car 【この物件について】加古川バイパス明石西インターから近く、車でも便利な立地 | Contact お問い合せ先 | | "Brands Garden Kakogawa Tsuchiyama" housing Gallery TEL: 0120-956-760 [Toll free] (mobile phone ・ Also available from PHS. ) Please contact the "saw SUUMO (Sumo)" 「ブランズガーデン加古川土山」ハウジングギャラリーTEL:0120-956-760【通話料無料】(携帯電話・PHSからもご利用いただけます。)「SUUMO(スーモ)を見た」と問い合わせください | Sale schedule 販売スケジュール | | Japan's first! ZARA HOME and the other two major brands of accessories ・ Model home 3 House public which had been coordinated with goods! Model House 6 House at any time possible tour! New Year than franc franc model home public and "expenses of 1 million yen worth service" implementation. 日本初!ZARA HOMEとその他2大有名ブランドの小物・雑貨でコーディネートしたモデルホーム3邸公開中!モデルハウス6邸随時見学可能!新春よりフランフランモデルホーム公開&『諸費用100万円分サービス』実施。 | Most price range 最多価格帯 | | 26 million yen (2 units) 2600万円台(2戸) | Expenses 諸費用 | | Other expenses: Secom Security: 3150 yen / Month, Town council fee: 400 yen / Month, CATV flat fee: 3690 yen / Month その他諸費用:セコムセキュリティ:3150円/月、町会費:400円/月、CATV定額料金:3690円/月 | Building coverage, floor area ratio 建ぺい率・容積率 | | Building coverage: 60%, Volume ratio: 200% 建ぺい率:60%、容積率:200% | Time residents 入居時期 | | Immediate available 即入居可 | Land of the right form 土地の権利形態 | | Ownership 所有権 | Structure and method of construction 構造・工法 | | Wooden 2-story (frame construction, Ordinance quasi-fireproof) 木造2階建(枠組壁工法、省令準耐火) | Use district 用途地域 | | Industry 工業 | Land category 地目 | | Residential land 宅地 | Overview and notices その他概要・特記事項 | | Building confirmation number: the first about living H22 認建 No. 01395 (2010 June 9) Other, Development total area: 19800.94 sq m , Car space (all households), Kansai Electric Power Co., Inc., Public Water Supply, This sewage, City gas 建築確認番号:第関住H22認建01395号(平成22年6月9日)他、開発総面積:19800.94m2、カースペース(全戸)、関西電力、公営水道、本下水、都市ガス | Company profile 会社概要 | | <Employer ・ Seller> Minister of Land, Infrastructure and Transport (14) No. 45 Construction license number / Minister of Land, Infrastructure and Transport (JP -22) No. 4857 (Company) Real Estate Association (Corporation) metropolitan area real estate Fair Trade Council member Tokyu Land Corporation Kansai Branch Yubinbango542-0081 Osaka, Chuo-ku, Osaka-shi Minamisenba 4-chome No. 4 No. 3 Shinsaibashi Tokyu building 10 floors <employer ・ Seller> Governor of Hyogo Prefecture (11) No. 5471 (the company), Hyogo Prefecture Building Lots and Buildings Transaction Business Association (Company) National realty business guarantee Association (S) and Kinki district Real Estate Fair Trade Council member Nissei Kosan Co., Ltd. Yubinbango651-0085 Chuo-ku Kobe, Hyogo Prefecture Yawata through 3-chome No. 1, No. 19 Nissei 9 floor building <marketing alliance (agency)> Minister of Land, Infrastructure and Transport (9) No. 2611 (Company) Real Estate Association (S) and the Real Estate Information Network Management Association (Corporation) metropolitan area real estate Fair Trade Council member Tokyu Livable, Inc. Kansai Branch Consulting sales department Yubinbango542-0081, Chuo-ku, Osaka-shi Minamisenba 4-chome No. 4 No. 3 Shinsaibashi Tokyu building 6 floor <marketing alliance (agency)> governor of Osaka (2) No. 52367 (the company), Hyogo Prefecture, realty business (S) and Kinki district Real Estate Fair Trade Council member, Inc. Earth City Yubinbango550-0012 Nishi-ku, Osaka Itachibori 1-chome No. 9 No. 10 HOWA building the fourth floor <事業主・売主>国土交通大臣(14)第45号 建設業許可番号/国土交通大臣(特-22)第4857号(社)不動産協会会員 (公社)首都圏不動産公正取引協議会加盟東急不動産株式会社関西支店 〒542-0081 大阪府大阪市中央区南船場4丁目4番3号 心斎橋東急ビル10階<事業主・売主>兵庫県知事(11)第5471号(社)兵庫県宅地建物取引業協会会員 (社)全国宅地建物取引業保証協会会員 (社)近畿地区不動産公正取引協議会加盟 日精興産株式会社〒651-0085 兵庫県神戸市中央区八幡通3丁目1番19号 日精ビル9階<販売提携(代理)>国土交通大臣(9)第2611号(社)不動産協会会員 (社)不動産流通経営協会会員 (公社)首都圏不動産公正取引協議会加盟東急リバブル株式会社関西支社 コンサルティング営業部〒542-0081 大阪府大阪市中央区南船場4丁目4番3号 心斎橋東急ビル6階<販売提携(代理)>大阪府知事(2)第52367号(社)兵庫県宅地建物取引業協会会員 (社)近畿地区不動産公正取引協議会加盟株式会社アースシティ〒550-0012 大阪市西区立売堀1丁目9番10号 HOWAビル4階 |
Other localその他現地  Japan's first! ZARA HOME of accessories ・ Wrapped in a coordinated sense of liberation in goods, Published in the newly completed model home of the space that has been colored by relaxation of quality in 3 directions land of 40 square meters more than
日本初!ZARA HOMEの小物・雑貨でコーディネートされ解放感に包まれ、上質の寛ぎに彩られた空間を40坪超の3方角地に新しく完成したモデルホームで公開
Livingリビング  Yet quality, Moist and peace and give us a calm south-facing bright LD space. (November 2013) Shooting
上質でありながら、しっとりとした安らぎと落ち着きを与えてくれる南向きの明るいLDスペース。(2013年11月)撮影
 LIVING IN stairs always match the face when the child's come back. It seems to me growing up to obedient child! (November 2013) Shooting
子供さんが帰ってくると必ず顔を合わすリビングイン階段。素直な子に育ってくれそうですね!(2013年11月)撮影
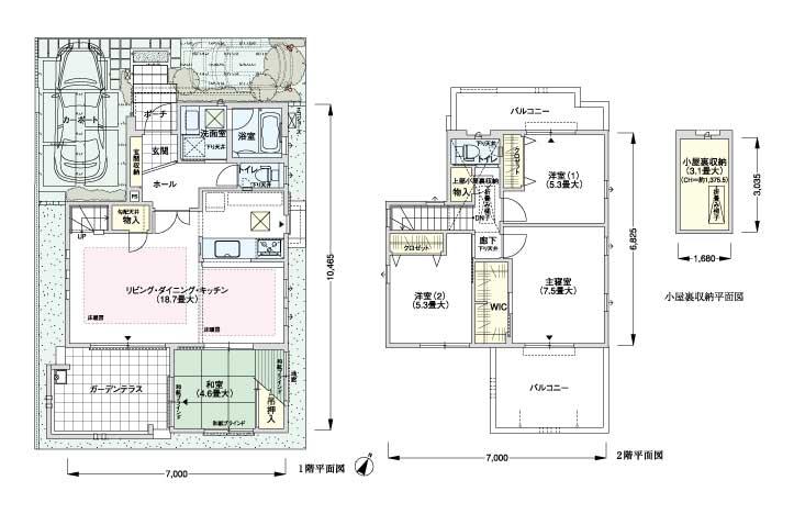
Balconyバルコニー  Garden terrace of the popular with visitors. A little luxurious private space, which also serves as a blindfold from the front road. (November 2013) Shooting
来場者にも好評のガーデンテラス。前面道路からの目隠しも兼ねるちょっと贅沢なプライベートスペース。(2013年11月)撮影
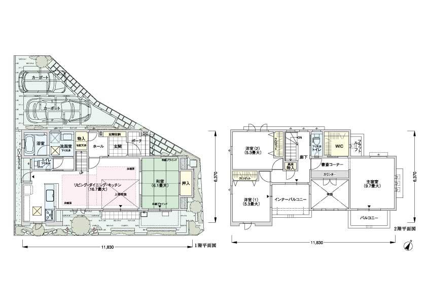
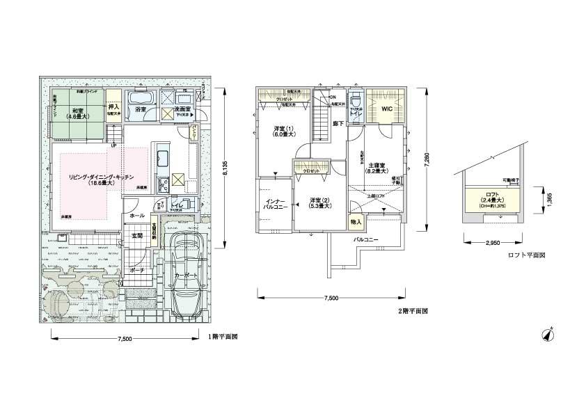
Floor plan間取り図  (6-16 No. land), Price 27 million yen, 4LDK, Land area 108.9 sq m , Building area 102.67 sq m
(6-16号地)、価格2700万円、4LDK、土地面積108.9m2、建物面積102.67m2
Local appearance photo現地外観写真  Dean & DeLuca accessories ・ 6-12 No. land that was coordinated with miscellaneous goods (May 2013) Shooting
ディーン&デルーカの小物・雑貨でコーディネートした6-12号地(2013年5月)撮影
Livingリビング  It is very safe because Mimamoreru your child to play in the living room from his wife to cook! (November 2013) Shooting
料理をする奥様からリビングで遊ぶお子さんを見守れるので凄く安心ですね!(2013年11月)撮影
Bathroom浴室  Oval tub women happy sitz bath can be the, All houses are standard equipment. (August 2013 shooting)
女性に嬉しい半身浴が出来るオーバル浴槽は、全戸標準装備です。(2013年8月撮影)
Kitchenキッチン  Open kitchen with a feeling of opening (November 2013) Shooting
開放感のあるオープンキッチン(2013年11月)撮影
Construction ・ Construction method ・ specification構造・工法・仕様  In order to ensure the durability over a long period of time, Implementation elaborate ground survey. If it is determined that soft ground is performed ground improvement work tailored to geological (reference photograph)
長期に渡って耐久性を確保するために、入念な地盤調査を実施。軟弱な地盤と判定された場合には地質に合わせた地盤改良工事を実施しています(参考写真)
Other Equipmentその他設備  Set up a surveillance camera in the Town of the doorway three places and the town in the park (simultaneous mountain amusement), Record images of people and vehicles into and out of the 24 hours Town. It exerts a threatening effect on the suspicious person of intrusion. Should in each dwelling unit, Automatically send a signal to the control center of Secom If there is a problem. Instructs the express from the control center to the depot (emergency start sites), Telephone contact to confirm to each dwelling unit. 365 days to provide the peace of mind of living (Sekomurogo)
タウンの出入口3ヶ所とタウン内公園(ドウジ山遊園)に監視カメラを設置、24時間タウンに出入りする人や車の画像を録画。不審者の侵入に対して威嚇効果を発揮します。各住戸で万一、異常が発生するとセコムのコントロールセンターに自動的に信号を送信。コントロールセンターからデポ(緊急発進拠点)へ急行を指示すると共に、各住戸に確認を電話連絡。365日暮らしの安心を提供します(セコムロゴ)
Other Environmental Photoその他環境写真  JR Sanyo Line "Tsuchiyama" station walk 12 minutes flat road. 29 minutes and access to Sannomiya from JR tsuchiyama station is good
JR山陽本線「土山」駅 徒歩12分フラットな道。JR土山駅から三ノ宮へ29分とアクセスは良好
Sale already cityscape photo分譲済街並み写真  Colorful green grass shine on the appearance of the white keynote (July 2012) shooting
色鮮やかな緑の芝が白基調の外観に映える(2012年7月)撮影
Model house photoモデルハウス写真  Living and a sense of unity there is calm some Japanese-style relaxation of space (11 May 2013) Shooting
リビングと一体感ある和みある和室は寛ぎのスペース(2013年11月)撮影
 The entire compartment Figure
全体区画図
Local guide map現地案内図  In the case of car ... Kakogawa bypass southwest ・ Arriving from tsuchiyama station direction is, Straight across the signal under the bypass overpass in Midorigaoka south intersection, To the left side of the local entrance. Arriving from Kakogawa bypass northeast, Turn left at the local billboard, To the sales center
車の場合…加古川バイパス南西・土山駅方面からお越しの方は、緑ヶ丘南交差点でバイパス高架下の信号を渡って直進、左側の現地入口へ。加古川バイパス北東からお越しの方は、現地看板を左折し、販売センターへ
Access view交通アクセス図  Access view. "Sannomiya" 29 minutes to the station, 52 minutes until the "Osaka" station, "Kakogawa" the station to better access to the 7 minutes and east-west
交通アクセス図。「三ノ宮」駅まで29分、「大阪」駅まで52分、「加古川」駅まで7分と東西へのアクセスも良好
Other localその他現地  Already subdivision skyline photo. Glad location is in child-rearing family (August 2012) shooting
既分譲地の街並み写真。子育てファミリーには嬉しい立地(2012年8月)撮影
Otherその他  The entire compartment Figure
全体区画図
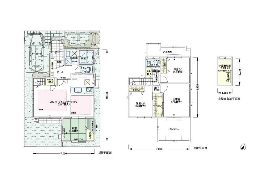
Floor plan間取り図  (6-12 No. land), Price 29,700,000 yen, 4LDK, Land area 108.87 sq m , Building area 101.5 sq m
(6-12号地)、価格2970万円、4LDK、土地面積108.87m2、建物面積101.5m2
Local appearance photo現地外観写真  8-7 No. land appearance of. (November 2013) Shooting
8-7号地の外観。(2013年11月)撮影
Livingリビング  Healing space wrapped in soft light. (November 2013) Shooting
柔らかな光に包まれた癒しの空間。(2013年11月)撮影
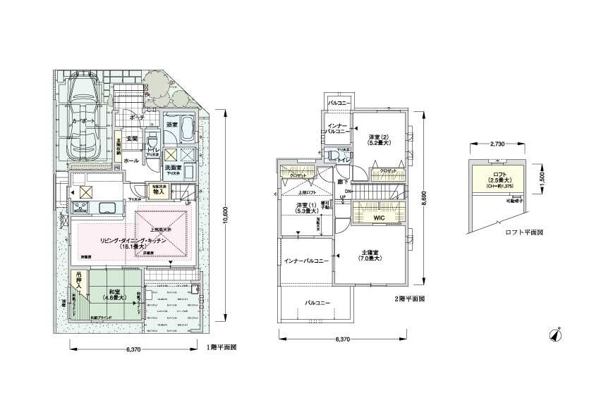
Floor plan間取り図  Japan's first!
日本初!
 (3-3 No. land), Price 31,300,000 yen, 4LDK, Land area 113.16 sq m , Building area 100.19 sq m
(3-3号地)、価格3130万円、4LDK、土地面積113.16m2、建物面積100.19m2
 Japan's first!
日本初!
 Japan's first!
日本初!
 Japan's first!
日本初!
 Japan's first!
日本初!
 Japan's first!
日本初!
Kindergarten ・ Nursery幼稚園・保育園  Municipal Hiraoka 290m 4-minute walk to the east kindergarten
市立平岡東幼稚園まで290m 徒歩4分
Primary school小学校  Municipal Hiraoka 480m 6-minute walk to the east, elementary school
市立平岡東小学校まで480m 徒歩6分
Other Equipmentその他設備  As part of Secom Town security, Security guards will watch over the safety of the security patrol to the city in the town once a day. By the synergistic effect of surveillance cameras and security guards patrol, Children also with confidence you can play with the town in the park (reference photograph)
セコムタウンセキュリティの一環として、警備員が毎日1回タウン内を巡回警備し街の安全を見守ります。監視カメラと警備員巡回の相乗効果により、子どもたちも安心してタウン内公園で遊ぶことができます(参考写真)
 Press the touch button on the front door, Only you can open and close both the top and bottom of the key holding the key card. Without the effort of each time locking and unlocking put the key in the keyhole, Speedy to unlocking. Key card is also features easy to carry and handle (reference photograph)
玄関ドアのタッチボタンを押して、カードキーをかざすだけで上下両方のカギの開け閉めが可能。いちいち鍵穴に鍵を入れて施解錠する手間がなく、スピーディに施解錠。カードキーは持ち運びや扱いがしやすいのも特徴です(参考写真)
 Luxury is easier to have clean "artificial marble countertops", Water purifier of the integrated "shower faucet", Back to easy to take out can be stored a lot "slide housed", "Dishwasher" in the built-in type, Cleaning can be comfortably "hyper glass coat stove" and as "enamel kitchen Panel", Cooking is functionally, Cleanup is easier, YOUR system kitchen thought (already sale)
高級感がありお手入れが楽な「人造大理石カウンタートップ」、浄水器一体型の「シャワー水栓」、奥までたくさん収納でき取りだしやすい「スライド収納」、ビルトインタイプの「食器洗い乾燥機」、掃除が楽にできる「ハイパーガラスコートコンロ」や「ホーローキッチンパネル」など、調理は機能的に、後片付けはラクに、を考えたシステムキッチンです(分譲済み)
 Economic can save the waste of reheating hot water is less likely to cool "Thermo bus write", To reduce the coldness of the floor "thermo floor", Drainage is good quick dry "mosaic pattern", Usability there is a good room "bench with tub", Bathroom of heating and ventilation, Laundry drying can also be a "bathroom heater dryer" is the bathroom of a high specification with a standard (illustration)
お湯が冷めにくく追い焚きの無駄を節約できる経済的な「サーモバスライト」、床の冷たさを軽減する「サーモフロア」、水はけが良く素早く乾燥する「モザイクパターン」、使い勝手が良くゆとりある「ベンチ付き浴槽」、浴室の暖房や換気、洗濯物乾燥もできる「浴室暖房乾燥機」を標準で備えた高仕様のバスルームです(説明図)
 "Hyper Kira Mick" antibacterial specification, Stain-resistant marked with "pro-guard", Adoption of our easy-to-clean dirt cut shape the "Guru Pika toilet bowl.". further, High water-saving effect, Equipped with a friendly economic environment in the "super-water-saving eco5" feature. On top cleaning is easy, 1 ・ 2 Kaitomo is sanitary-to-use shower toilet (pre-sale)
抗菌仕様の「ハイパーキラミック」、汚れが付きにくい「プロガード」、汚れカット形状でお掃除がしやすい「ぐるピカ便器」を採用。さらに、節水効果が高く、環境に優しく経済的な「超節水eco5」機能を搭載。お掃除がラクなうえに、1・2階共に衛生的に使えるシャワートイレです(分譲済み)
Junior high school中学校  Municipal Hiraoka up to junior high school 2600m
市立平岡中学校まで2600m
Supermarketスーパー  760m walk 10 minutes to the ion Tsuchiyama shop
イオン土山店まで760m 徒歩10分
Park公園  Encounter of road Harima-cho, until the Hundred Flowers Garden 850m walk 11 minutes
であいのみち播磨町百花園まで850m 徒歩11分
Hospital病院  Akashi 920m walk 12 minutes to the Tongren Hospital
明石同仁病院まで920m 徒歩12分
Post office郵便局  Kakogawa Kitabatake 340m a 5-minute walk from the post office
加古川北畑郵便局まで340m 徒歩5分
Kindergarten ・ Nursery幼稚園・保育園  Sekirei to nursery 480m 6-minute walk
せきれい保育園まで480m 徒歩6分
Location
|