New Homes » Kansai » Hyogo Prefecture » Kakogawa


Hyogo Prefecture Kakogawa
JR Sanyo Line "Hoden" walk 9 minutes
☆ There is solar power! ☆ A 9-minute walk to the nearest station! ☆ Neighborhood facilities enhancement!
~ Neighborhood facilities ~ ◆ ion ・ About 980m to eye Mall Takasago shopping center (walk about 13 minutes) ◆ Kirindo Takasago Yoneda store up to about 840m (walk about 13 minutes) ◆ Morris Takasago Yoneda store up to about 950m (walk about 12 minutes) ◆ TSUTAYA Takasago Yoneda store up to about 980m (walk about 13 minutes) ◆ To Kawanishi Elementary School about 820m (walk about 11 minutes) ◆ Kanki until junior high school about 1630m (walk about 21 minutes)
Features pickup
Solar power system / Parking two Allowed / System kitchen / All room storage / Flat to the station / LDK15 tatami mats or more / Japanese-style room / Face-to-face kitchen / 2-story / 2 or more sides balcony / The window in the bathroom / All room 6 tatami mats or more / City gas / All rooms are two-sided lighting / Flat terrain
Price
22,800,000 yen
Floor plan
4LDK
Units sold
1 units
Total units
3 units
Land area
123.03 sq m (registration)
Building area
95.17 sq m (measured)
Driveway burden-road
Nothing, East 3.4m width
Completion date
September 2013
Address
Hyogo Prefecture Kakogawa Yonedachohiratsu
Traffic
JR Sanyo Line "Hoden" walk 9 minutes
Related links
[Related Sites of this company]
Person in charge
Rep Maekawa
Contact
Maekawa real estate TEL: 0800-805-5750 [Toll free] mobile phone ・ Also available from PHS
Caller ID is not notified
Please contact the "saw SUUMO (Sumo)"
If it does not lead, If the real estate company
Building coverage, floor area ratio
60% ・ 200%
Land of the right form
Ownership
Structure and method of construction
Wooden 2-story (framing method)
Construction
First, Building Products Co., Ltd.
Use district
One dwelling
Other limitations
Set-back: already
Overview and notices
Contact: Maekawa, Building confirmation number: Jukenkita Kako No. 25005, Parking: Car Port
Company profile
<Mediation> Governor of Hyogo Prefecture (12) Article 005287 No. Maekawa real estate Yubinbango675-0101 Hyogo Prefecture Kakogawa Hiraokachoshinzaike 2-264-15


Local appearance photo

Local appearance photo.  ◆ Exterior photos (12 May 2013) Shooting
◆ Exterior photos (12 May 2013) Shooting

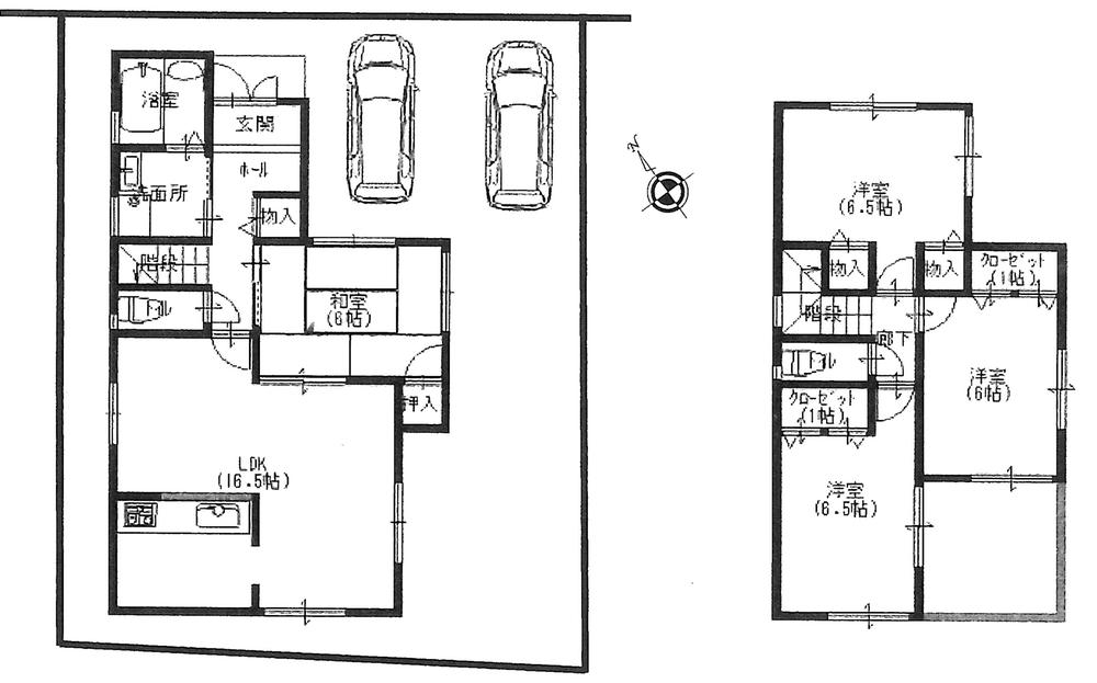
Floor plan

Floor plan. 22,800,000 yen, 4LDK, Land area 123.03 sq m , Building area 95.17 sq m
22,800,000 yen, 4LDK, Land area 123.03 sq m , Building area 95.17 sq m

Bathroom

Bathroom.  ◆ Bathroom (12 May 2013) Shooting
◆ Bathroom (12 May 2013) Shooting

Living

Living.  ◆ LDK (12 May 2013) Shooting
◆ LDK (12 May 2013) Shooting

Kitchen

Kitchen.  ◆ Kitchen (12 May 2013) Shooting
◆ Kitchen (12 May 2013) Shooting

Non-living room

Non-living room.  ◆ Second floor east side Western-style (12 May 2013) Shooting
◆ Second floor east side Western-style (12 May 2013) Shooting

Entrance

Entrance.  ◆ Entrance (December 2013) Shooting
◆ Entrance (December 2013) Shooting

Wash basin, toilet

Wash basin, toilet.  ◆ Wash basin (12 May 2013) Shooting
◆ Wash basin (12 May 2013) Shooting

Toilet

Toilet.  ◆ Toilet (December 2013) Shooting
◆ Toilet (December 2013) Shooting

Non-living room

Non-living room.  ◆ Second floor south Western-style (12 May 2013) Shooting
◆ Second floor south Western-style (12 May 2013) Shooting

Non-living room.  ◆ Second floor west Western-style (12 May 2013) Shooting
◆ Second floor west Western-style (12 May 2013) Shooting



Location