New Homes » Kansai » Hyogo Prefecture » Kakogawa
 
| | Hyogo Prefecture Kakogawa 兵庫県加古川市 |
| JR Sanyo Line "Higashikakogawa" walk 13 minutes JR山陽本線「東加古川」歩13分 |
| Measures to conserve energy, Corresponding to the flat-35S, Pre-ground survey, Parking two Allowed, 2 along the line more accessible, Super close, Facing south, System kitchen, Bathroom Dryer, Yang per good, All room storage, South road 省エネルギー対策、フラット35Sに対応、地盤調査済、駐車2台可、2沿線以上利用可、スーパーが近い、南向き、システムキッチン、浴室乾燥機、陽当り良好、全居室収納、南側道路 |
| Measures to conserve energy, Corresponding to the flat-35S, Pre-ground survey, Parking two Allowed, 2 along the line more accessible, Super close, Facing south, System kitchen, Bathroom Dryer, Yang per good, All room storage, Siemens south road, A quiet residential area, LDK15 tatami mats or more, Around traffic fewerese-style room, garden, Washbasin with shower, Wide balcony, Barrier-free, Toilet 2 places, Bathroom 1 tsubo or more, 2-story, South balcony, Double-glazing, Otobasu, Warm water washing toilet seat, Underfloor Storage, The window in the bathroom, TV monitor interphone, Leafy residential area, Ventilation good, Walk-in closet, All room 6 tatami mats or more, Water filter, City gas, Flat terrain, All rooms facing southeast 省エネルギー対策、フラット35Sに対応、地盤調査済、駐車2台可、2沿線以上利用可、スーパーが近い、南向き、システムキッチン、浴室乾燥機、陽当り良好、全居室収納、南側道路面す、閑静な住宅地、LDK15畳以上、周辺交通量少なめ、和室、庭、シャワー付洗面台、ワイドバルコニー、バリアフリー、トイレ2ヶ所、浴室1坪以上、2階建、南面バルコニー、複層ガラス、オートバス、温水洗浄便座、床下収納、浴室に窓、TVモニタ付インターホン、緑豊かな住宅地、通風良好、ウォークインクロゼット、全居室6畳以上、浄水器、都市ガス、平坦地、全室東南向き |
Features pickup 特徴ピックアップ | | Measures to conserve energy / Corresponding to the flat-35S / Pre-ground survey / Parking two Allowed / 2 along the line more accessible / Super close / Facing south / System kitchen / Bathroom Dryer / Yang per good / All room storage / Siemens south road / A quiet residential area / LDK15 tatami mats or more / Around traffic fewer / Japanese-style room / garden / Washbasin with shower / Wide balcony / Barrier-free / Toilet 2 places / Bathroom 1 tsubo or more / 2-story / South balcony / Double-glazing / Otobasu / Warm water washing toilet seat / Underfloor Storage / The window in the bathroom / TV monitor interphone / Leafy residential area / Ventilation good / Walk-in closet / All room 6 tatami mats or more / Water filter / City gas / Flat terrain / All rooms facing southeast 省エネルギー対策 /フラット35Sに対応 /地盤調査済 /駐車2台可 /2沿線以上利用可 /スーパーが近い /南向き /システムキッチン /浴室乾燥機 /陽当り良好 /全居室収納 /南側道路面す /閑静な住宅地 /LDK15畳以上 /周辺交通量少なめ /和室 /庭 /シャワー付洗面台 /ワイドバルコニー /バリアフリー /トイレ2ヶ所 /浴室1坪以上 /2階建 /南面バルコニー /複層ガラス /オートバス /温水洗浄便座 /床下収納 /浴室に窓 /TVモニタ付インターホン /緑豊かな住宅地 /通風良好 /ウォークインクロゼット /全居室6畳以上 /浄水器 /都市ガス /平坦地 /全室東南向き | Price 価格 | | 23,900,000 yen 2390万円 | Floor plan 間取り | | 4LDK + S (storeroom) 4LDK+S(納戸) | Units sold 販売戸数 | | 1 units 1戸 | Total units 総戸数 | | 2 units 2戸 | Land area 土地面積 | | 130.43 sq m (registration) 130.43m2(登記) | Building area 建物面積 | | 98.82 sq m (measured) 98.82m2(実測) | Driveway burden-road 私道負担・道路 | | Nothing, South 4.2m width 無、南4.2m幅 | Completion date 完成時期(築年月) | | January 2014 2014年1月 | Address 住所 | | Hyogo Prefecture Kakogawa Noguchichofutaya 兵庫県加古川市野口町二屋 | Traffic 交通 | | JR Sanyo Line "Higashikakogawa" walk 13 minutes Sanyo Electric Railway Main Line "Beppu" walk 29 minutes Sanyo Electric Railway Main Line "Hamanomiya" walk 39 minutes JR山陽本線「東加古川」歩13分 山陽電鉄本線「別府」歩29分 山陽電鉄本線「浜の宮」歩39分
| Related links 関連リンク | | [Related Sites of this company] 【この会社の関連サイト】 | Contact お問い合せ先 | | True English Building Products TEL: 078-942-2692 Please inquire as "saw SUUMO (Sumo)" 真英住建TEL:078-942-2692「SUUMO(スーモ)を見た」と問い合わせください | Building coverage, floor area ratio 建ぺい率・容積率 | | 60% ・ 200% 60%・200% | Time residents 入居時期 | | 2 months after the contract 契約後2ヶ月 | Land of the right form 土地の権利形態 | | Ownership 所有権 | Structure and method of construction 構造・工法 | | Wooden 2-story (framing method) 木造2階建(軸組工法) | Use district 用途地域 | | One middle and high 1種中高 | Overview and notices その他概要・特記事項 | | Facilities: Public Water Supply, This sewage, City gas, Building confirmation number: Jukenkita Kako No. 25031, Parking: car space 設備:公営水道、本下水、都市ガス、建築確認番号:住建北加古第25031号、駐車場:カースペース | Company profile 会社概要 | | <Mediation> Governor of Hyogo Prefecture (10) Article 007642 No. true British Building Products Yubinbango675-0160 Nozoe west Hyogo Prefecture Kako-gun Harima-cho 3-18-7 <仲介>兵庫県知事(10)第007642号真英住建〒675-0160 兵庫県加古郡播磨町西野添3-18-7 |
 Rendering (appearance)
完成予想図(外観)
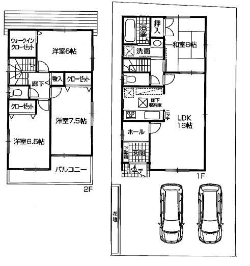
Floor plan間取り図  23,900,000 yen, 4LDK + S (storeroom), Land area 130.43 sq m , Building area 98.82 sq m
2390万円、4LDK+S(納戸)、土地面積130.43m2、建物面積98.82m2
 Kitchen
キッチン
 Living
リビング
 Bathroom
浴室
 Non-living room
リビング以外の居室
Location
|