New Homes » Kansai » Hyogo Prefecture » Kakogawa
 
| | Hyogo Prefecture Kakogawa 兵庫県加古川市 |
| JR Sanyo Line "Kakogawa" bus 11 minutes Nagasuna east exit walk 8 minutes JR山陽本線「加古川」バス11分長砂東口歩8分 |
| January 4 (Saturday) ・ 5 (Sunday) open house held 13 pm ~ 16 pm, Please come directly to the local. For further information, please contact Co., Ltd. Date new real estate sales → TEL078-939-2636 1月4日(土)・5日(日)オープンハウス開催13時 ~ 16時、直接現地へお越し下さい。お問い合わせは株式会社日新不動産販売まで→TEL078-939-2636 |
| ■ With solar power newly built single-family also has two buildings (8.9 Building) ■ Sunny ・ Is a convenient living environment of 10 minutes by bus to the station. ■ Inquiry ・ To customers who I am allowed to local guidance [Library card 1000 yen] Present! ! ■ If inquiry until Ltd. Date new real estate sales → TEL078-939-2636 ======================= Kobe Chamber of Commerce and Industry member of the day new real estate sales [Mortgage also worry] Including the director of the original bank employee (about 30 years service), Public Interest Incorporated group corporation In three mortgage advisor of the Japan Association of Realtors certified one set one set of customers at internal meetings anywhere in the [Housing loan] But we have established a system to discuss whether the No. 1 best of. ============= ■太陽光発電付き新築戸建も2棟あり(8.9号棟)■日当たり良好・駅までバス10分の便利な住環境です。■問い合わせ・現地ご案内させていただいたお客様に【図書カード1000円分】プレゼント!!■お問い合わせは株式会社日新不動産販売まで→TEL078-939-2636=======================神戸商工会議所会員の日新不動産販売なら【住宅ローンも心配無用】元銀行員(約30年勤務)の所長を含め、公益社団法人 全日本不動産協会認定の住宅ローンアドバイザー3名で1組1組のお客様を社内会議にてどこの【住宅ローン】が1番ベストなのか話し合うシステムを設けています。============= |
Features pickup 特徴ピックアップ | | Measures to conserve energy / Corresponding to the flat-35S / Parking two Allowed / Immediate Available / System kitchen / Bathroom Dryer / Yang per good / All room storage / A quiet residential area / LDK15 tatami mats or more / Around traffic fewer / Or more before road 6m / Japanese-style room / Washbasin with shower / Face-to-face kitchen / Wide balcony / Barrier-free / Toilet 2 places / Bathroom 1 tsubo or more / 2-story / South balcony / Double-glazing / Otobasu / Warm water washing toilet seat / Underfloor Storage / The window in the bathroom / TV monitor interphone / Leafy residential area / Ventilation good / City gas / Maintained sidewalk 省エネルギー対策 /フラット35Sに対応 /駐車2台可 /即入居可 /システムキッチン /浴室乾燥機 /陽当り良好 /全居室収納 /閑静な住宅地 /LDK15畳以上 /周辺交通量少なめ /前道6m以上 /和室 /シャワー付洗面台 /対面式キッチン /ワイドバルコニー /バリアフリー /トイレ2ヶ所 /浴室1坪以上 /2階建 /南面バルコニー /複層ガラス /オートバス /温水洗浄便座 /床下収納 /浴室に窓 /TVモニタ付インターホン /緑豊かな住宅地 /通風良好 /都市ガス /整備された歩道 | Event information イベント情報 | | Open House (Please visitors to direct local) schedule / January 4 (Saturday) ・ January 5 (Sunday) time / 13:00 ~ 16:00 Open House held on January 4 (Saturday) ・ It will be held on January 5, the (Sun) Open House! ! <From 13:00 to 16:00> Customers do not fit your time, Please in advance to saying! ! ! We look forward to seeing you in your family. -------------------------------------------------------------- オープンハウス(直接現地へご来場ください)日程/1月4日(土曜日)・1月5日(日曜日)時間/13:00 ~ 16:00オープンハウス開催 1月4日(土)・1月5日(日)オープンハウスを開催いたします!! <13時から16時まで> お時間の合わないお客様は、事前におっしゃってください!!! ご家族でのご来場を心よりお待ち致しております。-------------------------------------------------------------- | Price 価格 | | 23,300,000 yen 2330万円 | Floor plan 間取り | | 4LDK 4LDK | Units sold 販売戸数 | | 1 units 1戸 | Total units 総戸数 | | 9 units 9戸 | Land area 土地面積 | | 137.95 sq m (41.72 tsubo) (Registration) 137.95m2(41.72坪)(登記) | Building area 建物面積 | | 93.55 sq m (28.29 tsubo) (Registration) 93.55m2(28.29坪)(登記) | Driveway burden-road 私道負担・道路 | | Nothing 無 | Completion date 完成時期(築年月) | | October 2013 2013年10月 | Address 住所 | | Hyogo Prefecture Kakogawa Noguchichonagasuna 兵庫県加古川市野口町長砂 | Traffic 交通 | | JR Sanyo Line "Kakogawa" bus 11 minutes Nagasuna east exit walk 8 minutes JR山陽本線「加古川」バス11分長砂東口歩8分
| Related links 関連リンク | | [Related Sites of this company] 【この会社の関連サイト】 | Person in charge 担当者より | | [Regarding this property.] Please leave it to the new real estate sales the day of the Kobe Chamber of Commerce and Industry member. 【この物件について】神戸商工会議所会員の日新不動産販売にお任せください。 | Contact お問い合せ先 | | Ltd. Nissin real estate sales TEL: 0800-602-6796 [Toll free] mobile phone ・ Also available from PHS Caller ID is not notified Please contact the "saw SUUMO (Sumo)" If it does not lead, If the real estate company (株)日新不動産販売TEL:0800-602-6796【通話料無料】携帯電話・PHSからもご利用いただけます 発信者番号は通知されません 「SUUMO(スーモ)を見た」と問い合わせください つながらない方、不動産会社の方は
| Building coverage, floor area ratio 建ぺい率・容積率 | | Fifty percent ・ Hundred percent 50%・100% | Time residents 入居時期 | | Immediate available 即入居可 | Land of the right form 土地の権利形態 | | Ownership 所有権 | Structure and method of construction 構造・工法 | | Wooden 2-story 木造2階建 | Use district 用途地域 | | One low-rise 1種低層 | Overview and notices その他概要・特記事項 | | Facilities: Public Water Supply, This sewage, City gas, Parking: car space 設備:公営水道、本下水、都市ガス、駐車場:カースペース | Company profile 会社概要 | | <Mediation> Governor of Hyogo Prefecture (1) No. 401409 (Ltd.) Nissin real estate sales Yubinbango673-0042 Akashi, Hyogo Prefecture Higashifujie 1-16-1 <仲介>兵庫県知事(1)第401409号(株)日新不動産販売〒673-0042 兵庫県明石市東藤江1-16-1 |
Otherその他  New real estate sales the day of the Kobe Chamber of Commerce and Industry member of the "kindness" ・ "Polite" ・ And "best" support feelings and in the "Purotamashi" of "gratitude". For further information, please contact Co., Ltd. Date new real estate sales → TEL078-939-2636
神戸商工会議所会員の日新不動産販売は「親切」・「丁寧」・「感謝」の気持ちと「プロ魂」で「全力」サポートします。お問い合わせは株式会社日新不動産販売まで→TEL078-939-2636
Local appearance photo現地外観写真  Local (11 May 2013) Shooting
現地(2013年11月)撮影
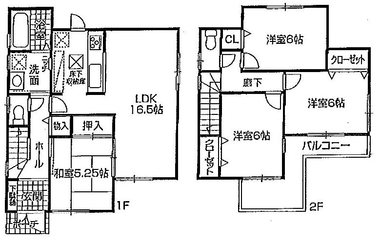
Floor plan間取り図  23,300,000 yen, 4LDK, Land area 137.95 sq m , Building area 93.55 sq m
2330万円、4LDK、土地面積137.95m2、建物面積93.55m2
Local appearance photo現地外観写真  Local (11 May 2013) Shooting
現地(2013年11月)撮影
 Living
リビング
 Bathroom
浴室
 Kitchen
キッチン
 Non-living room
リビング以外の居室
 Entrance
玄関
 Wash basin, toilet
洗面台・洗面所
Local photos, including front road前面道路含む現地写真  Local (11 May 2013) Shooting
現地(2013年11月)撮影
Station駅  JR 3000m to Kakogawa Station
JR 加古川駅まで3000m
 View photos from the dwelling unit
住戸からの眺望写真
 Living
リビング
 Bathroom
浴室
 Kitchen
キッチン
 Non-living room
リビング以外の居室
 Wash basin, toilet
洗面台・洗面所
 View photos from the dwelling unit
住戸からの眺望写真
 Non-living room
リビング以外の居室
 Non-living room
リビング以外の居室
 Non-living room
リビング以外の居室
Presentプレゼント ![Present. Inquiry from Sumo ・ To customers who I am allowed to local guidance, [1000 yen worth of books card] Get the! ! When the guide, Please tell the "saw the Sumo" to the person in charge.](/images/hyogo/kakogawa/ac700a0026.jpg) Inquiry from Sumo ・ To customers who I am allowed to local guidance, [1000 yen worth of books card] Get the! ! When the guide, Please tell the "saw the Sumo" to the person in charge.
スーモから問い合わせ・現地ご案内させていただいたお客様に、【1000円分の図書カード】をプレゼント!!案内の際、担当者に『スーモを見た』とお伝え下さい。
Location
|