New Homes » Kansai » Hyogo Prefecture » Kakogawa
 
| | Hyogo Prefecture Kakogawa 兵庫県加古川市 |
| JR Sanyo Line "Kakogawa" walk 19 minutes JR山陽本線「加古川」歩19分 |
| Kakogawa Station walk 19 minutes! ! Hommock elementary school About 400m, Hommock junior high school About 790m, Cope About 800m, convenience store About 890m 加古川駅徒歩19分!! 氷丘小学校 約400m、氷丘中学校 約790m、コープ 約800m、コンビニ 約890m |
| ■ With Exterior construction ■ Color intercom ■ Underfloor Storage ■ Shampoo dresser ■ 10-year warranty ■ Water purifier shower head kitchen ■ Pair glass ■ Security card key ■ Fully automatic hot water clad function ※ Detailed materials for this property, Also collectively be able to send listing Nearby! Please feel free to contact us ■外構工事付き ■カラーインターホン ■床下収納 ■シャンプードレッサー ■10年保証 ■浄水器付きシャワーヘッド キッチン ■ペアガラス ■防犯カードキー ■ 全自動お湯張り機能※この物件の詳しい資料、この付近の物件情報もまとめてお送りする事ができます!お気軽にお問い合わせ下さい |
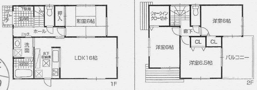
Features pickup 特徴ピックアップ | | Parking two Allowed / System kitchen / Bathroom Dryer / All room storage / LDK15 tatami mats or more / Japanese-style room / Bathroom 1 tsubo or more / Double-glazing / Otobasu / Underfloor Storage / The window in the bathroom / TV monitor interphone / Walk-in closet 駐車2台可 /システムキッチン /浴室乾燥機 /全居室収納 /LDK15畳以上 /和室 /浴室1坪以上 /複層ガラス /オートバス /床下収納 /浴室に窓 /TVモニタ付インターホン /ウォークインクロゼット | Event information イベント情報 | | ■ ■ Mortgage Consultation Notice ■ ■ In the harbor, Building Products, We have carried out at any time mortgage Consultation. You can estimate the properties that you can buy from the annual income, Loan estimates the property to be worried about, Any cost that take the time to actually buy real estate? , Specific financial planning simulation also Please leave. Such as anxiety and questions in the case of real estate purchase, In the words of our professional staff is also easy to understand by the general public, Carefully eliminated ・ We support. First, Please feel free to contact us. ⇒ Minato, Building Products 079-456-3710 ■■住宅ローン相談会のお知らせ■■みなと住建では、随時住宅ローン相談会を実施しております。年収から買える物件を試算したり、気になる物件のローン試算、実際不動産を購入する際にどんな費用がかかるの?などを含め、具体的な資金計画シュミレーションもお任せ下さい。不動産ご購入の際の不安や疑問点などは、弊社の専門スタッフが一般の方でもわかりやすい言葉で、丁寧に解消・サポートいたします。まずは、お気軽にお問い合わせ下さい。⇒みなと住建 079-456-3710 | Price 価格 | | 22,200,000 yen ・ 23,900,000 yen 2220万円・2390万円 | Floor plan 間取り | | 4LDK 4LDK | Units sold 販売戸数 | | 2 units 2戸 | Total units 総戸数 | | 2 units 2戸 | Land area 土地面積 | | 143.06 sq m ・ 143.22 sq m 143.06m2・143.22m2 | Building area 建物面積 | | 96.39 sq m ・ 98.82 sq m 96.39m2・98.82m2 | Completion date 完成時期(築年月) | | February 2014 schedule 2014年2月予定 | Address 住所 | | Hyogo Prefecture Kakogawa Kakogawachonakatsu 兵庫県加古川市加古川町中津 | Traffic 交通 | | JR Sanyo Line "Kakogawa" walk 19 minutes JR Sanyo Line "Kakogawa" bus 7 minutes Nakatsu walk 5 minutes JR山陽本線「加古川」歩19分 JR山陽本線「加古川」バス7分中津歩5分
| Person in charge 担当者より | | Rep Maeda Ryuta 担当者前田 龍太 | Contact お問い合せ先 | | (Ltd.) Minato, Building Products TEL: 0800-808-7231 [Toll free] mobile phone ・ Also available from PHS Caller ID is not notified Please contact the "saw SUUMO (Sumo)" If it does not lead, If the real estate company (株)みなと住建TEL:0800-808-7231【通話料無料】携帯電話・PHSからもご利用いただけます 発信者番号は通知されません 「SUUMO(スーモ)を見た」と問い合わせください つながらない方、不動産会社の方は
| Building coverage, floor area ratio 建ぺい率・容積率 | | Kenpei rate: 50% ・ Hundred percent 建ペい率:50%・100% | Time residents 入居時期 | | Consultation 相談 | Land of the right form 土地の権利形態 | | Ownership 所有権 | Use district 用途地域 | | One low-rise 1種低層 | Overview and notices その他概要・特記事項 | | Contact: Maeda Ryuta, Building confirmation number: Jukenkita Kako No. 25035 担当者:前田 龍太、建築確認番号:住建北加古第25035号 | Company profile 会社概要 | | <Mediation> Governor of Hyogo Prefecture (1) No. 401342 (Ltd.) Minato, Building Products Yubinbango675-0101 Hyogo Prefecture Kakogawa Hiraokachoshinzaike 471-1 <仲介>兵庫県知事(1)第401342号(株)みなと住建〒675-0101 兵庫県加古川市平岡町新在家471-1 |
Same specifications photos (appearance)同仕様写真(外観)  Same specifications appearance
同仕様外観
Same specifications photo (bathroom)同仕様写真(浴室)  Spacious 1 tsubo size Otobasu Bathroom heating dryer
広々1坪サイズ オートバス 浴室暖房乾燥機
Same specifications photo (kitchen)同仕様写真(キッチン)  Quiet sink Artificial marble top plate Water purification function with faucet Full slide System kitchen
静音シンク 人工大理石天板 浄水機能付き水栓 フルスライド システムキッチン
Same specifications photos (Other introspection)同仕様写真(その他内観)  Walk-in closet there
ウォークインクローゼット有り
 Flat 35S Available
フラット35S利用可
Floor plan間取り図  (1 Building), Price 23,900,000 yen, 4LDK, Land area 143.06 sq m , Building area 98.82 sq m
(1号棟)、価格2390万円、4LDK、土地面積143.06m2、建物面積98.82m2
 (Building 2), Price 22,200,000 yen, 4LDK, Land area 143.22 sq m , Building area 96.39 sq m
(2号棟)、価格2220万円、4LDK、土地面積143.22m2、建物面積96.39m2
Same specifications photos (living)同仕様写真(リビング)  Spacious 16 Pledge LDK
広々16帖LDK
Location
|