New Homes » Kansai » Hyogo Prefecture » Kako-gun
 
| | Hyogo Prefecture Kako-gun Harima-cho 兵庫県加古郡播磨町 |
| Sanyo Electric Railway main line "Harima-cho" walk 7 minutes 山陽電鉄本線「播磨町」歩7分 |
| Happy Yamaden even busy morning Harimachō Station 7-minute walk! Limited in a quiet residential area 2 subdivisions! Kako-gun Harima-cho ・ If newly built single-family Kakogawa Co. captain real estate! 忙しい朝でも嬉しい山電播磨町駅徒歩7分!閑静な住宅街に限定2区画分譲!加古郡播磨町・加古川の新築一戸建てなら(株)キャプテン不動産! |
| Safe even late at night! Yamaden "Harima-cho" station 7-minute walk! Really commute ・ Convenient to go to school! Bright house with plenty of sunshine! Face-to-face kitchen where you can enjoy a conversation while cooking! Smooth dressing in the wash basin shower! Convenient parking space two! Local will guide you through your debt as a hesitate to repay example, please contact us at any time 21,800,000 yen 35-year bank loan repayment No bonus repayment Interest rate 1.075% (variable rate) In the case of preferential application (on review) monthly About 62,400 yen Please compared to the now of your rent Kakogawa ・ Takasago ・ Plenty of newly built single-family of Kako-gun Harima-cho Anything that Feel free to! 遅い夜でも安心!山電『播磨町』駅徒歩7分!すごく通勤・通学に便利!たっぷりの陽ざしで明るい住まい!料理をしながら会話を楽しめる対面キッチン!シャワー付洗面台で身支度もスムーズ!便利な駐車スペース2台!現地ご案内しますいつでもお気軽にお問い合わせ下さい返済例としてお借入 2180万円 銀行ローン35年返済 ボーナス返済なし 金利1.075%(変動金利型) 優遇適用の場合(要審査)月々 約62400円 今のお家賃と比べて下さい加古川・高砂・加古郡播磨町の新築一戸建てのことなら どんなことでも お気軽に! |
Features pickup 特徴ピックアップ | | Parking two Allowed / Fiscal year Available / It is close to the city / System kitchen / Bathroom Dryer / Yang per good / All room storage / Flat to the station / A quiet residential area / Japanese-style room / Shaping land / Washbasin with shower / Face-to-face kitchen / Toilet 2 places / Bathroom 1 tsubo or more / 2-story / Double-glazing / Warm water washing toilet seat / Underfloor Storage / The window in the bathroom / TV monitor interphone / Ventilation good / All room 6 tatami mats or more / Flat terrain 駐車2台可 /年度内入居可 /市街地が近い /システムキッチン /浴室乾燥機 /陽当り良好 /全居室収納 /駅まで平坦 /閑静な住宅地 /和室 /整形地 /シャワー付洗面台 /対面式キッチン /トイレ2ヶ所 /浴室1坪以上 /2階建 /複層ガラス /温水洗浄便座 /床下収納 /浴室に窓 /TVモニタ付インターホン /通風良好 /全居室6畳以上 /平坦地 | Price 価格 | | 21,800,000 yen ~ 22,800,000 yen 2180万円 ~ 2280万円 | Floor plan 間取り | | 4LDK 4LDK | Units sold 販売戸数 | | 2 units 2戸 | Total units 総戸数 | | 2 units 2戸 | Land area 土地面積 | | 112.18 sq m ~ 113.58 sq m (33.93 tsubo ~ 34.35 square meters) 112.18m2 ~ 113.58m2(33.93坪 ~ 34.35坪) | Building area 建物面積 | | 93.15 sq m (28.17 tsubo) (Registration) 93.15m2(28.17坪)(登記) | Driveway burden-road 私道負担・道路 | | Road width: 4.24m ~ 6.72m 道路幅:4.24m ~ 6.72m | Completion date 完成時期(築年月) | | March 2014 early schedule 2014年3月上旬予定 | Address 住所 | | Hyogo Prefecture Kako-gun Harima-cho, Minami Nozoe 2 兵庫県加古郡播磨町南野添2 | Traffic 交通 | | Sanyo Electric Railway main line "Harima-cho" walk 7 minutes 山陽電鉄本線「播磨町」歩7分
| Related links 関連リンク | | [Related Sites of this company] 【この会社の関連サイト】 | Contact お問い合せ先 | | TEL: 0800-602-4491 [Toll free] mobile phone ・ Also available from PHS Caller ID is not notified Please contact the "saw SUUMO (Sumo)" If it does not lead, If the real estate company TEL:0800-602-4491【通話料無料】携帯電話・PHSからもご利用いただけます 発信者番号は通知されません 「SUUMO(スーモ)を見た」と問い合わせください つながらない方、不動産会社の方は
| Most price range 最多価格帯 | | 21 million yen ・ 22 million yen (each 2 units) 2100万円台・2200万円台(各2戸) | Building coverage, floor area ratio 建ぺい率・容積率 | | Kenpei rate: 50%, Volume ratio: 100% 建ペい率:50%、容積率:100% | Time residents 入居時期 | | March 2014 early schedule 2014年3月上旬予定 | Land of the right form 土地の権利形態 | | Ownership 所有権 | Structure and method of construction 構造・工法 | | Wooden 2-story (framing method) 木造2階建(軸組工法) | Use district 用途地域 | | One low-rise 1種低層 | Land category 地目 | | Residential land 宅地 | Overview and notices その他概要・特記事項 | | Building confirmation number: Jukenkita Harima No. 25005 (No. 1 point), Jukenkita Harima No. 25004 (No. 2 locations) 建築確認番号:住建北播磨第25005号(1号地)、住建北播磨第25004号(2号地) | Company profile 会社概要 | | <Mediation> Governor of Hyogo Prefecture (1) No. 401362 (Ltd.) captain real estate Yubinbango676-0807 Hyogo Prefecture Takasago Yonedachoshima 74-1 <仲介>兵庫県知事(1)第401362号(株)キャプテン不動産〒676-0807 兵庫県高砂市米田町島74-1 |
Library図書館  Harima-cho Public Library! Likely to cool in summer and warm in winter reading is enjoy!
播磨町立図書館!夏は涼しく冬は暖かく読書が楽しめそう!
The entire compartment Figure全体区画図  Newly built single-family! Harima-cho, Minami Nozoe!
新築一戸建て!播磨町南野添!
Station駅  560m until Yamaden "Harima-cho" station
山電『播磨町』駅まで560m
Library図書館  Harima-cho 1030m to Public Library
播磨町立図書館まで1030m
Post office郵便局  Harima Honjo 1000m to the post office
播磨本荘郵便局まで1000m
Government office役所  1080m to Harima Town Hall
播磨町役場まで1080m
Supermarketスーパー  Until KopuKobe 650m
コープこうべまで650m
 Until Maruay 1560m
マルアイまで1560m
 1550m to business super
業務スーパーまで1550m
Drug storeドラッグストア  Until Raifoto 1650m
ライフォートまで1650m
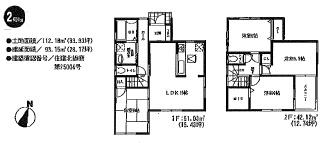
Floor plan間取り図  (No. 2 locations), Price 22,800,000 yen, 4LDK, Land area 112.18 sq m , Building area 93.15 sq m
(2号地)、価格2280万円、4LDK、土地面積112.18m2、建物面積93.15m2
Hospital病院  760m to Harima-cho Station Medical Bill
播磨町駅前医療ビルまで760m
Floor plan間取り図  (No. 1 point), Price 21,800,000 yen, 4LDK, Land area 113.58 sq m , Building area 93.15 sq m
(1号地)、価格2180万円、4LDK、土地面積113.58m2、建物面積93.15m2
Location
|