|
|
Hyogo Prefecture Kako-gun Harima-cho
兵庫県加古郡播磨町
|
|
Sanyo Electric Railway main line "Harima-cho" walk 7 minutes
山陽電鉄本線「播磨町」歩7分
|
|
☆ Limited in a quiet residential area 2 subdivisions! ☆ Station walk about 7 minutes!
☆閑静な住宅街に限定2区画分譲! ☆駅徒歩約7分!
|
|
~ Neighborhood facilities ~ ◆ Far Min SHOP Harima up to about 340m (walk about 5 minutes) ◆ About 410m to Seven-Eleven Harima-cho Ekikita store (walk about 6 minutes) ◆ Until Tanaka park about 230m (walk about 3 minutes) ◆ Harima up to elementary school about 670m (walk about 9 minutes) ◆ Harima until junior high school about 390m (walk about 5 minutes)
~ 近隣施設 ~ ◆ふぁーみんSHOP播磨まで約340m(徒歩約5分)◆セブンイレブン播磨町駅北店まで約410m(徒歩約6分)◆田中公園まで約230m(徒歩約3分)◆播磨小学校まで約670m(徒歩約9分)◆播磨中学校まで約390m(徒歩約5分)
|
Features pickup 特徴ピックアップ | | Parking two Allowed / It is close to the city / System kitchen / All room storage / Flat to the station / A quiet residential area / Around traffic fewer / Japanese-style room / Face-to-face kitchen / Toilet 2 places / Bathroom 1 tsubo or more / 2-story / Double-glazing / Warm water washing toilet seat / Underfloor Storage / TV monitor interphone / All room 6 tatami mats or more / City gas / All rooms are two-sided lighting / Flat terrain / Readjustment land within 駐車2台可 /市街地が近い /システムキッチン /全居室収納 /駅まで平坦 /閑静な住宅地 /周辺交通量少なめ /和室 /対面式キッチン /トイレ2ヶ所 /浴室1坪以上 /2階建 /複層ガラス /温水洗浄便座 /床下収納 /TVモニタ付インターホン /全居室6畳以上 /都市ガス /全室2面採光 /平坦地 /区画整理地内 |
Price 価格 | | 21,800,000 yen 2180万円 |
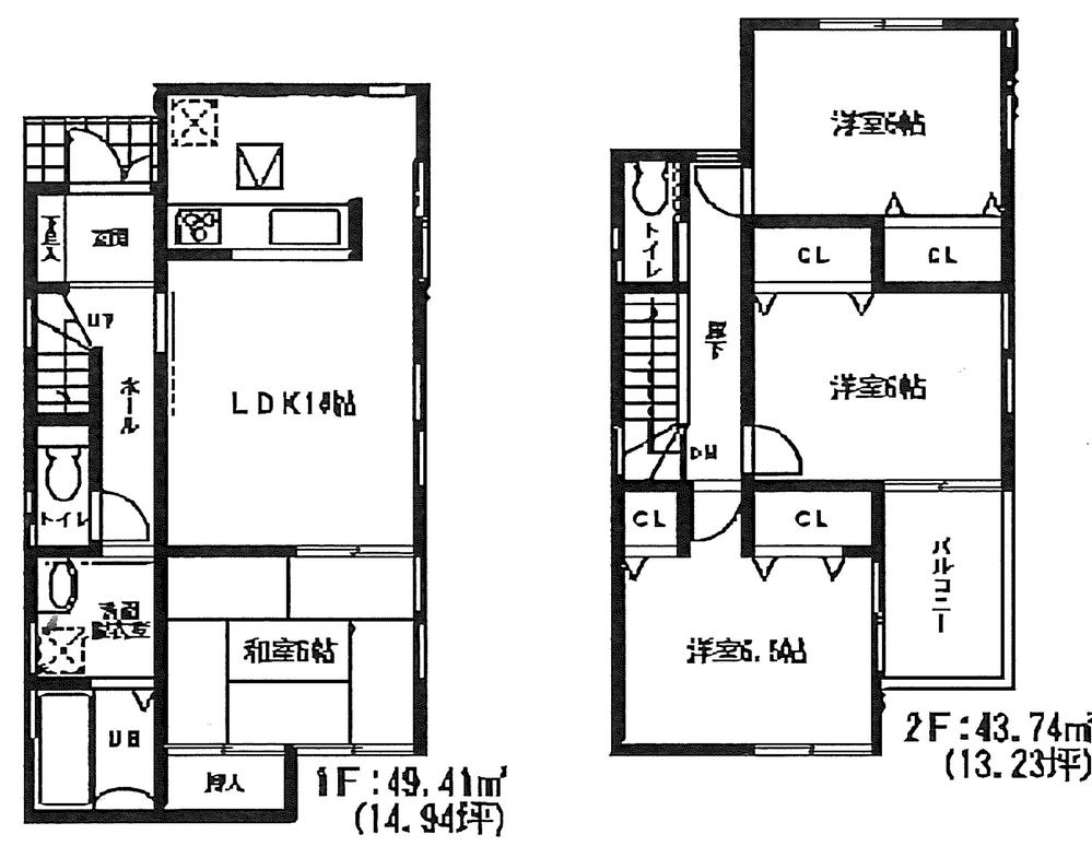
Floor plan 間取り | | 4LDK 4LDK |
Units sold 販売戸数 | | 1 units 1戸 |
Total units 総戸数 | | 2 units 2戸 |
Land area 土地面積 | | 113.58 sq m (registration) 113.58m2(登記) |
Building area 建物面積 | | 93.15 sq m (measured) 93.15m2(実測) |
Driveway burden-road 私道負担・道路 | | Nothing, North 4.2m width 無、北4.2m幅 |
Completion date 完成時期(築年月) | | March 2014 2014年3月 |
Address 住所 | | Hyogo Prefecture Kako-gun Harima-cho, Minami Nozoe 2 兵庫県加古郡播磨町南野添2 |
Traffic 交通 | | Sanyo Electric Railway main line "Harima-cho" walk 7 minutes 山陽電鉄本線「播磨町」歩7分
|
Related links 関連リンク | | [Related Sites of this company] 【この会社の関連サイト】 |
Person in charge 担当者より | | Rep Maekawa AkiraTeru 担当者前川 晃輝 |
Contact お問い合せ先 | | Maekawa real estate TEL: 0800-805-5750 [Toll free] mobile phone ・ Also available from PHS Caller ID is not notified Please contact the "saw SUUMO (Sumo)" If it does not lead, If the real estate company マエカワ不動産TEL:0800-805-5750【通話料無料】携帯電話・PHSからもご利用いただけます 発信者番号は通知されません 「SUUMO(スーモ)を見た」と問い合わせください つながらない方、不動産会社の方は
|
Building coverage, floor area ratio 建ぺい率・容積率 | | Fifty percent ・ Hundred percent 50%・100% |
Time residents 入居時期 | | March 2014 schedule 2014年3月予定 |
Land of the right form 土地の権利形態 | | Ownership 所有権 |
Structure and method of construction 構造・工法 | | Wooden 2-story (framing method) 木造2階建(軸組工法) |
Construction 施工 | | First, Building Products Co., Ltd. ファースト住建(株) |
Use district 用途地域 | | One low-rise 1種低層 |
Overview and notices その他概要・特記事項 | | Contact: Maekawa AkiraTeru, Facilities: Public Water Supply, This sewage, City gas, Building confirmation number: Jukenkita Harima No. 25005, Parking: car space 担当者:前川 晃輝、設備:公営水道、本下水、都市ガス、建築確認番号:住建北播磨第25005号、駐車場:カースペース |
Company profile 会社概要 | | <Mediation> Governor of Hyogo Prefecture (12) Article 005287 No. Maekawa real estate Yubinbango675-0101 Hyogo Prefecture Kakogawa Hiraokachoshinzaike 2-264-15 <仲介>兵庫県知事(12)第005287号マエカワ不動産〒675-0101 兵庫県加古川市平岡町新在家2-264-15 |