New Homes » Kansai » Hyogo Prefecture » Kawanishi


Hyogo Prefecture Kawanishi
Hankyu Takarazuka Line "Hibarigaoka Hanayashiki" walk 9 minutes
■ Open house! Year 12 / 28 ・ 29 to the! The beginning of the year 1 / 4 ・ From 5 ■ Century 21 Kinki housing distribution ・ Please leave it to our regional manager! ■ Contact free dial 0800-600-0668
◆ Please consult anything to the staff of because there many properties also not listed community to Sumo! ◆ Our sales staff, please be assured that is the qualified person of the mortgage advisors and residential construction coordinator! ◇ Hankyu Takarazuka Line «features of the property» "Hibarigaoka Hanayashiki" a 9-minute walk! ◇ per sun is selling "south-facing" ◇ August 2011 Built in "built shallow" Property!
Features pickup
Immediate Available / 2 along the line more accessible / LDK18 tatami mats or more / Facing south / System kitchen / Bathroom Dryer / Yang per good / All room storage / A quiet residential area / Washbasin with shower / Security enhancement / Barrier-free / Bathroom 1 tsubo or more / 2-story / South balcony / The window in the bathroom / TV monitor interphone / Ventilation good / All living room flooring / City gas
Event information
Local tours (Please be sure to ask in advance) schedule / During the public time / 11:00 ~ 21:00
Price
27.5 million yen
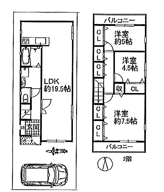
Floor plan
3LDK
Units sold
1 units
Total units
1 units
Land area
80.52 sq m (24.35 tsubo) (Registration)
Building area
90.31 sq m (27.31 tsubo) (Registration)
Driveway burden-road
Nothing, South 5.4m width
Completion date
August 2011
Address
Hyogo Prefecture Kawanishi Minamihanayashiki 4
Traffic
Hankyu Takarazuka Line "Hibarigaoka Hanayashiki" walk 9 minutes
JR Fukuchiyama Line "Kawanishi Ikeda" walk 14 minutes
Hankyu Takarazuka Line "Yamamoto" walk 15 minutes
Related links
[Related Sites of this company]
Person in charge
The person in charge Yamaguchi Megumi Age: My home is once in a lifetime for the 30's customers, Life is the biggest shopping. We will be in a staff committed to help you with the shopping. We look forward to your inquiry.
Contact
TEL: 0800-600-0668 [Toll free] mobile phone ・ Also available from PHS
Caller ID is not notified
Please contact the "saw SUUMO (Sumo)"
If it does not lead, If the real estate company
Building coverage, floor area ratio
60% ・ 200%
Time residents
Immediate available
Land of the right form
Ownership
Structure and method of construction
Wooden 2-story (framing method)
Use district
One middle and high
Overview and notices
Contact: Yamaguchi Megumi, Facilities: Public Water Supply, This sewage, City gas, Parking: car space
Company profile
<Mediation> governor of Osaka (2) the first 053,115 No. Century 21 (Ltd.) Kinki housing distribution Yubinbango573-0005 Hirakata, Osaka Ikenomiya 2-2-15


Local appearance photo

Local appearance photo. Local Photos
Local Photos

Floor plan

Floor plan. 27.5 million yen, 3LDK, Land area 80.52 sq m , Building area 90.31 sq m
27.5 million yen, 3LDK, Land area 80.52 sq m , Building area 90.31 sq m

Living

Living. Local photos (living) Spacious LDK19.5 Pledge
Local photos (living) Spacious LDK19.5 Pledge

Kitchen

Kitchen. Local photo (kitchen) Housed plenty of system Kitchen
Local photo (kitchen) Housed plenty of system Kitchen

Bathroom

Bathroom. Local photo (bathroom) Warm bath!
Local photo (bathroom) Warm bath!

Other introspection

Other introspection. Local photos (Western-style)
Local photos (Western-style)

Other introspection. Local photos (Western-style)
Local photos (Western-style)

Other Equipment

Other Equipment. Local photos (basin)
Local photos (basin)

Other Equipment. Local photos (toilet)
Local photos (toilet)

Entrance

Entrance. Local photos (entrance)
Local photos (entrance)

Cooling and heating ・ Air conditioning

Cooling and heating ・ Air conditioning. Local photo (bathroom ventilation fan)
Local photo (bathroom ventilation fan)

Cooling and heating ・ Air conditioning. At the push of a button easy operation
At the push of a button easy operation

Power generation ・ Hot water equipment

Power generation ・ Hot water equipment. At the push of a button easy operation
At the push of a button easy operation

Security equipment

Security equipment. Peace of mind security color monitor Hong
Peace of mind security color monitor Hong

Junior high school

Junior high school. Takarazuka Municipal Minamihibarigaoka until junior high school 786m
Takarazuka Municipal Minamihibarigaoka until junior high school 786m



Location