New Homes » Kansai » Hyogo Prefecture » Kobe, Hyogo-ku
 
| | Hyogo Prefecture, Kobe, Hyogo-ku, 兵庫県神戸市兵庫区 |
| JR Wadamisaki Line "Wadamisaki" walk 4 minutes JR和田岬線「和田岬」歩4分 |
| Stuck in the "price" and "breadth", "brightness"! Of course, peace of mind ・ Safety of the house-building. It is that flies decided to look at slowly complete listing everyone! 「価格」と「広さ」と「明るさ」にこだわりました!もちろん安心・安全の住まい造り。皆様でゆっくりと完成物件を見て決められるのが1番! |
| ~ The reason for Shinwa housing can offer "peace of mind guarantee", "peace of mind price" ~ [Point1] Kyoto ・ Osaka ・ Shiga ・ Hyogo, Purchase Shi collectively common architectural member, Designed in-house as a ready-built house, Planning, Construction, Sale, It was reduced cost by the management. [Point2] Of course, the reduction of review and sales expenses of advertising expenses, Reduce the waste, We strive like to keep the sale price rise. Please compared with the total amount including the purchase expenses, etc.. [Point3] Check in our employees are strictly architectural one building. further, Is a fair third party "JIO" is testing a building under construction. Structure building frame, Lots and uneven settlement 10-year warranty. ~ 信和住宅が「安心保証」「安心価格」をご提供できる理由 ~ 【Point1】 京都・大阪・滋賀・兵庫、共通の建築部材を一括仕入れし、建売住宅として自社で設計、企画、施工、販売、管理とすることでコストを抑えました。 【Point2】 広告宣伝費の見直しや販売経費の削減はもちろん、無駄を減らし、販売価格上昇を抑える様努力しております。購入諸費用等を含めて総額で比べて下さい。 【Point3】 1棟ずつ当社社員が厳しく建築中をチェック。さらに、公正な第三者機関である「JIO」が建築中の建物を検査。構造躯体、宅地不等沈下10年保証。 |
Features pickup 特徴ピックアップ | | Eco-point target housing / Corresponding to the flat-35S / Pre-ground survey / Parking two Allowed / 2 along the line more accessible / LDK20 tatami mats or more / It is close to the city / Facing south / System kitchen / Bathroom Dryer / Yang per good / Flat to the station / Siemens south road / Corner lot / Starting station / Shaping land / Washbasin with shower / Face-to-face kitchen / Barrier-free / Toilet 2 places / Bathroom 1 tsubo or more / 2-story / Double-glazing / TV with bathroom / Underfloor Storage / The window in the bathroom / TV monitor interphone / High-function toilet / Urban neighborhood / Mu front building / Ventilation good / Walk-in closet / Water filter / City gas / Flat terrain エコポイント対象住宅 /フラット35Sに対応 /地盤調査済 /駐車2台可 /2沿線以上利用可 /LDK20畳以上 /市街地が近い /南向き /システムキッチン /浴室乾燥機 /陽当り良好 /駅まで平坦 /南側道路面す /角地 /始発駅 /整形地 /シャワー付洗面台 /対面式キッチン /バリアフリー /トイレ2ヶ所 /浴室1坪以上 /2階建 /複層ガラス /TV付浴室 /床下収納 /浴室に窓 /TVモニタ付インターホン /高機能トイレ /都市近郊 /前面棟無 /通風良好 /ウォークインクロゼット /浄水器 /都市ガス /平坦地 | Event information イベント情報 | | (Please make a reservation beforehand) If you would your coming to see the Sumo is, Very sorry to trouble you, but also by e-mail, Thank you enough sure of your reservation because it is also well enough on the phone. Every week we have Friday held a night game open house. Please see a little on your way home from work. It is sober Good but we made shutters on our property is the standard equipment. Crime prevention ・ It has become a thermal insulation, etc. I'm sure willing to enjoy facilities. (事前に必ず予約してください)スーモをご覧になりご来場頂ける場合は、大変お手数ですがメールでも、電話でも結構ですので必ずご予約の程を宜しくお願い致します。毎週金曜日ナイターオープンハウスを開催しております。お仕事帰りにちょっとご覧下さい。地味なこだわりですが当社の物件には雨戸が標準装備となっております。防犯・断熱等きっと喜んで頂ける設備となっております。 | Property name 物件名 | | Shinwa housing Direct Misaki Koenmae "Finally finished." Maintenance of peace of mind because it is directly managed sales 信和住宅ダイレクト 御崎公園前 「遂に完成」 直営販売だから安心のメンテナンス | Price 価格 | | 33,200,000 yen ~ 36,800,000 yen 3320万円 ~ 3680万円 | Floor plan 間取り | | 4LDK + S (storeroom) ~ 5LDK 4LDK+S(納戸) ~ 5LDK | Units sold 販売戸数 | | 2 units 2戸 | Total units 総戸数 | | 4 units 4戸 | Land area 土地面積 | | 102.66 sq m ~ 115.6 sq m (registration) 102.66m2 ~ 115.6m2(登記) | Building area 建物面積 | | 120.69 sq m ~ 122.32 sq m 120.69m2 ~ 122.32m2 | Driveway burden-road 私道負担・道路 | | Road width: 4.51m ~ 27m, Asphaltic pavement 道路幅:4.51m ~ 27m、アスファルト舗装 | Completion date 完成時期(築年月) | | October 2013 2013年10月 | Address 住所 | | Hyogo Prefecture, Kobe, Hyogo-ku, Misakihon cho 3 兵庫県神戸市兵庫区御崎本町3 | Traffic 交通 | | JR Wadamisaki Line "Wadamisaki" walk 4 minutes Subway coastline "Wadamisaki" walk 7 minutes JR和田岬線「和田岬」歩4分 地下鉄海岸線「和田岬」歩7分
| Related links 関連リンク | | [Related Sites of this company] 【この会社の関連サイト】 | Person in charge 担当者より | | Rep Kikuchi 担当者菊池 | Contact お問い合せ先 | | Co., Ltd. Shinwa housing TEL: 075-603-2200 Please inquire as "saw SUUMO (Sumo)" (株)信和住宅TEL:075-603-2200「SUUMO(スーモ)を見た」と問い合わせください | Sale schedule 販売スケジュール | | ~ Announcement of the New Year holiday ~ Actually without permission, In our 2013 December 26 (Thursday) ~ 2014 January 8, until the (water) it will be considered as closed. Materials shipping will be happy to ship from January 9. This year and I look forward one year patronage with I would like to thank very much, We wish the best wishes of everyone. Not please greet please a Happy New Year. Thank you also Shinwa home from New Year. ~ 年末年始休業のお知らせ ~ 誠に勝手ながら、弊社では平成25年12月26日(木) ~ 平成26年1月8日(水)まで休業とさせて頂きます。資料の発送は1月9日より発送をさせていただきます。本年一年ご愛顧賜りまして大変感謝申し上げますとともに、皆様のご多幸をお祈り申し上げます。どうぞ良いお年をお迎え下さいませ。新年からも信和住宅を宜しくお願い致します。 | Building coverage, floor area ratio 建ぺい率・容積率 | | Kenpei rate: 60%, Volume ratio: 300% 建ペい率:60%、容積率:300% | Time residents 入居時期 | | Consultation 相談 | Land of the right form 土地の権利形態 | | Ownership 所有権 | Structure and method of construction 構造・工法 | | Wooden 2-story (framing method) 木造2階建(軸組工法) | Construction 施工 | | Co., Ltd. Shinwa housing 株式会社信和住宅 | Use district 用途地域 | | Semi-industrial 準工業 | Land category 地目 | | Residential land 宅地 | Overview and notices その他概要・特記事項 | | Contact: Kikuchi, Building confirmation number: No. H24 confirmation architecture PLN 奈支 1231 No. 担当者:菊池、建築確認番号:第H24確認建築PLN奈支1231号 | Company profile 会社概要 | | <Seller> Minister of Land, Infrastructure and Transport (2) No. 006951 (Ltd.) Shinwa housing Yubinbango612-8236 Kyoto Fushimi-ku, Kyoto Yokooji Shimosan 栖里Nonai 77 <売主>国土交通大臣(2)第006951号(株)信和住宅〒612-8236 京都府京都市伏見区横大路下三栖里ノ内77 |
Same specifications photos (living)同仕様写真(リビング)  Because family place where everyone gather, Basic widely bright our.
家族皆が集まる場所だから、広く明るくが当社の基本。
 Local appearance photo
現地外観写真
 Local appearance photo
現地外観写真
 Local appearance photo
現地外観写真
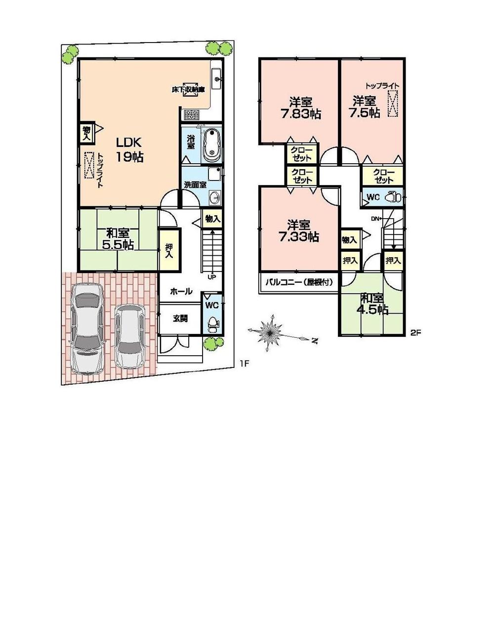
Floor plan間取り図  (No. 4 locations), Price 36,800,000 yen, 4LDK+S, Land area 115.6 sq m , Building area 122.32 sq m
(4号地)、価格3680万円、4LDK+S、土地面積115.6m2、建物面積122.32m2
 Living
リビング
 Bathroom
浴室
 Kitchen
キッチン
 Non-living room
リビング以外の居室
 Wash basin, toilet
洗面台・洗面所
 Other introspection
その他内観
 Other
その他
 (No. 3 locations), Price 33,200,000 yen, 5LDK, Land area 102.66 sq m , Building area 120.69 sq m
(3号地)、価格3320万円、5LDK、土地面積102.66m2、建物面積120.69m2
 Living
リビング
 Kitchen
キッチン
 Non-living room
リビング以外の居室
 Other introspection
その他内観
 Living
リビング
 Kitchen
キッチン
 Non-living room
リビング以外の居室
 Living
リビング
Location
|