New Homes » Kansai » Hyogo Prefecture » Kobe, Hyogo-ku
 
| | Hyogo Prefecture, Kobe, Hyogo-ku, 兵庫県神戸市兵庫区 |
| Subway Seishin ・ Yamanote Line "Minatogawakoen" walk 13 minutes 地下鉄西神・山手線「湊川公園」歩13分 |
| It became the new price. It will be the last 1 House. There is a feeling of opening per dihedral road (corner lot). Second floor of the plan in not in a "ready-built house," we will produce a huge living space 新価格となりました。最終1邸となります。二面道路(角地)につき開放感があります。「建売住宅」にはない中2階のプランは巨大なリビング空間を演出いたします |
| Wide roof balcony was able to achieve a 5 quires space. First floor garage part is there is a sense of relief from the outdoor storage and the roof with a living, When you open a Japanese-style room will be 21 quires space. Floor natural materials "Kiri" The wall is plenty of healthy housing that leverage. ワイドなルーフバルコニーは5帖スペースを実現できました。1階車庫部分は屋外収納と屋根付きリビングからの開放感があり、和室を開放すると21帖スペースとなります。天然素材「桐」を床 壁ふんだんに活用した健康住宅です。 |
Features pickup 特徴ピックアップ | | Pre-ground survey / Immediate Available / 2 along the line more accessible / System kitchen / Bathroom Dryer / Yang per good / All room storage / A quiet residential area / LDK15 tatami mats or more / Corner lot / Japanese-style room / Shaping land / Washbasin with shower / Face-to-face kitchen / Toilet 2 places / Natural materials / Bathroom 1 tsubo or more / 2-story / 2 or more sides balcony / Double-glazing / Warm water washing toilet seat / Underfloor Storage / The window in the bathroom / TV monitor interphone / Leafy residential area / Ventilation good / Good view / Built garage / Dish washing dryer / Living stairs / City gas / Fireworks viewing / roof balcony / Attic storage 地盤調査済 /即入居可 /2沿線以上利用可 /システムキッチン /浴室乾燥機 /陽当り良好 /全居室収納 /閑静な住宅地 /LDK15畳以上 /角地 /和室 /整形地 /シャワー付洗面台 /対面式キッチン /トイレ2ヶ所 /自然素材 /浴室1坪以上 /2階建 /2面以上バルコニー /複層ガラス /温水洗浄便座 /床下収納 /浴室に窓 /TVモニタ付インターホン /緑豊かな住宅地 /通風良好 /眺望良好 /ビルトガレージ /食器洗乾燥機 /リビング階段 /都市ガス /花火大会鑑賞 /ルーフバルコニー /屋根裏収納 | Price 価格 | | 31,800,000 yen 3180万円 | Floor plan 間取り | | 4LDK 4LDK | Units sold 販売戸数 | | 1 units 1戸 | Total units 総戸数 | | 1 units 1戸 | Land area 土地面積 | | 81.46 sq m (registration) 81.46m2(登記) | Building area 建物面積 | | 108.45 sq m (measured) 108.45m2(実測) | Driveway burden-road 私道負担・道路 | | Nothing, East 4.3m width, North 4m width 無、東4.3m幅、北4m幅 | Completion date 完成時期(築年月) | | August 2013 2013年8月 | Address 住所 | | Hyogo Prefecture, Kobe, Hyogo-ku, Minatogawa cho 9-13-5 兵庫県神戸市兵庫区湊川町9-13-5 | Traffic 交通 | | Subway Seishin ・ Yamanote Line "Minatogawakoen" walk 13 minutes Kobe high-speed rail Namboku "Minatogawa" walk 13 minutes Subway Seishin ・ Yamanote Line "Kamizawa" walk 15 minutes 地下鉄西神・山手線「湊川公園」歩13分 神戸高速鉄道南北線「湊川」歩13分 地下鉄西神・山手線「上沢」歩15分
| Related links 関連リンク | | [Related Sites of this company] 【この会社の関連サイト】 | Person in charge 担当者より | | Rep Yamamoto Naoki 担当者山本 直樹 | Contact お問い合せ先 | | (Ltd.) Isobe Juken TEL: 0800-602-4954 [Toll free] mobile phone ・ Also available from PHS Caller ID is not notified Please contact the "saw SUUMO (Sumo)" If it does not lead, If the real estate company (株)磯辺住研TEL:0800-602-4954【通話料無料】携帯電話・PHSからもご利用いただけます 発信者番号は通知されません 「SUUMO(スーモ)を見た」と問い合わせください つながらない方、不動産会社の方は
| Building coverage, floor area ratio 建ぺい率・容積率 | | 70% ・ 200% 70%・200% | Time residents 入居時期 | | Immediate available 即入居可 | Land of the right form 土地の権利形態 | | Ownership 所有権 | Structure and method of construction 構造・工法 | | Wooden 2-story 木造2階建 | Use district 用途地域 | | One middle and high 1種中高 | Other limitations その他制限事項 | | Residential land development construction regulation area, Quasi-fire zones 宅地造成工事規制区域、準防火地域 | Overview and notices その他概要・特記事項 | | Contact: Yamamoto Naoki, Facilities: Public Water Supply, This sewage, City gas, Building confirmation number: J-12-20575 No., Parking: Garage 担当者:山本 直樹、設備:公営水道、本下水、都市ガス、建築確認番号:J-12-20575号、駐車場:車庫 | Company profile 会社概要 | | <Mediation> Governor of Hyogo Prefecture (9) No. 008434 (Ltd.) Isobe Juken Yubinbango658-0027 Kobe, Hyogo Prefecture Higashi-Nada Ward Aoki 5-6-8 <仲介>兵庫県知事(9)第008434号(株)磯辺住研〒658-0027 兵庫県神戸市東灘区青木5-6-8 |
Local appearance photo現地外観写真  Local (10 May 2013) Shooting
現地(2013年10月)撮影
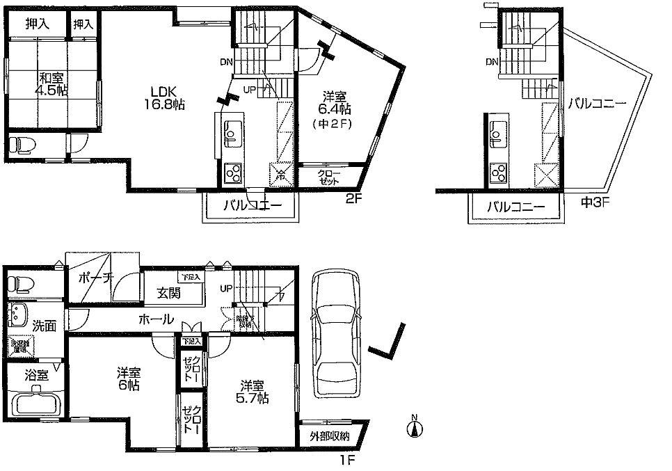
Floor plan間取り図  31,800,000 yen, 4LDK, Land area 81.46 sq m , Has adopted a building area 108.45 sq m rare mezzanine floor plan.
3180万円、4LDK、土地面積81.46m2、建物面積108.45m2 希少な中二階プランを採用しました。
Livingリビング  Local (10 May 2013) Shooting
現地(2013年10月)撮影
 Local (10 May 2013) Shooting
現地(2013年10月)撮影
Bathroom浴室  Indoor (September 2013) Shooting
室内(2013年9月)撮影
Kitchenキッチン  Local (10 May 2013) Shooting
現地(2013年10月)撮影
Non-living roomリビング以外の居室  Local (September 2013) Shooting
現地(2013年9月)撮影
Entrance玄関  Local (September 2013) Shooting
現地(2013年9月)撮影
Receipt収納  Indoor (September 2013) Shooting
室内(2013年9月)撮影
Toiletトイレ  View from local (September 2013) Shooting
現地からの眺望(2013年9月)撮影
Parking lot駐車場  Local (10 May 2013) Shooting
現地(2013年10月)撮影
Balconyバルコニー  Local (September 2013) Shooting
現地(2013年9月)撮影
Otherその他  Local (10 May 2013) Shooting
現地(2013年10月)撮影
Kitchenキッチン  Local (September 2013) Shooting
現地(2013年9月)撮影
Non-living roomリビング以外の居室  Indoor (September 2013) Shooting
室内(2013年9月)撮影
Otherその他  Japanese-style room (Paulownia ・ Natural materials) is calm some Japanese-style room, which was adopted.
和室(桐・天然素材)を採用した落ち着きある和室です。
 Balcony lighting
バルコニー照明
 2-minute walk "Minatogawa East Park" large park It is very best also maintenance situation.
徒歩2分 「湊川東公園」の大型公園 整備状況も上々です。
 2-minute walk "Minatogawa East Park" large park It is very best also maintenance situation.
徒歩2分 「湊川東公園」の大型公園 整備状況も上々です。
Location
|