|
|
Hyogo Prefecture, Kobe, Hyogo-ku,
兵庫県神戸市兵庫区
|
|
Subway Seishin ・ Yamanote Line "Okurayama" walk 11 minutes
地下鉄西神・山手線「大倉山」歩11分
|
|
[It appeared custom home of the large site area in the popular Arata-cho! ] [Shopping and hospitals, Life convenient situated]
[人気の荒田町に広い敷地面積の注文住宅が登場!] [買い物や病院、生活至便な立地]
|
|
[From the meeting of the floor plan, Muneage, Electrical ・ Receipt ・ Exterior Meeting, Building process also all public, Piled up meeting, Let's a nice house building happy together! ] ☆ Floor plan also specification also choose custom home ☆ That on the long-term prime residential land of peace of mind, Thing about the building, About mortgage, So that we can support in the total to be involved in housing, Please feel free to contact us.
【間取りの打ち合わせから、棟上げ、電気・収納・外構打合せ、建築過程もすべて公開し、打ち合わせを重ね、一緒にご満足いただける素敵な家づくりをしていきましょう!】☆間取りも仕様も選べる注文住宅☆安心の長期優良住宅土地に関すること、建物に関すること、住宅ローンについて、住宅にかかわることをトータルでサポートいたしますので、お気軽にお問い合わせください。
|
Features pickup 特徴ピックアップ | | Long-term high-quality housing / 2 along the line more accessible / LDK18 tatami mats or more / Super close / Facing south / System kitchen / Bathroom Dryer / Yang per good / All room storage / A quiet residential area / Or more before road 6m / Toilet 2 places / 2-story / Urban neighborhood / City gas / Flat terrain 長期優良住宅 /2沿線以上利用可 /LDK18畳以上 /スーパーが近い /南向き /システムキッチン /浴室乾燥機 /陽当り良好 /全居室収納 /閑静な住宅地 /前道6m以上 /トイレ2ヶ所 /2階建 /都市近郊 /都市ガス /平坦地 |
Price 価格 | | 41,800,000 yen 4180万円 |
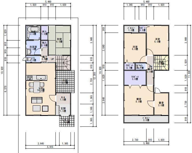
Floor plan 間取り | | 4LDK 4LDK |
Units sold 販売戸数 | | 1 units 1戸 |
Total units 総戸数 | | 1 units 1戸 |
Land area 土地面積 | | 100.6 sq m 100.6m2 |
Building area 建物面積 | | 105.5 sq m 105.5m2 |
Driveway burden-road 私道負担・道路 | | Nothing, Southwest 6m width (contact the road width 6.8m) 無、南西6m幅(接道幅6.8m) |
Completion date 完成時期(築年月) | | 7 months after the contract 契約後7ヶ月 |
Address 住所 | | Hyogo Prefecture, Kobe, Hyogo-ku, Arata-cho 3 兵庫県神戸市兵庫区荒田町3 |
Traffic 交通 | | Subway Seishin ・ Yamanote Line "Okurayama" walk 11 minutes Subway Seishin ・ Yamanote Line "Minatogawakoen" walk 13 minutes Shintetsu Arima Line "Minatogawa" walk 13 minutes 地下鉄西神・山手線「大倉山」歩11分 地下鉄西神・山手線「湊川公園」歩13分 神戸電鉄有馬線「湊川」歩13分
|
Related links 関連リンク | | [Related Sites of this company] 【この会社の関連サイト】 |
Person in charge 担当者より | | Rep Tomoko Ikegawa 担当者池川智子 |
Contact お問い合せ先 | | Kobe Urban Development (Corporation) TEL: 0120-143100 [Toll free] Please contact the "saw SUUMO (Sumo)" 神戸都市開発(株)TEL:0120-143100【通話料無料】「SUUMO(スーモ)を見た」と問い合わせください |
Building coverage, floor area ratio 建ぺい率・容積率 | | 60% ・ 200% 60%・200% |
Time residents 入居時期 | | 7 months after the contract 契約後7ヶ月 |
Land of the right form 土地の権利形態 | | Ownership 所有権 |
Structure and method of construction 構造・工法 | | Wooden 2-story (2 × 4 construction method) 木造2階建(2×4工法) |
Construction 施工 | | Kobe City Development Co., Ltd. 神戸都市開発(株) |
Use district 用途地域 | | One dwelling 1種住居 |
Overview and notices その他概要・特記事項 | | Contact: Tomoko Ikegawa, Facilities: Public Water Supply, This sewage, City gas, Building confirmation number: No. Trust 13-1853, Parking: car space 担当者:池川智子、設備:公営水道、本下水、都市ガス、建築確認番号:第トラスト13-1853、駐車場:カースペース |
Company profile 会社概要 | | <Building seller> Governor of Hyogo Prefecture (1) the first 011,420 No. Kobe Urban Development Co., Ltd. Yubinbango650-0044, Chuo-ku Kobe, Hyogo Prefecture Higashikawasaki cho 1-3-3 Kobe Harborland Center Building 20th floor <建物売主>兵庫県知事(1)第011420号神戸都市開発(株)〒650-0044 兵庫県神戸市中央区東川崎町1-3-3 神戸ハーバーランドセンタービル20階 |