New Homes » Kansai » Hyogo Prefecture » Kobe Kita-ku
 
| | Kobe, Hyogo Prefecture, Kita-ku, 兵庫県神戸市北区 |
| Shintetsu Arima Line "Hanayama" walk 7 minutes 神戸電鉄有馬線「花山」歩7分 |
| Model house sale [furniture ・ Air conditioning (one) ・ lighting equipment ・ With curtain] Arrival order application being accepted! ! モデルハウス分譲【家具・エアコン(1台)・照明器具・カーテン付】先着順申込み受付中!! |
| ■ It is surrounded by forests, City and urban convenience of you put a little distance, Hanayama hand. But, Shin-Kobe ・ Sannomiya, With excellent access to the Dongtan district, Range of activities will continue to spread to more than ever. ■ Enjoy lush views from the hill "View_Zone ・ "EKI_Chika of 650m up to view the area," said Sannomiya up to 11 minutes of KamiTetsu Hanayama Station ・ Station near the area. ", Sale from flower Yamate 3,210 yen to choose from two areas ・ Station 8-minute walk to the (630m), Closest to the nearest station in the subdivision, New model house "Vintage Modern" published in ・ Sannomiya up to 3 "clear the site of more than 70 square meters" in the land of the station 11 minutes "price 32,100,000 yen from the nearest station ~ "" Cityscape beautiful "total number of houses 825 units (of which the company equity 272 units) one after another condominium in Big Town is in the emergence of ■周りを森林に囲まれ、都会の利便さとは少し距離を置いた街、花山手。でも、新神戸・三宮、東灘方面への優れたアクセスで、活動範囲はこれまで以上に広がっていきます。■高台から緑豊かな景色を楽しめる「View_Zone・眺望エリア」と三宮まで11分の神鉄花山駅まで650mの「EKI_Chika・駅近エリア」、2つのエリアから選べる花山手3,210万円より販売中・駅徒歩8分(630m)と、分譲地内で一番最寄駅に近い、新モデルハウス 「Vintage Modern」 公開中・最寄駅から三宮まで3駅11分の地に「70坪超えのゆとりの敷地」「価格3210万円 ~ 」「街並みが綺麗」な総戸数825戸(うち同社持分272戸)のビッグタウンに続々と分譲住宅が登場中 |
Seller comments 売主コメント | | 3-8-3 No. land 3-8-3号地 | Local guide map 現地案内図 | | Local guide map 現地案内図 | Features pickup 特徴ピックアップ | | Eco-point target housing / Corresponding to the flat-35S / Airtight high insulated houses / Pre-ground survey / Year Available / Parking two Allowed / Immediate Available / LDK20 tatami mats or more / Land 50 square meters or more / Energy-saving water heaters / See the mountain / It is close to golf course / It is close to the city / Facing south / System kitchen / Bathroom Dryer / Yang per good / All room storage / Siemens south road / A quiet residential area / Around traffic fewer / Or more before road 6m / Corner lot / Japanese-style room / Shaping land / Mist sauna / garden / Washbasin with shower / Face-to-face kitchen / 3 face lighting / Barrier-free / Toilet 2 places / Bathroom 1 tsubo or more / 2-story / 2 or more sides balcony / South balcony / Double-glazing / Warm water washing toilet seat / Nantei / Underfloor Storage / The window in the bathroom / Atrium / TV monitor interphone / Leafy residential area / Ventilation good / All living room flooring / Wood deck / Good view / Built garage / Dish washing dryer / Walk-in closet / All room 6 tatami mats or more / Water filter / Living stairs / City gas / Storeroom / All rooms are two-sided lighting / Located on a hill / A large gap between the neighboring house / In a large town / Floor heating / Development subdivision in / Movable partition エコポイント対象住宅 /フラット35Sに対応 /高気密高断熱住宅 /地盤調査済 /年内入居可 /駐車2台可 /即入居可 /LDK20畳以上 /土地50坪以上 /省エネ給湯器 /山が見える /ゴルフ場が近い /市街地が近い /南向き /システムキッチン /浴室乾燥機 /陽当り良好 /全居室収納 /南側道路面す /閑静な住宅地 /周辺交通量少なめ /前道6m以上 /角地 /和室 /整形地 /ミストサウナ /庭 /シャワー付洗面台 /対面式キッチン /3面採光 /バリアフリー /トイレ2ヶ所 /浴室1坪以上 /2階建 /2面以上バルコニー /南面バルコニー /複層ガラス /温水洗浄便座 /南庭 /床下収納 /浴室に窓 /吹抜け /TVモニタ付インターホン /緑豊かな住宅地 /通風良好 /全居室フローリング /ウッドデッキ /眺望良好 /ビルトガレージ /食器洗乾燥機 /ウォークインクロゼット /全居室6畳以上 /浄水器 /リビング階段 /都市ガス /納戸 /全室2面採光 /高台に立地 /隣家との間隔が大きい /大型タウン内 /床暖房 /開発分譲地内 /可動間仕切り | Event information イベント情報 | | Model house schedule / During the public time / 10:00 ~ 18:00 ■ New models House 1 House + models House 1 House From time to time published in Vintage ・ Model house such as a total of two House of natural taste of the model house and split-level home is light impression of modern is currently published in the. Which house is your favorite? . We look forward than everybody for coming heart. (Closed on Wednesdays date) モデルハウス日程/公開中時間/10:00 ~ 18:00■新モデルハウス1邸+モデルハウス1邸 随時公開中ビンテージ・モダンのモデルハウスやスキップフロアが軽快な印象のナチュラルテイストのモデルハウス等合計2邸が現在公開中です。あなたの好みはどの住宅?是非ご覧ください。皆様のご来場心よりお待ちいたしております。(水曜定休日) | Property name 物件名 | | P-CON Kobe Hanayama hand Houses built for sale P-CON神戸花山手 分譲住宅 | Price 価格 | | 32,100,000 yen ~ 41 million yen 3210万円 ~ 4100万円 | Floor plan 間取り | | 3LDK + S (storeroom) ~ 5LDK 3LDK+S(納戸) ~ 5LDK | Units sold 販売戸数 | | 6 units 6戸 | Total units 総戸数 | | 825 units 825戸 | Land area 土地面積 | | 176.96 sq m ~ 223.84 sq m (53.53 tsubo ~ 67.71 square meters) 176.96m2 ~ 223.84m2(53.53坪 ~ 67.71坪) | Building area 建物面積 | | 118.54 sq m ~ 138.64 sq m (35.85 tsubo ~ 41.93 square meters) 118.54m2 ~ 138.64m2(35.85坪 ~ 41.93坪) | Driveway burden-road 私道負担・道路 | | Road: 6m width asphalt paving, Driveway burden: No 道路:6m幅アスファルト舗装、私道負担:無 | Completion date 完成時期(築年月) | | February 2012 2012年2月 | Address 住所 | | Kobe City, Hyogo Prefecture, Kita-ku, Hanayamanakaodai 3-3-1 兵庫県神戸市北区花山中尾台3-3-1他(地番) | Traffic 交通 | | Shintetsu Arima Line "Hanayama" walk 7 minutes 神戸電鉄有馬線「花山」歩7分
| Related links 関連リンク | | [Related Sites of this company] 【この会社の関連サイト】 | Contact お問い合せ先 | | Land, construction Kobe flower Yamate Information Center TEL: 0120-5910-87 [Toll free] (mobile phone ・ Also available from PHS. ) Please contact the "saw SUUMO (Sumo)" 国土建設神戸花山手インフォメーションセンターTEL:0120-5910-87【通話料無料】(携帯電話・PHSからもご利用いただけます。)「SUUMO(スーモ)を見た」と問い合わせください | Sale schedule 販売スケジュール | | ■ Enjoy lush views from the hill "View_Zone ・ "EKI_Chika of 650m up to view the area," said Sannomiya up to 11 minutes of KamiTetsu Hanayama Station ・ Station near the area. ", Sale from flower Yamate 3,210 yen to choose from two areas ■ An 8-minute walk to the nearest KamiTetsu "Hanayama" station and (630m), Located in most stations close in the book subdivision, A model house to be built on 60 square meters or more of the site, It has emerged. I'm happy the large opening of the south following the wood deck, It is full of a feeling of opening plan. Reception location / Kobe flower Yamate Information Center Reception time / 10 am ~ 6:00 pm ※ At the time of application is, Seal and the application money 100,000 yen (appropriated to the part of the deposit), Do you have a year worth of income certificate. ■ Notice of the year-end and New Year holiday ■ 12 / 29 (Sun) ~ 1 / 1 day until the (water) will be closed. New Year 1 / Will be open from 2 (Thursday) 10:00 therefore please. ■高台から緑豊かな景色を楽しめる「View_Zone・眺望エリア」と三宮まで11分の神鉄花山駅まで650mの「EKI_Chika・駅近エリア」、2つのエリアから選べる花山手3,210万円より販売中■最寄りの神鉄「花山」駅まで徒歩8分(630m)と、本分譲地の中でも最も駅近くに位置し、60坪以上の敷地に建つモデルハウスが、登場しました。ウッドデッキに続く南面の大開口が嬉しい、開放感あふれるプランです。受付場所/神戸花山手インフォメーションセンター 受付時間/午前10時 ~ 午後6時※申込の際には、印鑑と申込証拠金10万円(手付金の一部に充当)、前年分の収入証明書をお持ち下さい。■年末年始の休業日についてのお知らせ■12/29(日) ~ 1/1日(水)までお休みさせていただきます。新年は1/2(木)10:00より営業いたしますのでよろしくお願いいたします。 | Most price range 最多価格帯 | | 32 million yen (2 units) 3200万円台(2戸) | Expenses 諸費用 | | Other expenses: housing complex facility maintenance costs: 150,000 yen / Bulk, Meetinghouse construction contributions: 50,000 yen / Bulk その他諸費用:団地施設維持管理費:15万円/一括、集会所建設負担金:5万円/一括 | Building coverage, floor area ratio 建ぺい率・容積率 | | Building coverage: 50%, Volume ratio: 80% 建ぺい率:50%、容積率:80% | Time residents 入居時期 | | Immediate available 即入居可 | Land of the right form 土地の権利形態 | | Ownership 所有権 | Structure and method of construction 構造・工法 | | Wooden 2-story (2 × 4 construction method) 木造2階建(2×4工法) | Construction 施工 | | Construction company: Land, Infrastructure and Construction Co., Ltd. 施工会社:国土建設(株) | Use district 用途地域 | | One low-rise 1種低層 | Land category 地目 | | Residential land 宅地 | Other limitations その他制限事項 | | Regulations have by erosion control method, Residential land development construction regulation area, Height district, Setback Yes, Regulations have by erosion control method, Residential land development construction regulation area, Height district, Setback Yes, Forest Act, District plan ・ Hanayamanakaodai district district planning: Detached residential area, There guidelines based on the "town planning design manual (excerpt)," "bookmark of residential land." 砂防法による規制有、宅地造成工事規制区域、高度地区、壁面後退有、砂防法による規制有、宅地造成工事規制区域、高度地区、壁面後退有、森林法、地区計画・花山中尾台地区地区計画:戸建住宅地区、「街づくりデザインマニュアル(抜粋)」「宅地のしおり」に基づくガイドライン有り | Overview and notices その他概要・特記事項 | | Building confirmation number: Building Products Kobe No. 23154, other, Completion date ~ June finished already 2013 建築確認番号:住建神戸第23154号、他、完成時期: ~ 2013年6月完成済 | Company profile 会社概要 | | <Seller> Minister of Land, Infrastructure and Transport (11) No. 2093 Minister of Land, Infrastructure and Transport (JP -23) No. 6301 Osaka governor registration (j) No. 4304 (one company) Japan two-by-four construction Association of Land Construction Co., Ltd. Yubinbango534-0024 Osaka-shi, Osaka Miyakojima-ku Higashinoda cho 2-9-7 <売主>国土交通大臣(11)第2093号 国土交通大臣(特-23)第6301号 大阪府知事登録(ヌ)第4304号(一社)日本ツーバイフォー建築協会会員 国土建設株式会社〒534-0024 大阪府大阪市都島区東野田町2-9-7 |
Otherその他  OB owner like you live in the Pikon Festa of the state flower Yamate, Move before the existing contract bidder, Invited OB like your friends like us, It was held a festival.
ピーコンフェスタの様子花山手にお住まいのOB施主様、入居前の既契約者様、OB様のご友人様達を招いて、フェスティバルを催しました。
Local appearance photo現地外観写真  In this model house to be built on a hill of the corner lot, To back the views of the mountains that extend to the north direction, It produces a certain calm appearance of the room.
高台の角地に建つこのモデルハウスでは、北方向に広がる山々の景色をバックに、ゆとりのある落ち着いた佇まいを演出しました。
Kitchenキッチン  And the large opening of the dining to full open, Also good spend in the wood deck, Good also drinking coffee at the kitchen counter, Here and there, Uchi Cafe space is born.
ダイニングの大開口をフルオープンにして、ウッドデッキで過ごすも良し、キッチンカウンターで珈琲を飲むでも良し、そこかしこで、Uchi Cafe 空間が生まれます。
Livingリビング  From a large atrium that can be because of the high air-tight high-insulated houses are, It directed the spread and brightness.
高気密高断熱の住宅だからできる大きな吹き抜けからは、広がりと明るさを演出しています。
Model house photoモデルハウス写真  The theme of this model house is "Vintage ・ Modern, "but it might be a bit look Ppoku old, Warm and calm interior. Come out the taste as the go slowly and carefully embezzle. Also we look forward there is a new discovery.
このモデルハウスのテーマは「ビンテージ・モダン」少し古っぽくみえるかもしれませんが、あたたかくて落ち着いたインテリア。じっくりと使い込んでいくにつれて味がでてくる。また新しい発見があるのが楽しみです。
 650m to up to 11 minutes of KamiTetsu Hanayama Station Sannomiya and, Model house to be built on the current area closest to the station in the flower Yamate in subdivision.
三宮へ11分の神鉄花山駅まで650mと、現在分譲中の花山手の中で最も駅に近いエリアに建つモデルハウス。
Otherその他  About 8 minutes walk, New condominiums appeared in the 1-19 city blocks closest to the nearest station in the subdivision.
徒歩約8分と、分譲地内で最も最寄駅に近い1-19街区に新規分譲住宅登場。
 Arrival to the "Sannomiya" station in about 15 minutes including transfer time than Kobe Electric Railway of the nearest station, "Hanayama" station. It is convenient to homecoming or going out.
最寄駅の神戸電鉄「花山」駅より乗り換え時間含めて約15分で「三宮」駅に到着。帰省やお出かけに便利です。
Supermarketスーパー  Something useful likely at 1130m 24 hours a day until Maxvalu Oike shop. Closeness of about 4 minutes that's car
マックスバリュ大池店まで1130m 24時間営業でなにかと重宝しそう。車だと約4分の近さ
Hospital病院  In General Hospital at a distance of 800m walk 10 minutes to the hospital Mahoshi, Encouraging because emergency medical care are also implemented
真星病院まで800m 徒歩10分の距離にある総合病院で、緊急医療も実施しているから心強い
Parking lot駐車場  2 car parking spaces of happy margin.
嬉しい余裕の2台分駐車スペース。
Garden庭  11 minutes of standing by train from Sannomiya. On the site of 50 Tsubokoe that you can enjoy nature, Ya open living spaces, Large garden, Secure a parking space for 2 cars.
三宮から電車でたったの11分。自然を満喫できる50坪越えの敷地に、開放的な住空間や、広い庭、2台分の駐車スペースを確保。
Otherその他  Soccer, etc., From Hikohachi park there is a ground that can play ball is, You hear the children's cheerful laughter.
サッカーなど、ボール遊びのできるグランドがあるひこはち公園からは、子ども達の元気な笑い声が聞こえてきます。
 Fun will spread, such as barbecue tournament gathered friends in the large garden with a large wooden deck.
大きなウッドデッキのある広い庭ではお友達が集まってバーベキュー大会など楽しみが広がります。
Garden庭  The large garden is a large wooden deck. Since wood fence is provided so as to block the line of sight from the road, It is likely to be used as a little outdoor living.
広い庭には大きなウッドデッキが。道路からの視線を遮るようにウッドフェンスが設けられているので、ちょっとした屋外リビングとして活用できそうです。
Toiletトイレ  Since tankless toilet, To clean and stylish space. Also firmly secure space that can accommodate a toilet supplies.
タンクレストイレなので、すっきりとスタイリッシュな空間に。トイレ用品を収納できるスペースもしっかり確保。
Bathroom浴室  Approach from the toilet to the bath, Three sliding door that takes into account the barrier-free. Home is a bright and spacious bathroom of unique.
洗面所からお風呂へのアプローチは、バリアフリーに考慮した3枚引き戸。一戸建てならではの明るく広い浴室です。
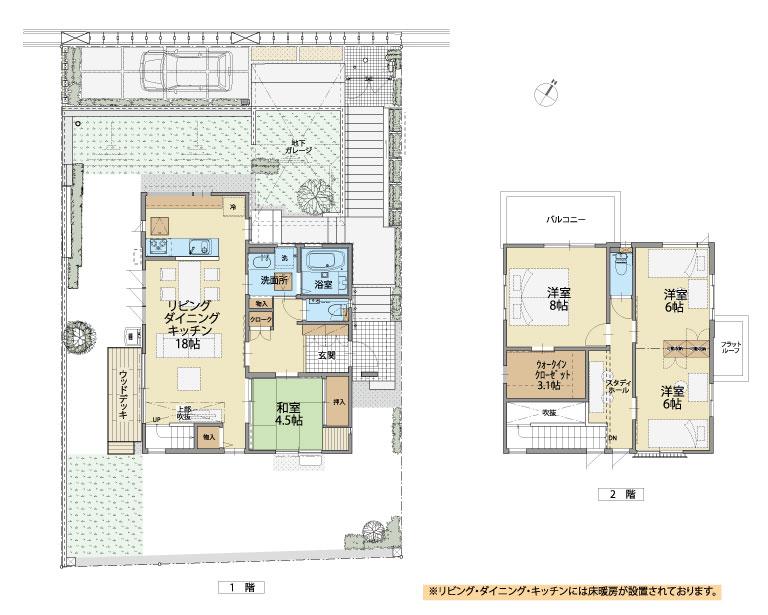
Floor plan間取り図  (3-3-17 No. land), Price 32,300,000 yen, 3LDK+S, Land area 222.8 sq m , Building area 138.64 sq m
(3-3-17号地)、価格3230万円、3LDK+S、土地面積222.8m2、建物面積138.64m2
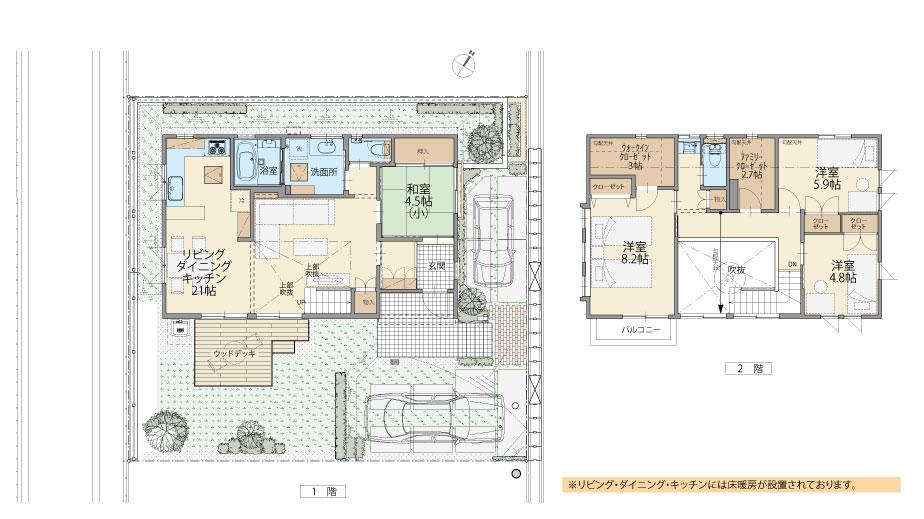
 (1-19-14 No. land), Price 41 million yen, 5LDK+S, Land area 223.84 sq m , Building area 127.57 sq m
(1-19-14号地)、価格4100万円、5LDK+S、土地面積223.84m2、建物面積127.57m2
Other Equipmentその他設備  Numerical sought criteria 5cm2 / m2 is below, but, In Pikon residential 0.5 ~ 1.0cm2 / m2 and, Ensure high airtightness. It enhances the cooling and heating efficiency. ※ C value (corresponding gap area), Floor area of building (m2) per, At what number representing whether there is a gap (cm2) of, Numeric has excellent airtightness The smaller.
基準で求められる数値は5cm2/m2以下ですが、ピーコンの住宅では0.5 ~ 1.0cm2/m2と、高い気密性を確保。冷暖房効率を高めます。 ※C値(相当隙間面積)とは、建物の床面積(m2)当たり、どの程度の隙間(cm2)があるかを表す数値で、数値が小さいほど気密性に優れています。
Otherその他  House building of Pikon, which proceeds in the slogan "Let's make a house like their own will want to live.". Taking advantage of superior tenderness to the structure system and the wooden house life that 2x4 construction method has designed Building 1 1 buildings cherish. «Design section»
「自分たちが住みたくなるような家を作ろう」というかけ声で進められるピーコンの住まい造り。2x4工法という優れた構造システムと木造住宅の生活への優しさをを生かして1棟1棟大切に設計しています。≪設計部≫
 By performing the field control and in-house inspection directly in-house, It is the construction work that satisfies the demand for high quality and economic efficiency. Also after delivery, In cooperation with the responsible group companies have to deliver the peace of mind in the after-sales and inspection of up to 20 years. «Construction section»
現場管理と社内検査を直接自社で行うことで、高品質と経済性を両立させた建築工事を行っています。また引き渡し後は、担当のグループ会社と連携し20年後までのアフターや点検で安心をお届けしています。≪工事部≫
Floor plan間取り図  State of Pikon Festa
ピーコンフェスタの様子
 State of Pikon Festa
ピーコンフェスタの様子
 State of Pikon Festa
ピーコンフェスタの様子
 State of Pikon Festa
ピーコンフェスタの様子
Park公園  Over Valley park (in the town) new sales Street District, Adjacent to a large park. The park, Children, such as slide and sandbox to be slipping in the three side-by-side is also aligned fun and play likely play equipment
渡り谷公園(タウン内) 新しい販売街区は、大きな公園に隣接。公園には、3人横並びで滑られる滑り台や砂場など子供が楽しく遊べそうな遊具も揃っている
Other Equipmentその他設備  Outdoor side is aluminum, Indoor side adopts a hybrid sash using a resin. Weatherability ・ Excellent aluminum in water-tightness in outdoor, High-performance thermal insulation sash thermal conductivity using the condensation difficult resin low in the room, In high-performance glass that combines Low-E function to pair glass of the air layer 12mm, It has extended thermal insulation performance of the building.
室外側はアルミ、室内側は樹脂を使用したハイブリッドサッシを採用。耐候性・水密性に優れたアルミを屋外に、熱伝導率が低く結露しにくい樹脂を室内に使用した高性能断熱サッシに、空気層12mm のペアガラスにLow-E 機能を併せ持つ高機能なガラスで、建物の断熱性能を高めています。
 Local guide map
現地案内図
 Low-E The pair glass, It was coated with a special metal film on the outdoor side of the double-glazing of the hollow layer 12mm, That of double-glazing that uses a low-emissivity glass. Ya heating and cooling load reduction by thermal barrier effect, Suppression of condensation, The ultraviolet rays that cause fading of interior furniture, About 2.4 times the usual single glass (manufacturer examined) and significantly cut (same specifications)
Low-Eペアガラスとは、中空層 12mmの複層ガラスの室外側に特殊金属膜をコーティングした、低放射ガラスを使った複層ガラスのこと。遮熱効果による冷暖房負荷軽減や、結露の抑止、室内家具の色あせの原因となる紫外線を、普通の一枚ガラスの約2.4倍(メーカー調べ)と大幅にカット(同仕様)
Cooling and heating ・ Air conditioning冷暖房・空調設備  While the supply of fresh air to the room through the duct, It is that dirty air is sucked out from such as hallways and toilet, The first kind ventilation system. In the "sensible heat exchange type", Because not passed and odor associated with moisture and in it, Also safe hygiene. When introducing the outside air into the room, Dust in the air, To the mechanism to be cleaned with air cleaning filter to catch the pollen. Cleaning of the filter bag is also possible (same specifications)
新鮮な空気をダクトを通して部屋に供給する一方、汚れた空気は廊下やトイレなどから吸い出すというのが、第1種換気方式。「顕熱交換型」では、湿気やそれに付随する臭気などを受け渡さないので、衛生面でも安心。外気を室内に取り入れる際には、空気中の塵埃、花粉などをキャッチする空気清浄フィルターで清浄するする仕組みに。フィルターバッグの洗浄も可能(同仕様)
The entire compartment Figure全体区画図  Land plan view. It is in the town are located the green space of the four parks and 10 locations.
ランドプラン図。タウン内には4つの公園と10ヵ所の緑地が配置されています。
Park公園  Succession is Shiraiwa Kitaryokuchi (in the town) beautiful green, Green space filled with airy, I want to use, such as for a walk with the dog
白岩北緑地(タウン内) 美しい緑が連なり、開放感に満ちた緑地は、愛犬との散歩などに利用したい
 It is also installed playground equipment in Hikohachi park (in the town) large ground
ひこはち公園(タウン内) 大きなグラウンドに遊具も設置されている
Kindergarten ・ Nursery幼稚園・保育園  Municipal Yamabiko to kindergarten 1300m
市立やまびこ幼稚園まで1300m
Primary school小学校  In a 17-minute walk from the 1300m local to the Hanayama elementary school, A big school with a room of Kobe Kita Ward unique
花山小学校まで1300m 現地から徒歩17分で、神戸市北区ならではのゆとりある大きな学校だ
Supermarketスーパー  Super Shokuirodori Museum Tachiyoreru to after work because there in the (car in about 5 minutes) until the 2800m Tanigami Station convenient shops
スーパー食彩館(車で約5分)まで2800m 谷上駅の中にあるから仕事帰りに立ち寄れる便利なお店
Junior high school中学校  Municipal Oike until junior high school 1100m
市立大池中学校まで1100m
Location
|