New Homes » Kansai » Hyogo Prefecture » Kobe Kita-ku
 
| | Kobe, Hyogo Prefecture, Kita-ku, 兵庫県神戸市北区 |
| Hankyu "tilapia 2-chome" walk 6 minutes 阪急バス「泉台2丁目」歩6分 |
| ☆ This significant price revision ☆ And the smell of wood of all rooms solid flooring, Please experience the beautiful design of architect Come! ☆ For the south Hinadan, Daylighting ・ Good view ☆ ☆今回大幅価格改定☆全室無垢フローリングの木の香りと、建築家の美しいデザインを是非ご体感下さい!☆南側ひな段での為、採光・眺望良好☆ |
| Corresponding to the flat-35S, Airtight high insulated houses, Pre-ground survey, Vibration Control ・ Seismic isolation ・ Earthquake resistant, Parking two Allowed, Immediate Available, LDK18 tatami mats or more, See the mountain, Facing south, Bathroom Dryer, Yang per good, Siemens south road, A quiet residential area, Around traffic fewer, Shaping land, Washbasin with shower, Face-to-face kitchen, Wide balcony, Barrier-free, Toilet 2 places, Natural materials, Bathroom 1 tsubo or more, 2-story, South balcony, Warm water washing toilet seat, The window in the bathroom, TV monitor interphone, Ventilation good, Good view, IH cooking heater, Dish washing dryer, Walk-in closet, Water filter, Living stairs, All-electric, Located on a hill, Floor heating フラット35Sに対応、高気密高断熱住宅、地盤調査済、制震・免震・耐震、駐車2台可、即入居可、LDK18畳以上、山が見える、南向き、浴室乾燥機、陽当り良好、南側道路面す、閑静な住宅地、周辺交通量少なめ、整形地、シャワー付洗面台、対面式キッチン、ワイドバルコニー、バリアフリー、トイレ2ヶ所、自然素材、浴室1坪以上、2階建、南面バルコニー、温水洗浄便座、浴室に窓、TVモニタ付インターホン、通風良好、眺望良好、IHクッキングヒーター、食器洗乾燥機、ウォークインクロゼット、浄水器、リビング階段、オール電化、高台に立地、床暖房 |
Features pickup 特徴ピックアップ | | Corresponding to the flat-35S / Airtight high insulated houses / Pre-ground survey / Vibration Control ・ Seismic isolation ・ Earthquake resistant / Parking two Allowed / Immediate Available / LDK18 tatami mats or more / See the mountain / Facing south / Bathroom Dryer / Yang per good / Siemens south road / A quiet residential area / Around traffic fewer / Shaping land / Washbasin with shower / Face-to-face kitchen / Wide balcony / Barrier-free / Toilet 2 places / Natural materials / Bathroom 1 tsubo or more / 2-story / South balcony / Warm water washing toilet seat / The window in the bathroom / TV monitor interphone / Ventilation good / Good view / IH cooking heater / Dish washing dryer / Walk-in closet / Water filter / Living stairs / All-electric / Located on a hill / Floor heating フラット35Sに対応 /高気密高断熱住宅 /地盤調査済 /制震・免震・耐震 /駐車2台可 /即入居可 /LDK18畳以上 /山が見える /南向き /浴室乾燥機 /陽当り良好 /南側道路面す /閑静な住宅地 /周辺交通量少なめ /整形地 /シャワー付洗面台 /対面式キッチン /ワイドバルコニー /バリアフリー /トイレ2ヶ所 /自然素材 /浴室1坪以上 /2階建 /南面バルコニー /温水洗浄便座 /浴室に窓 /TVモニタ付インターホン /通風良好 /眺望良好 /IHクッキングヒーター /食器洗乾燥機 /ウォークインクロゼット /浄水器 /リビング階段 /オール電化 /高台に立地 /床暖房 | Event information イベント情報 | | Open House (Please make a reservation beforehand) schedule / Every Saturday, Sunday and public holidays time / 10:00 ~ 17:00 オープンハウス(事前に必ず予約してください)日程/毎週土日祝時間/10:00 ~ 17:00 | Price 価格 | | 27,800,000 yen 2780万円 | Floor plan 間取り | | 4LDK 4LDK | Units sold 販売戸数 | | 1 units 1戸 | Total units 総戸数 | | 2 units 2戸 | Land area 土地面積 | | 114.58 sq m (measured) 114.58m2(実測) | Building area 建物面積 | | 105.58 sq m (measured) 105.58m2(実測) | Driveway burden-road 私道負担・道路 | | Road width: about 4m, Asphaltic pavement 道路幅員:約4m、アスファルト舗装 | Completion date 完成時期(築年月) | | November 2012 2012年11月 | Address 住所 | | Kobe City, Hyogo Prefecture, Kita-ku, Sugio stand 2-12 兵庫県神戸市北区杉尾台2-12 | Traffic 交通 | | Hankyu "tilapia 2-chome" walk 6 minutes 阪急バス「泉台2丁目」歩6分 | Related links 関連リンク | | [Related Sites of this company] 【この会社の関連サイト】 | Person in charge 担当者より | | Rep Mutsumi Aoyama 担当者青山睦 | Contact お問い合せ先 | | Shendong Construction (Ltd.) TEL: 0800-805-5756 [Toll free] mobile phone ・ Also available from PHS Caller ID is not notified Please contact the "saw SUUMO (Sumo)" If it does not lead, If the real estate company 神東建設(株)TEL:0800-805-5756【通話料無料】携帯電話・PHSからもご利用いただけます 発信者番号は通知されません 「SUUMO(スーモ)を見た」と問い合わせください つながらない方、不動産会社の方は
| Building coverage, floor area ratio 建ぺい率・容積率 | | Building coverage: 50%, Volume ratio: 100% 建ぺい率:50%、容積率:100% | Time residents 入居時期 | | Immediate available 即入居可 | Land of the right form 土地の権利形態 | | Ownership 所有権 | Structure and method of construction 構造・工法 | | Wooden 2-story 木造2階建 | Construction 施工 | | Shendong Construction Co., Ltd. 神東建設株式会社 | Use district 用途地域 | | One dwelling 1種住居 | Land category 地目 | | Residential land 宅地 | Overview and notices その他概要・特記事項 | | Contact: Mutsumi Aoyama, Building confirmation number: No. VBJ-X12-10-1026 担当者:青山睦、建築確認番号:第VBJ-X12-10-1026号 | Company profile 会社概要 | | <Employer ・ Seller> Governor of Hyogo Prefecture (11) Article 006645 No. God Higashikensetsu Co. Yubinbango657-0841 Kobe City, Hyogo Prefecture Nada Ward Nadaminamidori 3-1-13 <事業主・売主>兵庫県知事(11)第006645号神東建設(株)〒657-0841 兵庫県神戸市灘区灘南通3-1-13 |
Local appearance photo現地外観写真  Local (January 2013) shooting left is those properties.
現地(2013年1月)撮影左が当物件です。
 Local (January 2013), shooting (around evening) At a moderate light, We will celebrate your family.
現地(2013年1月)撮影(夕方頃) 適度な明かりで、ご家族を迎えます。
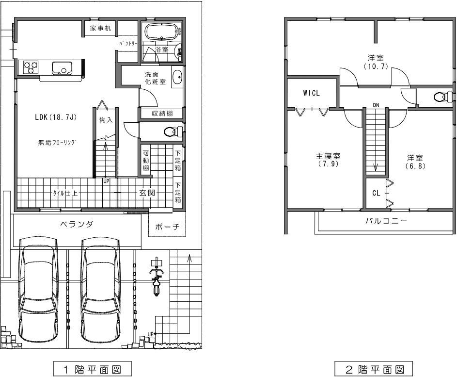
Floor plan間取り図  (No. 1 point), Price 27,800,000 yen, 4LDK, Land area 114.58 sq m , Building area 105.58 sq m
(1号地)、価格2780万円、4LDK、土地面積114.58m2、建物面積105.58m2
Livingリビング  Indoor (January 2013) Shooting South-facing bright house.
室内(2013年1月)撮影 南向きの明るい家。
Kitchenキッチン  Indoor (January 2013) Shooting Next to the kitchen, It was provided with the housework counter and pantry.
室内(2013年1月)撮影 キッチンの横に、家事カウンターとパントリーを設けました。
Entrance玄関  Local (January 2013) Shooting
現地(2013年1月)撮影
Wash basin, toilet洗面台・洗面所  Indoor (January 2013) Shooting
室内(2013年1月)撮影
Bathroom浴室  Indoor (January 2013) Shooting
室内(2013年1月)撮影
Location
|