New Homes » Kansai » Hyogo Prefecture » Nishi-ku, Kobe
 
| | Kobe City, Hyogo Prefecture, Nishi-ku, 兵庫県神戸市西区 |
| Subway Seishin ・ Yamanote Line "Seishin Chuo" bus 6 minutes Kasugadai park walk 8 minutes 地下鉄西神・山手線「西神中央」バス6分春日台公園歩8分 |
| Measures to conserve energy, Corresponding to the flat-35S, Solar power system, Pre-ground survey, Parking two Allowed, Super close, System kitchen, Bathroom Dryer, Yang per good, All room storage, Siemens south road, 省エネルギー対策、フラット35Sに対応、太陽光発電システム、地盤調査済、駐車2台可、スーパーが近い、システムキッチン、浴室乾燥機、陽当り良好、全居室収納、南側道路面す、 |
| Measures to conserve energy, Corresponding to the flat-35S, Solar power system, Pre-ground survey, Parking two Allowed, Super close, System kitchen, Bathroom Dryer, Yang per good, All room storage, Siemens south road, A quiet residential area, LDK15 tatami mats or more, Around traffic fewerese-style room, Washbasin with shower, Face-to-face kitchen, Barrier-free, Toilet 2 places, Bathroom 1 tsubo or more, 2-story, 2 or more sides balcony, South balcony, Double-glazing, Otobasu, Warm water washing toilet seat, Underfloor Storage, The window in the bathroom, TV monitor interphone, Leafy residential area, Ventilation good, All room 6 tatami mats or more, Water filter, City gas, Flat terrain 省エネルギー対策、フラット35Sに対応、太陽光発電システム、地盤調査済、駐車2台可、スーパーが近い、システムキッチン、浴室乾燥機、陽当り良好、全居室収納、南側道路面す、閑静な住宅地、LDK15畳以上、周辺交通量少なめ、和室、シャワー付洗面台、対面式キッチン、バリアフリー、トイレ2ヶ所、浴室1坪以上、2階建、2面以上バルコニー、南面バルコニー、複層ガラス、オートバス、温水洗浄便座、床下収納、浴室に窓、TVモニタ付インターホン、緑豊かな住宅地、通風良好、全居室6畳以上、浄水器、都市ガス、平坦地 |
Features pickup 特徴ピックアップ | | Measures to conserve energy / Corresponding to the flat-35S / Solar power system / Pre-ground survey / Parking two Allowed / Super close / System kitchen / Bathroom Dryer / Yang per good / All room storage / Siemens south road / A quiet residential area / LDK15 tatami mats or more / Around traffic fewer / Or more before road 6m / Japanese-style room / Washbasin with shower / Face-to-face kitchen / Barrier-free / Toilet 2 places / Bathroom 1 tsubo or more / 2-story / 2 or more sides balcony / South balcony / Double-glazing / Otobasu / Warm water washing toilet seat / Underfloor Storage / The window in the bathroom / TV monitor interphone / Leafy residential area / Ventilation good / All room 6 tatami mats or more / Water filter / City gas / All rooms are two-sided lighting / Flat terrain 省エネルギー対策 /フラット35Sに対応 /太陽光発電システム /地盤調査済 /駐車2台可 /スーパーが近い /システムキッチン /浴室乾燥機 /陽当り良好 /全居室収納 /南側道路面す /閑静な住宅地 /LDK15畳以上 /周辺交通量少なめ /前道6m以上 /和室 /シャワー付洗面台 /対面式キッチン /バリアフリー /トイレ2ヶ所 /浴室1坪以上 /2階建 /2面以上バルコニー /南面バルコニー /複層ガラス /オートバス /温水洗浄便座 /床下収納 /浴室に窓 /TVモニタ付インターホン /緑豊かな住宅地 /通風良好 /全居室6畳以上 /浄水器 /都市ガス /全室2面採光 /平坦地 | Price 価格 | | 30,800,000 yen 3080万円 | Floor plan 間取り | | 4LDK 4LDK | Units sold 販売戸数 | | 1 units 1戸 | Total units 総戸数 | | 2 units 2戸 | Land area 土地面積 | | 136.39 sq m (41.25 tsubo) (Registration) 136.39m2(41.25坪)(登記) | Building area 建物面積 | | 93.96 sq m (28.42 tsubo) (measured) 93.96m2(28.42坪)(実測) | Driveway burden-road 私道負担・道路 | | Nothing, West 6.4m width, South 6.4m width 無、西6.4m幅、南6.4m幅 | Completion date 完成時期(築年月) | | May 2014 2014年5月 | Address 住所 | | Kobe City, Hyogo Prefecture, Nishi-ku, Kasugadai 9 兵庫県神戸市西区春日台9 | Traffic 交通 | | Subway Seishin ・ Yamanote Line "Seishin Chuo" bus 6 minutes Kasugadai park walk 8 minutes 地下鉄西神・山手線「西神中央」バス6分春日台公園歩8分
| Related links 関連リンク | | [Related Sites of this company] 【この会社の関連サイト】 | Person in charge 担当者より | | Personnel Matsubara KenKiyoshi Age: 40 Daigyokai experience: splendid-turned from a three-year master BAR. Immature part will be covered by the own human force polished in brightness and Kyakushobai of inborn. Not a dream, We will consider the reality of my home purchase to help with full force. 担当者松原 憲清年齢:40代業界経験:3年BARのマスターからの華麗なる転身。未熟な部分は持前の明るさと客商売で磨き上げた独自の人間力でカバー致します。 夢ではなく、現実のマイホームご購入を全力でお手伝いさせて頂きます。 | Contact お問い合せ先 | | TEL: 0800-603-3475 [Toll free] mobile phone ・ Also available from PHS Caller ID is not notified Please contact the "saw SUUMO (Sumo)" If it does not lead, If the real estate company TEL:0800-603-3475【通話料無料】携帯電話・PHSからもご利用いただけます 発信者番号は通知されません 「SUUMO(スーモ)を見た」と問い合わせください つながらない方、不動産会社の方は
| Building coverage, floor area ratio 建ぺい率・容積率 | | 40% ・ 80% 40%・80% | Time residents 入居時期 | | 6 months after the contract 契約後6ヶ月 | Land of the right form 土地の権利形態 | | Ownership 所有権 | Structure and method of construction 構造・工法 | | Wooden 2-story (framing method) 木造2階建(軸組工法) | Use district 用途地域 | | One low-rise 1種低層 | Overview and notices その他概要・特記事項 | | The person in charge: Matsubara KenKiyoshi, Facilities: Public Water Supply, This sewage, City gas, Building confirmation number: Building Products Kobe No. 25169, Parking: car space 担当者:松原 憲清、設備:公営水道、本下水、都市ガス、建築確認番号:住建神戸第25169号、駐車場:カースペース | Company profile 会社概要 | | <Mediation> Governor of Hyogo Prefecture (2) No. 010887 (with) good house Yubinbango673-0041 Akashi, Hyogo Prefecture Nishiakashiminami cho 2-18-16 <仲介>兵庫県知事(2)第010887号(有)よしはうす〒673-0041 兵庫県明石市西明石南町2-18-16 |
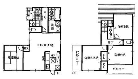
Floor plan間取り図  30,800,000 yen, 4LDK, Land area 136.39 sq m , Building area 93.96 sq m
3080万円、4LDK、土地面積136.39m2、建物面積93.96m2
 Same specifications photos (appearance)
同仕様写真(外観)
 Same specifications photos (living)
同仕様写真(リビング)
 Same specifications photo (bathroom)
同仕様写真(浴室)
 Same specifications photo (kitchen)
同仕様写真(キッチン)
Primary school小学校  965m to Kobe Municipal Kasugadai Elementary School
神戸市立春日台小学校まで965m
 Same specifications photos (Other introspection)
同仕様写真(その他内観)
Post office郵便局  1347m to Kobe Mikatadai post office
神戸美賀多台郵便局まで1347m
Location
|